Kennet Street, Reading, RG1
By Northwood Sales
£ 290,000
Reviews
3 out of 5 stars
Northwood Sales says ..
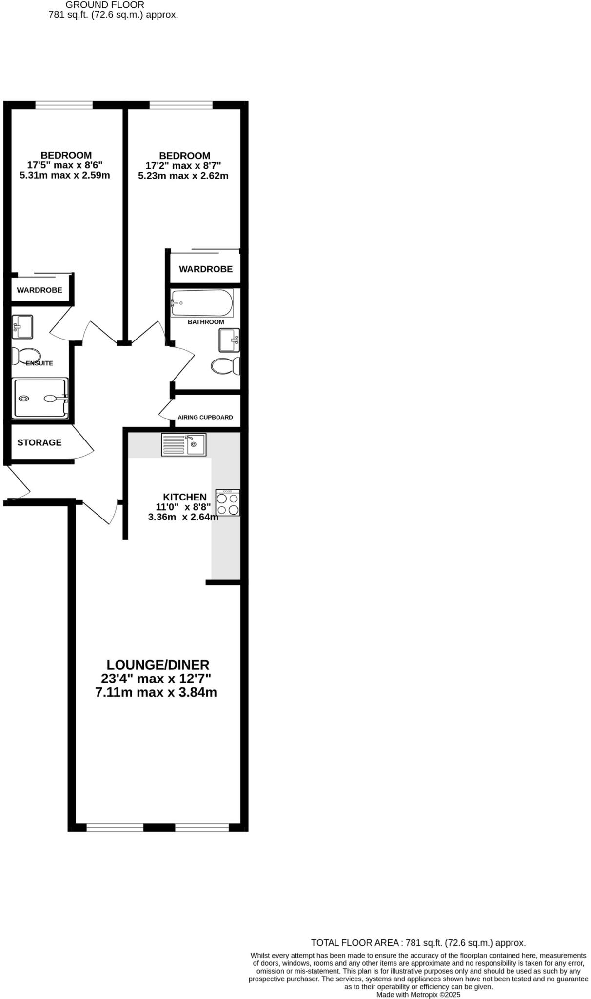
Northwood are pleased to offer to the market this well presented, spacious 2 bedroom executive apartment. Located in the town centre within walking distance of the mainline train station as well as the wide range of shops, restaurants, gyms and River Thames. The accommodation consis...
Property Oracle says ..
This property is a two-bedroom, two-bathroom flat located in a convenient location in Reading, Berkshire. The flat itself appears modern and well-maintained, based on the provided images. The kitchen and bathrooms are contemporary, and the living space is bright and airy. The property benefits from a rooftop terrace offering views of the surrounding area, which is a significant advantage. While the plot size is relatively small for a flat, the location scores highly due to its proximity to various amenities, including schools, transportation links (Reading train station is within walking distance), and local shops. The list price of £290,000 seems reasonable considering the average price per square foot in the area (£380) and the property’s modern condition and desirable features. However, it’s slightly below the average price for the area which could indicate good value, although more detailed comparable sales data would be beneficial for a more precise assessment. The lack of information on the specifics of the nearby properties makes a definitive price comparison difficult.
Therefore, we give this property 7 / 10. *Disclaimer: This is our option and does constitute a recommendation or financial advice. Do your own research. *
- Price
- 8
- Condition
- 9
- Location
- 9
- Land
- 3
- Bedrooms
- 2
- Bathrooms
- 2
- Sqft (est)
- 709.64
- Lot (est)
- 781.00
The heatmap indicates the level of crime in the area. The color of the heatmap indicates the crime severity and recency.
Metrics Year-on-Year
- Average area value
- 350,323.00 £Decreased by 1.18 %
- Est sale value
- 305,854.84 £Increased by 20.73 %
- Average area rental value
- 1,334.00 £/moDecreased by 2.49 %
- Est letting value
- 709.64 £/moUnchanged by 0.00 %
- Est rental Yield
- 4.57 %Decreased by 1.30 %
- Crime Rate
- 7.00 %Unchanged by 0.00 %
Agent Activity
Northwood Sales created the listing.
Nearby Schools
| Name | Type | Ofsted | Distance |
|---|---|---|---|
| The Deenway Montessori School | Other Independent School | Good | 0.34 KM |
| Red Balloon Learner Centre Reading | Other Independent School | 0.38 KM | |
| Kendrick School | Academy Converter | 0.48 KM | |
| The Abbey School Reading | Other Independent School | 0.61 KM | |
| St John'S Church Of England Primary School | Academy Converter | Requires improvement | 0.87 KM |
Images
Nearby Streets
| Name | Average Price | Average Sqft | Distance |
|---|---|---|---|
| Queens Road | £ 287,000 | 0 | 0.00 KM |
| Blake's Wharf | £ 280,000 | 0 | 0.00 KM |
| Queen's Road | £ 259,950 | 0 | 0.00 KM |
| Joseph Huntley Walk | £ 375,000 | 0 | 0.00 KM |
| Carraway Street | £ 300,000 | 0 | 0.00 KM |
Nearby Transport
| Name | NLC | TLC | Distance |
|---|---|---|---|
| Reading | 3149 | RDG | 1.31 KM |
| Reading West | 3160 | RDW | 3.23 KM |
| Earley | 5694 | EAR | 4.97 KM |
| Tilehurst | 3154 | TLH | 7.86 KM |
| Winnersh Triangle | 5698 | WTI | 7.94 KM |
Nearby Listings
| Address | Price | Type | Score | Distance |
|---|---|---|---|---|
| Kennet Street, Reading, RG1 | £ 290,000 | BUY | 7 / 10 | 0.00 KM |
| Kennet Street, Reading, Berkshire, RG1 | £ 230,000 | BUY | 5 / 10 | 0.00 KM |
| Kennett Street, Reading, Berkshire, RG1 | £ 115,000 | BUY | 5 / 10 | 0.00 KM |
| Kennet Street, Reading, Berkshire | £ 315,000 | BUY | 5 / 10 | 0.00 KM |
| Kennet Street, Reading, Berkshire, RG1 | £ 91,500 | BUY | 5 / 10 | 0.00 KM |
Nearby Properties
| Address | Price | Distance |
|---|---|---|
| 114 Queens Road | £ 197,500 | 0.07 KM |
| 110 Queens Road | £ 188,000 | 0.07 KM |
| 108 Queens Road | £ 258,000 | 0.07 KM |
| 112 Queens Road | £ 74,000 | 0.07 KM |
| 100 Queens Road | £ 301,000 | 0.08 KM |