John Buck Estates says ..
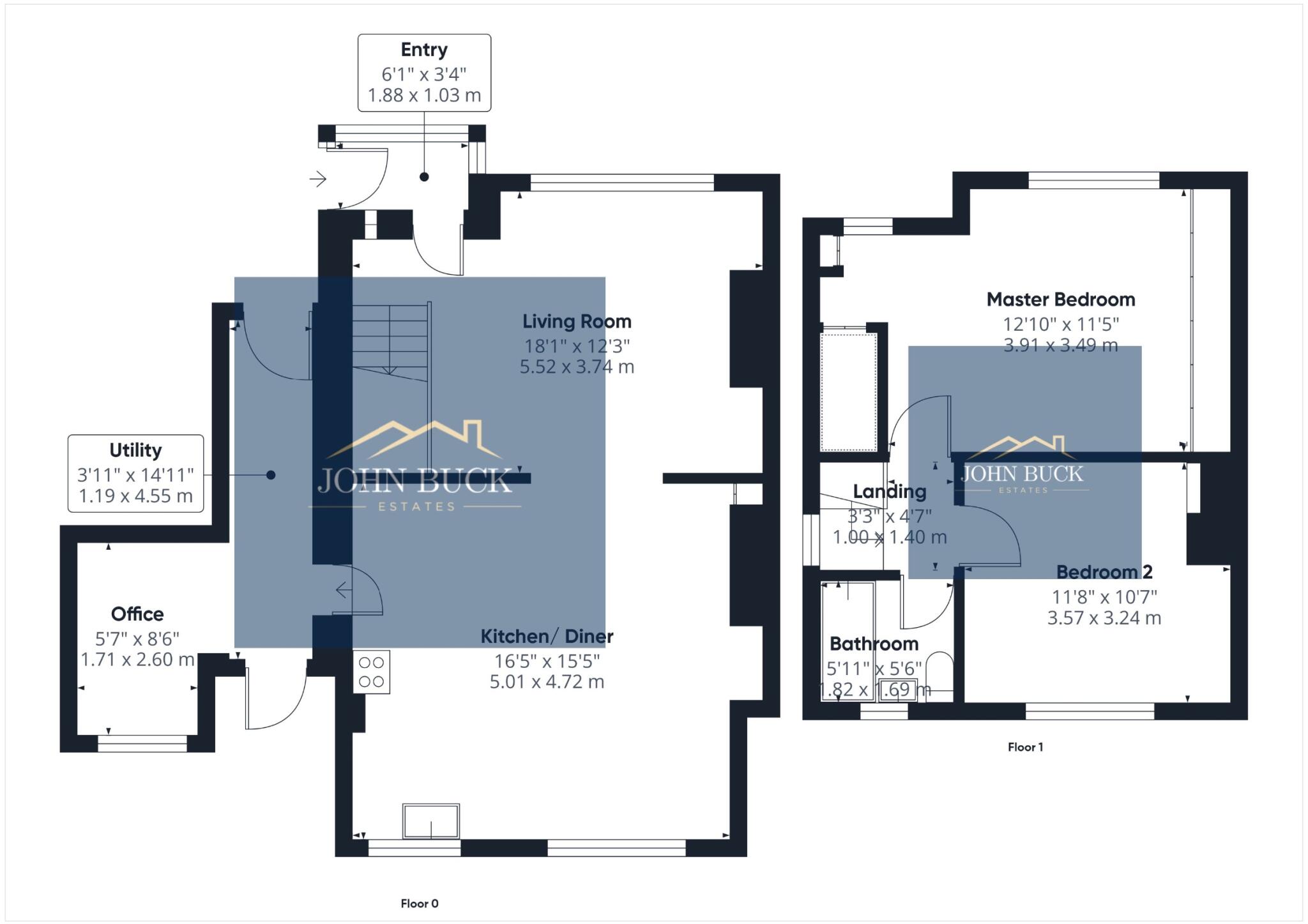
Beautifully presented two-bedroom semi-detached home in sought-after East Herrington. Featuring bright open-plan living, a modern kitchen, two spacious bedrooms and a lovely private garden. Warm, stylish and move-in ready- the perfect place to call home.
Property Oracle says ..
This is a well-presented, modern semi-detached property in a popular residential area of Sunderland. The property benefits from a modern kitchen and bathroom, a good-sized garden, and off-street parking. The property is located close to local amenities, including schools and shops. Sunderland train station is 7km away. The property is well-suited to families and first-time buyers.
Therefore, we give this property 7 / 10. *Disclaimer: This is our option and does constitute a recommendation or financial advice. Do your own research. *
- Price
- 7
- Condition
- 9
- Location
- 7
- Land
- 7
- Bedrooms
- 2
- Bathrooms
- 1
- Sqft (est)
- 308.69
The heatmap indicates the level of crime in the area. The color of the heatmap indicates the crime severity and recency.
Metrics Year-on-Year
- Average area value
- 188,119.00 £Decreased by 3.84 %
- Est sale value
- 69,146.56 £Increased by 160.47 %
- Average area rental value
- 595.00 £/moDecreased by 4.49 %
- Est letting value
- 0.00 £/mo
- Est rental Yield
- 3.80 %Decreased by 0.52 %
- Crime Rate
- 6.00 %Unchanged by 0.00 %
Agent Activity
John Buck Estates created the listing.
Nearby Schools
| Name | Type | Ofsted | Distance |
|---|---|---|---|
| East Herrington Primary Academy | Academy Converter | Good | 0.60 KM |
| Farringdon Community Academy | Academy Converter | Requires improvement | 0.84 KM |
| Benedict Biscop Church Of England Academy | Academy Converter | 0.99 KM | |
| Farringdon Academy | Academy Converter | Requires improvement | 1.29 KM |
| Hasting Hill Academy | Academy Sponsor Led | Good | 1.32 KM |
Images
Nearby Streets
| Name | Average Price | Average Sqft | Distance |
|---|---|---|---|
| Glendale Close | £ 0 | 0 | 0.00 KM |
| Berkeley Close | £ 0 | 0 | 0.00 KM |
| Steep Hill | £ 599,950 | 0 | 0.00 KM |
| City Way | £ 0 | 0 | 0.00 KM |
| Castle Mews | £ 59,950 | 0 | 0.00 KM |
Nearby Transport
| Name | NLC | TLC | Distance |
|---|---|---|---|
| Sunderland | 7640 | SUN | 7.01 KM |
Nearby Listings
| Address | Price | Type | Score | Distance |
|---|---|---|---|---|
| Clinton Place | £ 180,000 | BUY | 7 / 10 | 0.00 KM |
| Clinton Place, East Herrington, Sunderland | £ 165,000 | BUY | 7 / 10 | 0.07 KM |
| Clinton Place, East Herrington, Sunderland | £ 149,950 | BUY | 7 / 10 | 0.10 KM |
| Sandringham Crescent, East Herrington, Sunderland | £ 189,995 | BUY | 7 / 10 | 0.13 KM |
| Sandringham Crescent, East Herrington, Sunderland, SR3 | £ 164,950 | BUY | 7 / 10 | 0.15 KM |
Nearby Properties
| Address | Price | Distance |
|---|---|---|
| 36 Clinton Place | £ 119,000 | 0.01 KM |
| 38 Clinton Place | £ 139,000 | 0.01 KM |
| 34 Clinton Place | £ 125,000 | 0.01 KM |
| 35 Clinton Place | £ 128,000 | 0.01 KM |
| 41 Clinton Place | £ 155,250 | 0.01 KM |