Choir Green, Knaphill, Woking, Surrey, GU21
By Seymours Estate Agents
£ 400,000
Reviews
3 out of 5 stars
Seymours Estate Agents says ..
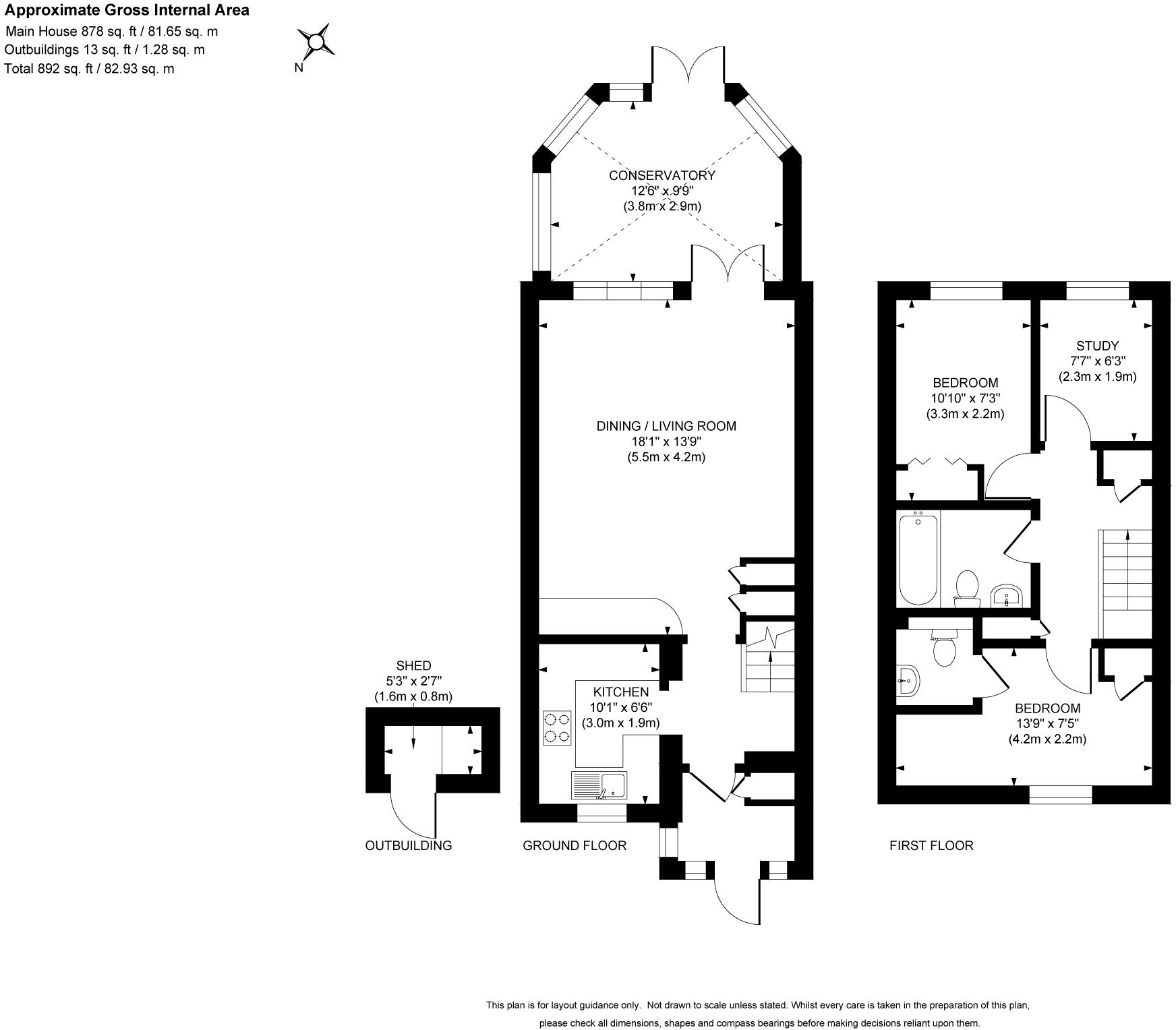
This mid-terrace home is located in a quiet cul de sac that is within easy reach of Knaphill and bus links that offer easy access to Woking Town Centre. A welcoming entrance hall greets you into the home and provides a useful space for coats and shoes. Further ground floor accommodation inc...
Property Oracle says ..
This is a three-bedroom terraced house in Knaphill, Woking. The property appears to be in generally good condition, with a modern kitchen and bathroom. It benefits from a garden with decking, providing a low-maintenance outdoor space. The location offers a balance of suburban living with access to local amenities and schools. The asking price of £400,000 seems reasonable compared to other properties in the area. Overall, this property presents a good opportunity for families or individuals looking for a well-maintained home in a convenient location.
Therefore, we give this property 7 / 10. *Disclaimer: This is our option and does constitute a recommendation or financial advice. Do your own research. *
- Price
- 8
- Condition
- 7
- Location
- 7
- Land
- 6
- Bedrooms
- 3
- Bathrooms
- 1
The heatmap indicates the level of crime in the area. The color of the heatmap indicates the crime severity and recency.
Metrics Year-on-Year
- Average area value
- 586,400.00 £Increased by 18.76 %
- Average area rental value
- 2,150.00 £/moIncreased by 9.47 %
- Est rental Yield
- 4.40 %Decreased by 7.76 %
- Crime Rate
- 6.00 %Unchanged by 0.00 %
Agent Activity
Seymours Estate Agents marked this listing as sold.
Seymours Estate Agents created the listing.
Nearby Schools
| Name | Type | Ofsted | Distance |
|---|---|---|---|
| St John'S Primary School And Sure Start Children'S Centre | Children's Centre | 0.55 KM | |
| St John'S Primary School | Academy Sponsor Led | Requires improvement | 0.55 KM |
| Beaufort Primary School | Academy Converter | Good | 1.03 KM |
| St Hugh Of Lincoln Catholic Primary School | Academy Converter | Good | 1.06 KM |
| The Winston Churchill School A Specialist Sports College | Foundation School | Good | 1.07 KM |
Images
Nearby Streets
| Name | Average Price | Average Sqft | Distance |
|---|---|---|---|
| Beechwood Close | £ 0 | 0 | 0.00 KM |
| Oakway | £ 475,000 | 0 | 0.00 KM |
| Elmgrove Close | £ 425,000 | 0 | 0.00 KM |
| Robin Hood Roundabout cycle path | £ 0 | 0 | 0.00 KM |
| Lockfield Drive cycle path | £ 0 | 0 | 0.00 KM |
Nearby Transport
| Name | NLC | TLC | Distance |
|---|---|---|---|
| Brookwood | 5687 | BKO | 3.63 KM |
| Worplesdon | 5686 | WPL | 4.45 KM |
| Woking | 5685 | WOK | 5.60 KM |
| Longcross | 5674 | LNG | 7.35 KM |
| Sunningdale | 5671 | SNG | 8.45 KM |
Nearby Listings
| Address | Price | Type | Score | Distance |
|---|---|---|---|---|
| Choir Green, Knaphill, Woking, Surrey, GU21 | £ 400,000 | BUY | 7 / 10 | 0.00 KM |
| Choir Green, Knaphill, Woking, Surrey, GU21 | £ 375,000 | BUY | 7 / 10 | 0.02 KM |
| Woking, Woking, GU21 | £ 425,000 | BUY | Unknown | 0.07 KM |
| Knaphill, Woking | £ 415,000 | BUY | 6 / 10 | 0.07 KM |
| Robin Hood Road, Knaphill, Woking, GU21 | £ 400,000 | BUY | 6 / 10 | 0.09 KM |
Nearby Properties
| Address | Price | Distance |
|---|---|---|
| 18 Choir Green | £ 429,000 | 0.01 KM |
| 9 Choir Green | £ 340,000 | 0.01 KM |
| 16 Choir Green | £ 220,000 | 0.01 KM |
| 13 Choir Green | £ 247,500 | 0.01 KM |
| 11 Choir Green | £ 228,500 | 0.01 KM |