Starkey & Brown says ..
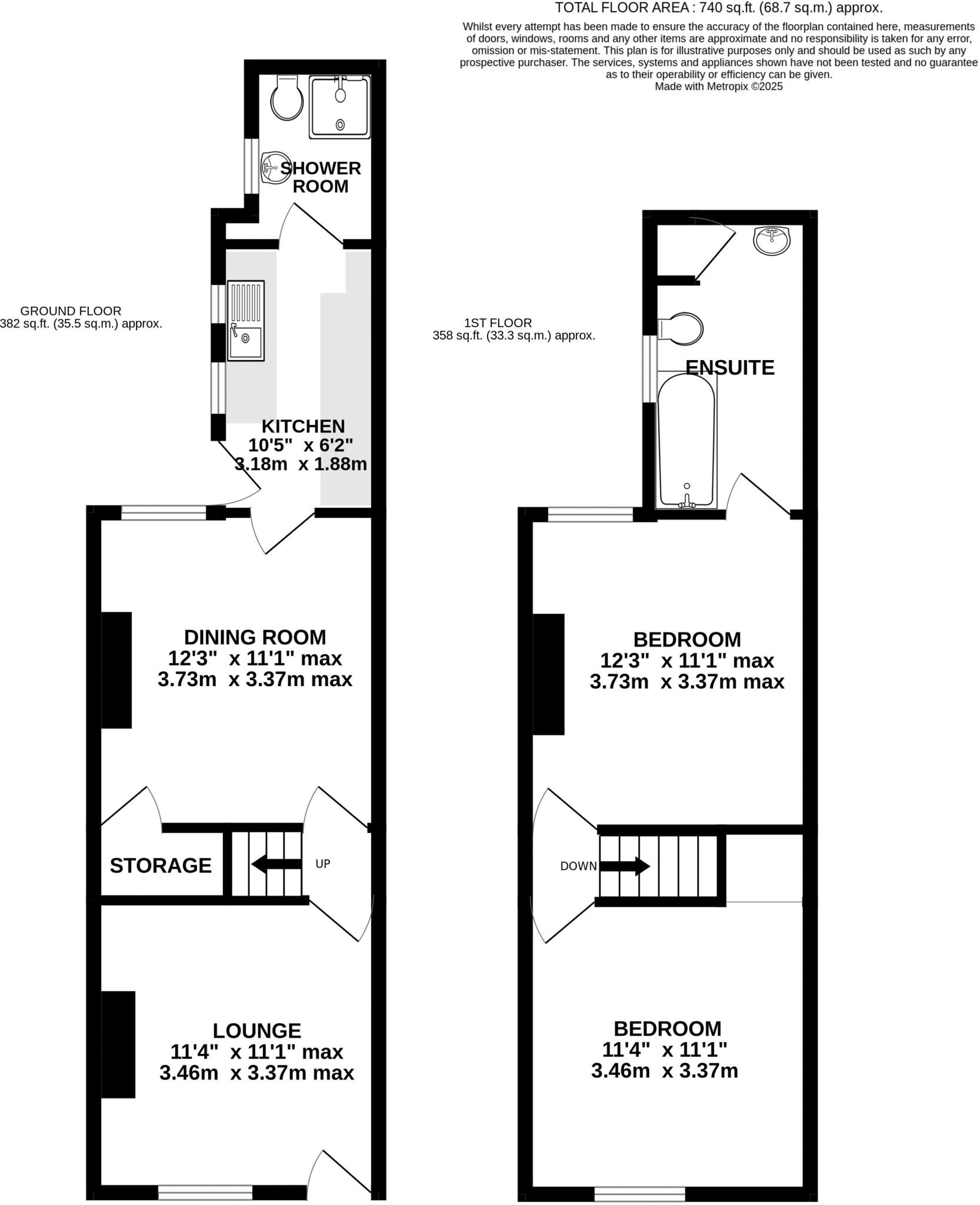
TWO DOUBLE BEDS AND TWO BATHROOMS! Starkey&Brown are pleased to offer for sale this terraced two house which would make the ideal first home or investment property. Accommodation benefits from gas central heating and uPVC double glazing and briefly comprises lounge, lobby with stairs rising to th...
Property Oracle says ..
The property is located in Lincoln, Lincolnshire, a city with a rich history and a growing economy. The area benefits from good transport links, with Lincoln train station being relatively close. Several schools are within easy reach, including well-regarded primary schools like The Lincoln St Peter At Gowts Church Of England Primary School and Athena School, both rated ‘Good’ by Ofsted. This makes the location appealing to families. The proximity to the city centre suggests convenient access to shops, amenities, and employment opportunities. However, without specific information on the immediate surroundings of Hood Street, a more definitive assessment of the location’s desirability is difficult. Based on the provided images, the property appears to be in generally good condition. The interior shows a lived-in but well-maintained space. While some minor cosmetic updates might enhance its appeal, there are no immediately apparent signs of significant structural damage or the need for extensive renovations. The kitchen and bathrooms seem functional, although a more detailed inspection would be necessary to fully assess their condition. The property’s plot size is 740 sqft. While this is not exceptionally large, it’s likely sufficient for a small garden or yard, providing some outdoor space. The exact nature and usability of this outdoor area cannot be definitively determined from the provided information. The list price of £115,000 requires further analysis. Nearby properties show a range of prices, and the lack of square footage information for these comparisons makes a precise price-per-square-foot calculation impossible. However, considering the property’s apparent condition, location, and modest plot size, the price appears to be within the reasonable range for similar properties in the area. More detailed local market data would be needed to confirm this assessment definitively.
Therefore, we give this property 6 / 10. *Disclaimer: This is our option and does constitute a recommendation or financial advice. Do your own research. *
- Price
- 7
- Condition
- 7
- Location
- 7
- Land
- 6
- Bedrooms
- 2
- Bathrooms
- 2
- Sqft (est)
- 639.00
- Lot (est)
- 740.00
The heatmap indicates the level of crime in the area. The color of the heatmap indicates the crime severity and recency.
Metrics Year-on-Year
- Average area value
- 339,299.00 £Increased by 1.34 %
- Est sale value
- 232,596.00 £Increased by 25.52 %
- Average area rental value
- 1,364.00 £/moIncreased by 34.92 %
- Est letting value
- 639.00 £/mo
- Est rental Yield
- 4.82 %Increased by 33.15 %
- Crime Rate
- 6.00 %Unchanged by 0.00 %
Agent Activity
Starkey & Brown created the listing.
Nearby Schools
| Name | Type | Ofsted | Distance |
|---|---|---|---|
| Lincoln Central And Bracebridge Children'S Centre | Children's Centre | 0.30 KM | |
| Athena School | Community Special School | Good | 0.36 KM |
| The Lincoln Bishop King Church Of England Primary School | Voluntary Aided School | Good | 0.37 KM |
| Springwell Lincoln City Academy | Academy Alternative Provision Sponsor Led | 0.40 KM | |
| The Lincoln St Peter At Gowts Church Of England Primary School | Voluntary Controlled School | Good | 0.47 KM |
Images
Nearby Streets
| Name | Average Price | Average Sqft | Distance |
|---|---|---|---|
| St Andrews Close | £ 0 | 0 | 0.00 KM |
| Lancaster Place | £ 108,750 | 0 | 0.00 KM |
| Palmer Street | £ 0 | 0 | 0.00 KM |
| Charles Street | £ 0 | 0 | 0.00 KM |
| Kingsway | £ 170,000 | 0 | 0.00 KM |
Nearby Transport
| Name | NLC | TLC | Distance |
|---|---|---|---|
| Lincoln | 6340 | LCN | 0.59 KM |
| Hykeham | 6310 | HKM | 7.29 KM |
Nearby Listings
| Address | Price | Type | Score | Distance |
|---|---|---|---|---|
| Hood Street, Lincoln | £ 115,000 | BUY | 6 / 10 | 0.00 KM |
| Hood Street, Lincoln | £ 105,000 | BUY | 5 / 10 | 0.02 KM |
| Kirkby Street, Lincoln | £ 160,000 | BUY | 5 / 10 | 0.03 KM |
| Hood Street, Lincoln | £ 150,000 | BUY | 6 / 10 | 0.03 KM |
| Scorer Street, Lincoln | £ 130,000 | BUY | Unknown | 0.07 KM |
Nearby Properties
| Address | Price | Distance |
|---|---|---|
| 79 Kirkby Street | £ 110,000 | 0.02 KM |
| 68 Kirkby Street | £ 147,500 | 0.02 KM |
| 101 Kirkby Street | £ 85,000 | 0.02 KM |
| 50 Kirkby Street | £ 120,000 | 0.02 KM |
| 83 Kirkby Street | £ 86,000 | 0.02 KM |