Christophers says ..
A substantial and imposing residence full of character situated in the heart of this increasingly sought-after Cornish fishing village.
Property Oracle says ..
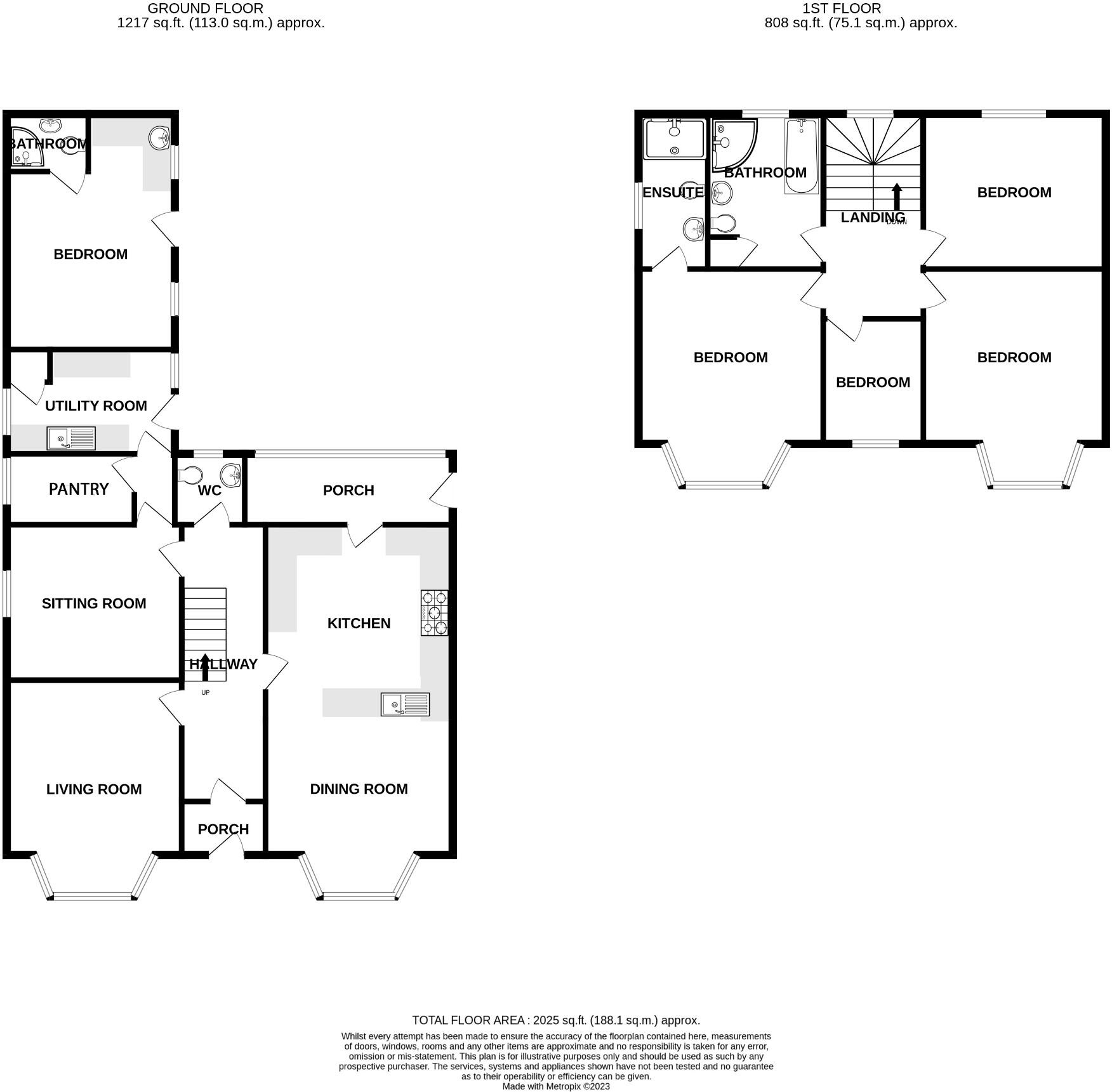
This is a detached property in Porthleven, Cornwall, listed for £895,000. It features 4 bedrooms and 3 bathrooms. While the square footage isn’t specified, the property includes a garden with a shed and patio, and the interior appears well-maintained, blending period features with modern updates. The location is desirable, being close to the coast and local schools. However, the price seems high compared to the average property value in the area.
Therefore, we give this property 6 / 10. *Disclaimer: This is our option and does constitute a recommendation or financial advice. Do your own research. *
- Price
- 5
- Condition
- 8
- Location
- 7
- Land
- 7
- Bedrooms
- 4
- Bathrooms
- 3
- Sqft (est)
- 2,025.00
The heatmap indicates the level of crime in the area. The color of the heatmap indicates the crime severity and recency.
Metrics Year-on-Year
- Average area value
- 380,500.00 £Decreased by 7.95 %
- Est sale value
- 617,625.00 £Increased by 0.66 %
- Average area rental value
- 1,550.00 £/moIncreased by 31.91 %
- Est letting value
- 2,025.00 £/mo
- Est rental Yield
- 4.89 %Increased by 43.40 %
- Crime Rate
- 50.00 %Unchanged by 0.00 %
Agent Activity
Christophers created the listing.
Nearby Schools
| Name | Type | Ofsted | Distance |
|---|---|---|---|
| Porthleven School | Academy Converter | Good | 0.43 KM |
| St Elvan'S | Children's Centre Linked Site | 0.43 KM | |
| Breage Church Of England School | Academy Converter | 2.87 KM | |
| Sithney Community Primary School | Academy Converter | Outstanding | 4.09 KM |
| Helston Children'S Centre | Children's Centre | 4.53 KM |
Images
Nearby Streets
| Name | Average Price | Average Sqft | Distance |
|---|---|---|---|
| Vicarage Road | £ 0 | 0 | 0.00 KM |
| Pendeen Road | £ 995,000 | 0 | 0.00 KM |
| South View | £ 340,000 | 0 | 0.00 KM |
| Hammill's Close | £ 0 | 0 | 0.00 KM |
| Parc-an-Maen | £ 0 | 0 | 0.00 KM |
Nearby Listings
| Address | Price | Type | Score | Distance |
|---|---|---|---|---|
| Pendeen Road, Porthleven | £ 895,000 | BUY | 6 / 10 | 0.00 KM |
| Detached bungalow with views, Porthleven | £ 450,000 | BUY | 6 / 10 | 0.08 KM |
| PORTHLEVEN TR13 | £ 450,000 | BUY | 6 / 10 | 0.09 KM |
| Pendeen Road, Porthleven, TR13 | £ 895,000 | BUY | 6 / 10 | 0.13 KM |
| Porthleven, Nr. Helston, South Cornwall | £ 925,000 | BUY | Unknown | 0.14 KM |
Nearby Properties
| Address | Price | Distance |
|---|---|---|
| Purlieu | £ 122,500 | 0.04 KM |
| Melrose | £ 260,000 | 0.04 KM |
| The Pines | £ 270,000 | 0.04 KM |
| Tel-drea | £ 230,000 | 0.04 KM |
| 16 Reeves Close | £ 250,000 | 0.09 KM |