Greenhill Road, Herne Bay, CT6
By Miles & Barr
£ 450,000
Reviews
4 out of 5 stars
Miles & Barr says ..
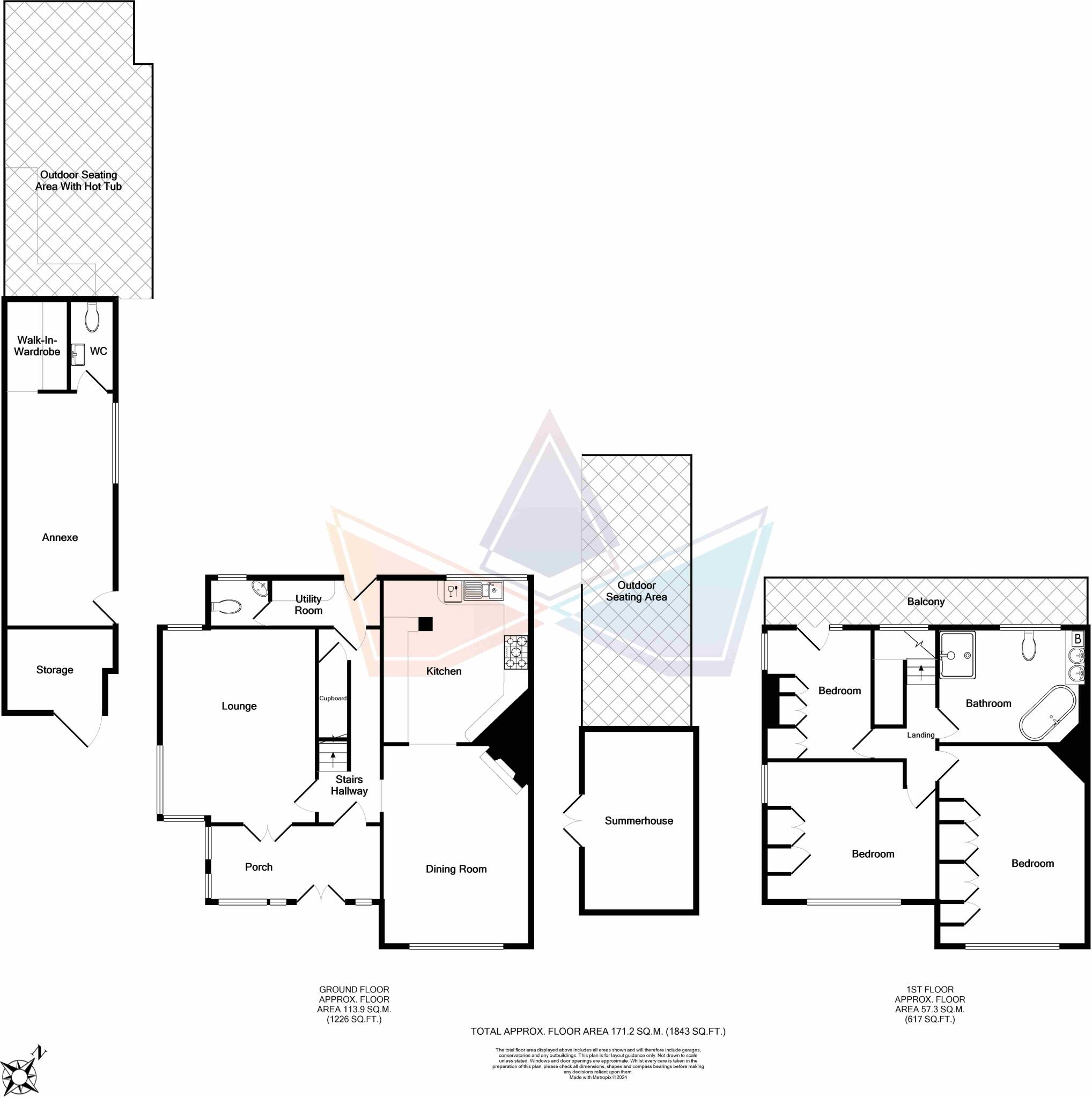
Set back from the road on a large secluded plot, this home enjoys tranquillity and privacy, making it a serene oasis away from the hustle and bustle of every-day life. The property is in lovely condition throughout, with attention to detail evident in every corner. The tandem garage has been thou...
Property Oracle says ..
This property is a 3 bedroom, 2 bathroom detached house located on Greenhill Road in Herne Bay. The property benefits from being close to local schools such as Briary Primary School (0.15km) and Hampton Primary School (0.71km), as well as Herne Bay High School (1.18km). Herne Bay train station is also within a reasonable distance (1.82km). The house itself appears to be in good condition, with a modern kitchen and bathrooms. There is also a substantial garden with a patio area, and what seems to be a hot tub. The plot size is 1,843 sqft. The list price is £450,000, which is slightly higher than the average price for the area (£381,799), but considering the size of the property (1,610 sqft) and the condition, it may be considered reasonable. The average price per sqft in the area is £492, making the price per sqft for this property approximately £279. This is lower than the average, suggesting good value for money.
Therefore, we give this property 8 / 10. *Disclaimer: This is our option and does constitute a recommendation or financial advice. Do your own research. *
- Price
- 7
- Condition
- 9
- Location
- 9
- Land
- 8
- Bedrooms
- 3
- Bathrooms
- 2
- Sqft (est)
- 1,610.00
- Lot (est)
- 1,843.00
The heatmap indicates the level of crime in the area. The color of the heatmap indicates the crime severity and recency.
Metrics Year-on-Year
- Average area value
- 454,441.00 £Increased by 9.13 %
- Est sale value
- 1,007,860.00 £Increased by 19.69 %
- Average area rental value
- 2,040.00 £/moIncreased by 11.29 %
- Est letting value
- 3,220.00 £/moUnchanged by 0.00 %
- Est rental Yield
- 5.39 %Increased by 2.08 %
- Crime Rate
- 6.00 %Unchanged by 0.00 %
Agent Activity
Miles & Barr created the listing.
Nearby Schools
| Name | Type | Ofsted | Distance |
|---|---|---|---|
| Briary Primary School | Academy Converter | 0.15 KM | |
| Briary Children'S Centre | Children's Centre Linked Site | 0.36 KM | |
| Hampton Primary School | Academy Converter | Good | 0.71 KM |
| Herne Bay High School | Academy Converter | Good | 1.18 KM |
| Fairlight Glen Independent Special School | Other Independent Special School | Good | 2.20 KM |
Images
Nearby Streets
| Name | Average Price | Average Sqft | Distance |
|---|---|---|---|
| West View Close | £ 0 | 0 | 0.00 KM |
| Hawthornden Street | £ 0 | 0 | 0.00 KM |
| Dragonfly Drive | £ 0 | 0 | 0.00 KM |
| Beaumont Street | £ 382,500 | 0 | 0.00 KM |
| Sussex Close Path | £ 300,000 | 0 | 0.00 KM |
Nearby Transport
| Name | NLC | TLC | Distance |
|---|---|---|---|
| Herne Bay | 5174 | HNB | 1.82 KM |
| Chestfield And Swalecliffe | 5200 | CSW | 3.89 KM |
| Sturry | 5029 | STU | 6.84 KM |
| Whitstable | 5196 | WHI | 7.61 KM |
| Canterbury West | 5007 | CBW | 8.85 KM |
Nearby Listings
| Address | Price | Type | Score | Distance |
|---|---|---|---|---|
| Greenhill Road, Herne Bay, CT6 | £ 450,000 | BUY | 8 / 10 | 0.00 KM |
| Greenhill Road, Herne Bay, CT6 | £ 425,000 | BUY | 6 / 10 | 0.03 KM |
| Greenhill Road, Herne Bay | £ 345,000 | BUY | 6 / 10 | 0.03 KM |
| Greenhill Road, Herne Bay | £ 300,000 | BUY | 7 / 10 | 0.04 KM |
| Clare Drive, Herne Bay, CT6 7QU | £ 365,000 | BUY | 7 / 10 | 0.06 KM |
Nearby Properties
| Address | Price | Distance |
|---|---|---|
| 108 Greenhill Road | £ 230,000 | 0.03 KM |
| 115 Greenhill Road | £ 245,000 | 0.03 KM |
| 106 Greenhill Road | £ 245,000 | 0.03 KM |
| 126 Greenhill Road | £ 195,000 | 0.03 KM |
| 94 Greenhill Road | £ 149,000 | 0.03 KM |