Oppida says ..
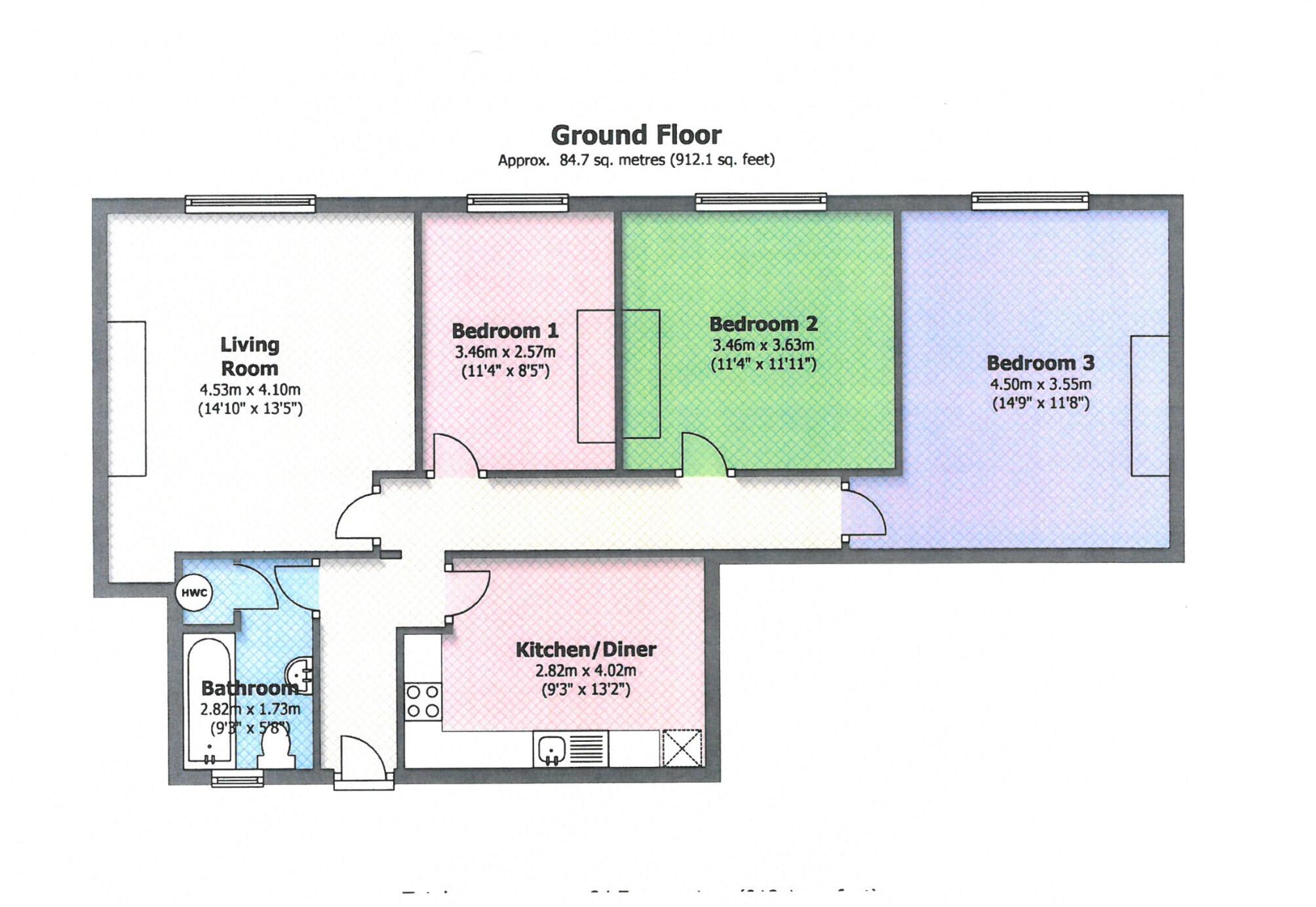
An impressive and spacious three double-bedroom ground-floor apartment spanning over 913 sq ft, offered chain-free.
Property Oracle says ..
This three-bedroom apartment is located in the Surrey Docks area of Rotherhithe, London. The property benefits from being within walking distance of the River Thames and is close to several transport links, including Surrey Quays Overground station. The apartment itself appears to be in generally good condition, although some minor updates or cosmetic improvements might enhance its appeal. The kitchen and bathroom appear functional but could benefit from some modernisation. The property is leasehold, and the lease is currently being extended, which is a positive aspect for potential buyers. The lack of information regarding plot size and garden access makes it difficult to comment on the land aspect. The list price of £495,000 requires further analysis due to the lack of sqft information in the available comparable properties. However, considering the location and proximity to transport links, and the three bedrooms, the price could be considered reasonable, but further research into comparable properties with similar sqft is needed to definitively assess the value.
Therefore, we give this property 7 / 10. *Disclaimer: This is our option and does constitute a recommendation or financial advice. Do your own research. *
- Price
- 7
- Condition
- 7
- Location
- 8
- Land
- 0
- Bedrooms
- 3
- Bathrooms
- 1
- Sqft (est)
- 776.83
- Lot (est)
- 911.70
The heatmap indicates the level of crime in the area. The color of the heatmap indicates the crime severity and recency.
Metrics Year-on-Year
- Average area value
- 491,111.00 £Decreased by 10.47 %
- Est sale value
- 501,055.35 £Decreased by 1.68 %
- Average area rental value
- 2,267.00 £/moIncreased by 15.90 %
- Est letting value
- 1,553.66 £/moUnchanged by 0.00 %
- Est rental Yield
- 5.54 %Increased by 29.44 %
- Crime Rate
- 1.00 %Unchanged by 0.00 %
Agent Activity
Oppida created the listing.
Nearby Schools
| Name | Type | Ofsted | Distance |
|---|---|---|---|
| Redriff Primary School | Academy Converter | 0.48 KM | |
| Around Poplar Children'S Centre | Children's Centre | 0.65 KM | |
| East India | Children's Centre Linked Site | 0.65 KM | |
| Cyril Jackson Primary School | Academy Converter | 0.74 KM | |
| Stephen Hawking School | Community Special School | Outstanding | 0.86 KM |
Images
Nearby Streets
| Name | Average Price | Average Sqft | Distance |
|---|---|---|---|
| Horns Stairs | £ 0 | 0 | 0.00 KM |
| Lawrence Wharf | £ 0 | 0 | 0.00 KM |
| Nelson Dock Pier | £ 0 | 0 | 0.00 KM |
| Redwood Close | £ 850,000 | 0 | 0.00 KM |
| Bryan Road | £ 0 | 0 | 0.00 KM |
Nearby Transport
| Name | NLC | TLC | Distance |
|---|---|---|---|
| Limehouse | 7491 | LHS | 0.94 KM |
| Canada Water | 1659 | ZCW | 1.87 KM |
| New Cross | 5150 | NWX | 1.87 KM |
| Surrey Quays | 1083 | SQE | 1.99 KM |
| Rotherhithe | 1039 | ROE | 1.99 KM |
Nearby Listings
| Address | Price | Type | Score | Distance |
|---|---|---|---|---|
| Acorn Walk, London, SE16 | £ 495,000 | BUY | 7 / 10 | 0.00 KM |
| Acorn Walk, London, SE16 | £ 465,000 | BUY | 4 / 10 | 0.00 KM |
| Acorn Walk, Rotherhithe, SE16 | £ 325,000 | BUY | 6 / 10 | 0.01 KM |
| Admiral Place, Surrey Quays, London, SE16 | £ 525,000 | BUY | 5 / 10 | 0.03 KM |
| Rotherhithe Street, Rotherhithe | £ 500,000 | BUY | 6 / 10 | 0.08 KM |
Nearby Properties
| Address | Price | Distance |
|---|---|---|
| 68 Acorn Walk | £ 492,000 | 0.00 KM |
| 71 Acorn Walk | £ 650,000 | 0.00 KM |
| 67 Acorn Walk | £ 557,000 | 0.00 KM |
| 59 Acorn Walk | £ 222,000 | 0.00 KM |
| 65 Acorn Walk | £ 435,000 | 0.00 KM |