GR
Valley View Road, Rochester, ME1
By Greyfox Estate Agents
£ 425,000
Reviews
3 out of 5 stars
Greyfox Estate Agents says ..
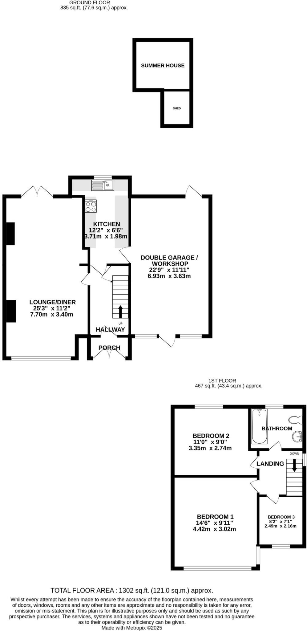
Guide Price £425,000 - £450,000Offered with no forward chain is this semi-detached well maintained 3 bedroom family home. The current owner has placed a lot of care into presenting this lovely home which is ready to move into. There is potential to extend to the side and rea...
Property Oracle says ..
Therefore, we give this property 6 / 10. *Disclaimer: This is our option and does constitute a recommendation or financial advice. Do your own research. *
- Price
- 6
- Condition
- 7
- Location
- 7
- Land
- 7
- Bedrooms
- 3
- Bathrooms
- 1
- Sqft (est)
- 935.20
The heatmap indicates the level of crime in the area. The color of the heatmap indicates the crime severity and recency.
Metrics Year-on-Year
- Average area value
- 265,071.00 £Decreased by 34.02 %
- Est sale value
- 397,460.00 £Increased by 48.60 %
- Average area rental value
- 1,344.00 £/moDecreased by 2.33 %
- Est letting value
- 1,870.40 £/mo
- Est rental Yield
- 6.08 %Increased by 47.93 %
- Crime Rate
- 8.00 %Unchanged by 0.00 %
from 401,762.00 £
from 267,467.20 £
from 1,376.00 £/mo
from 0.00 £/mo
from 4.11 %
from 8.00 %
Agent Activity
Greyfox Estate Agents created the listing.
Nearby Schools
| Name | Type | Ofsted | Distance |
|---|---|---|---|
| Sir Joseph Williamson'S Mathematical School | Academy Converter | 0.19 KM | |
| The Rochester Grammar School | Academy Converter | 0.34 KM | |
| St William Of Perth Roman Catholic Primary School | Voluntary Aided School | Good | 0.58 KM |
| The Thomas Aveling School | Academy Converter | Good | 0.62 KM |
| Delce Academy | Academy Converter | 0.66 KM |
Images
Nearby Streets
| Name | Average Price | Average Sqft | Distance |
|---|---|---|---|
| Anchor Road | £ 365,000 | 0 | 0.00 KM |
| Pennant Road | £ 0 | 0 | 0.00 KM |
| Frobisher Gardens | £ 0 | 0 | 0.00 KM |
| Leander Road | £ 0 | 0 | 0.00 KM |
| Hooper's Place | £ 0 | 0 | 0.00 KM |
Nearby Transport
| Name | NLC | TLC | Distance |
|---|---|---|---|
| Rochester | 5203 | RTR | 2.22 KM |
| Chatham | 5199 | CTM | 2.73 KM |
| Strood (Kent) | 5191 | SOO | 3.10 KM |
| Cuxton | 5201 | CUX | 4.21 KM |
| Gillingham (Kent) | 5169 | GLM | 5.91 KM |
Nearby Listings
| Address | Price | Type | Score | Distance |
|---|---|---|---|---|
| Valley View Road, Rochester, ME1 | £ 425,000 | BUY | 6 / 10 | 0.00 KM |
| Valley View Road, Rochester, Kent | £ 360,000 | BUY | 5 / 10 | 0.09 KM |
| Trevale Road, Rochester, ME1 3NZ | £ 340,000 | BUY | 6 / 10 | 0.18 KM |
| The Tideway, Rochester | £ 350,000 | BUY | 7 / 10 | 0.20 KM |
| Maidstone Road, Rochester, ME1 | £ 325,000 | BUY | 7 / 10 | 0.21 KM |
Nearby Properties
| Address | Price | Distance |
|---|---|---|
| 25 Valley View Road | £ 320,000 | 0.10 KM |
| 22 Valley View Road | £ 148,000 | 0.10 KM |
| 12 Valley View Road | £ 212,500 | 0.10 KM |
| 15 Valley View Road | £ 88,000 | 0.10 KM |
| 4 Valley View Road | £ 200,000 | 0.10 KM |