Pearsons says ..
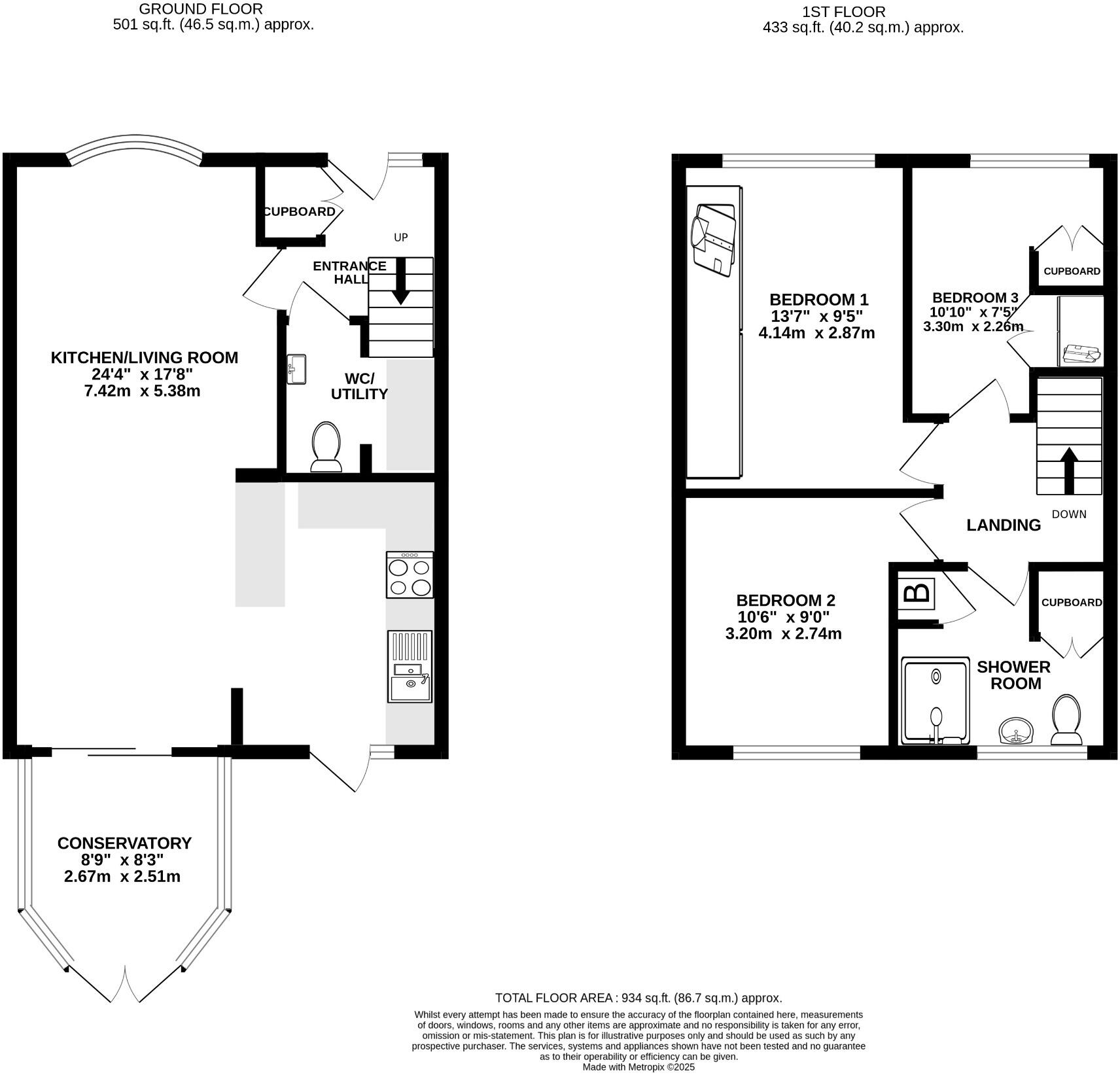
NO FORWARD CHAIN. This superbly presented DETACHED three bedroom house is positioned in a popular area to the west of Fareham town centre. The internal accommodation comprises; entrance hall, cloakroom/utility, open plan 'L' shaped modern fitted kitchen/living room and a conservatory with a doubl...
Property Oracle says ..
This is a detached property in Fareham, offering three bedrooms and one bathroom. The interior has been modernised, particularly the kitchen and bathroom. The property benefits from a garden and off-street parking. While generally well-maintained, some exterior areas could use some improvement. The location provides good access to local schools and transport links. The asking price appears fair when compared to the average price per square foot in the area.
Therefore, we give this property 6 / 10. *Disclaimer: This is our option and does constitute a recommendation or financial advice. Do your own research. *
- Price
- 7
- Condition
- 7
- Location
- 7
- Land
- 6
- Bedrooms
- 3
- Bathrooms
- 1
- Sqft (est)
- 933.23
The heatmap indicates the level of crime in the area. The color of the heatmap indicates the crime severity and recency.
Metrics Year-on-Year
- Average area value
- 629,500.00 £Increased by 11.99 %
- Est sale value
- 414,354.12 £Increased by 17.15 %
- Average area rental value
- 1,800.00 £/moIncreased by 14.07 %
- Est letting value
- 933.23 £/moUnchanged by 0.00 %
- Est rental Yield
- 3.43 %Increased by 1.78 %
- Crime Rate
- 7.00 %Unchanged by 0.00 %
Agent Activity
Pearsons created the listing.
Nearby Schools
| Name | Type | Ofsted | Distance |
|---|---|---|---|
| Heathfield Special School | Community Special School | Good | 1.00 KM |
| Ranvilles Infant School | Community School | Outstanding | 1.00 KM |
| Ranvilles Junior School | Community School | Good | 1.00 KM |
| St Francis Special School | Community Special School | Good | 1.07 KM |
| Titchfield Primary School | Community School | Good | 1.45 KM |
Images
Nearby Streets
| Name | Average Price | Average Sqft | Distance |
|---|---|---|---|
| Rowan Way | £ 300,000 | 0 | 0.00 KM |
| Sandisplatt | £ 254,975 | 0 | 0.00 KM |
| Ranvilles Lane | £ 525,000 | 0 | 0.00 KM |
| Crofton View | £ 750,000 | 0 | 0.00 KM |
| Grange Close | £ 731,667 | 0 | 0.00 KM |
Nearby Transport
| Name | NLC | TLC | Distance |
|---|---|---|---|
| Fareham | 5900 | FRM | 3.50 KM |
| Swanwick | 5920 | SNW | 5.60 KM |
| Botley | 5894 | BOE | 8.57 KM |
| Bursledon | 5927 | BUO | 9.86 KM |
Nearby Listings
| Address | Price | Type | Score | Distance |
|---|---|---|---|---|
| HOLLAM DRIVE, FAREHAM | £ 400,000 | BUY | 6 / 10 | 0.00 KM |
| Fairacre Rise, Fareham, Hampshire, PO14 | £ 450,000 | BUY | 7 / 10 | 0.08 KM |
| Hollam Crescent, Fareham | £ 425,000 | BUY | 6 / 10 | 0.09 KM |
| Hollam Crescent, Fareham | £ 375,000 | BUY | 6 / 10 | 0.09 KM |
| Hollam Crescent, Fareham | £ 350,000 | BUY | 7 / 10 | 0.09 KM |
Nearby Properties
| Address | Price | Distance |
|---|---|---|
| 18 Hollam Drive | £ 202,000 | 0.00 KM |
| 16 Hollam Drive | £ 90,000 | 0.00 KM |
| 10 Hollam Drive | £ 471,500 | 0.00 KM |
| 12 Hollam Drive | £ 197,000 | 0.00 KM |
| 2 Hollam Drive | £ 385,000 | 0.00 KM |