Carter & May says ..
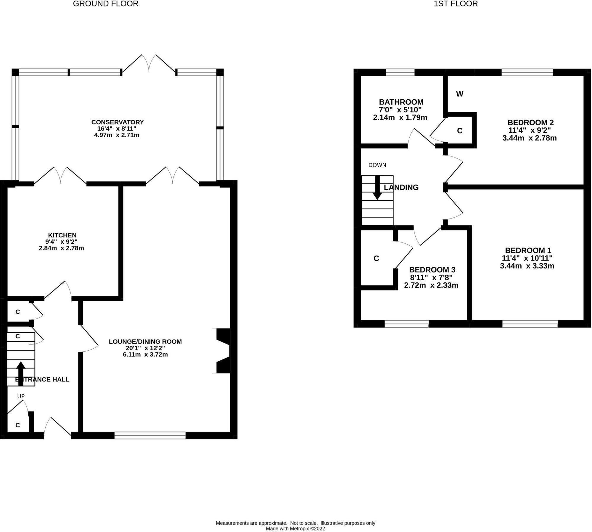
NO FORWARD CHAIN - Carter and May are delighted to offer for sale this spacious 3 bedroom home situated in a quiet cul de sac in Alderholt. The current vendors have lived at the property for 4 years and makes a great family home. The property boasts 3 bedrooms, family bathroom, a large living/di...
Property Oracle says ..
This three-bedroom end-of-terrace house in Alderholt, Dorset, presents itself as a family home in a well-regarded village setting. The property’s layout is seemingly practical, incorporating a conservatory that extends the living space and what appears to be a reasonably sized garden. The interior suggests that the property is in move-in condition, with the kitchen and bathroom being functional, however an updated kitchen or bathroom may enhance the value of the property. The bedrooms, based on the images, are of a suitable size for a family. A notable advantage is the proximity to St James’ Church of England First School, rated ‘Good’ by Ofsted. The absence of precise plot size information and details on transportation options limits a full evaluation but the current asking price appears competitive within the context of the provided nearby property listings.
Therefore, we give this property 6 / 10. *Disclaimer: This is our option and does constitute a recommendation or financial advice. Do your own research. *
- Price
- 7
- Condition
- 6
- Location
- 7
- Land
- 4
- Bedrooms
- 3
- Bathrooms
- 1
- Sqft (est)
- 1,315.35
The heatmap indicates the level of crime in the area. The color of the heatmap indicates the crime severity and recency.
Metrics Year-on-Year
- Average area value
- 397,000.00 £Decreased by 32.74 %
- Est sale value
- 341,991.00 £Decreased by 38.82 %
- Average area rental value
- 1,647.00 £/moIncreased by 11.06 %
- Est letting value
- 1,315.35 £/moUnchanged by 0.00 %
- Est rental Yield
- 4.98 %Increased by 65.45 %
- Crime Rate
- 14.00 %Unchanged by 0.00 %
Agent Activity
Carter & May created the listing.
Nearby Schools
| Name | Type | Ofsted | Distance |
|---|---|---|---|
| St James' Church Of England First School And Nursery, Alderholt | Academy Converter | Good | 0.56 KM |
| Forres Sandle Manor School | Other Independent School | 2.94 KM | |
| The Bridges And Pathways Children'S Centre | Children's Centre | 4.68 KM | |
| Fordingbridge Junior School | Community School | Good | 4.70 KM |
| Fordingbridge Infant School | Community School | Good | 4.70 KM |
Images
Nearby Streets
| Name | Average Price | Average Sqft | Distance |
|---|---|---|---|
| Beech Close | £ 450,000 | 0 | 0.00 KM |
| Hazel Close | £ 0 | 0 | 0.00 KM |
| Station Yard | £ 500,000 | 0 | 0.00 KM |
| Alderholt Road | £ 0 | 0 | 0.00 KM |
| Court Hill | £ 0 | 0 | 0.00 KM |
Nearby Listings
| Address | Price | Type | Score | Distance |
|---|---|---|---|---|
| Hayters Way, Alderholt, Fordingbridge, Dorset, SP6 | £ 465,000 | BUY | 6 / 10 | 0.11 KM |
| Windsor Way, Alderholt, SP6 | £ 424,950 | BUY | Unknown | 0.11 KM |
| Down Lodge Close, Alderholt, Fordingbridge, SP6 | £ 495,000 | BUY | 6 / 10 | 0.12 KM |
| Windsor Way, Alderholt, SP6 | £ 525,000 | BUY | 6 / 10 | 0.16 KM |
| Down Lodge Close, Alderholt, Fordingbridge, SP6 | £ 470,000 | BUY | 7 / 10 | 0.17 KM |
Nearby Properties
| Address | Price | Distance |
|---|---|---|
| 19 Windsor Way | £ 190,000 | 0.07 KM |
| 45 Windsor Way | £ 325,000 | 0.07 KM |
| 46 Windsor Way | £ 280,000 | 0.07 KM |
| 15 Windsor Way | £ 295,000 | 0.07 KM |
| 35 Windsor Way | £ 380,000 | 0.07 KM |