Hylton Road, Newton Hall, Durham, DH1
By Newfield Estates
£ 265,000
Reviews
3 out of 5 stars
Newfield Estates says ..
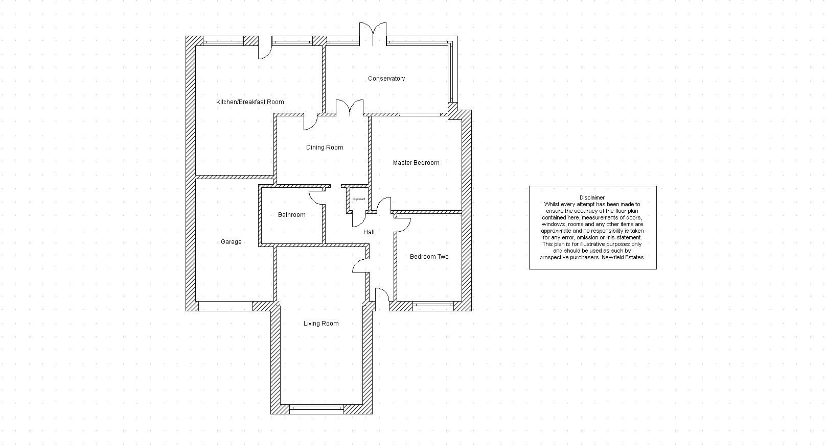
*** NO UPPER CHAIN, EXTENDED FLOOR PLAN, THREE RECEPTION ROOMS, LARGE DRIVEWAY, GARAGE, GOOD SIZE REAR GARDEN, HIGHLY SOUGHT AFTER LOCATION, MODERN FITTED KITCHEN/BREAKFAST ROOM, STYLISH BATHROOM ***
Property Oracle says ..
This property is a 2-bedroom bungalow located in Newton Hall, Durham. It benefits from a modern fitted kitchen and conservatory. The property is well presented and appears to be in good condition throughout. There is also a good sized garden to the rear. The location is convenient for local amenities and schools. Transport links are also relatively close by. The list price of £265,000 is slightly above the average price for the area, however given the size of the property (1200 sqft) and its modern features, it could be considered reasonable value for money.
Therefore, we give this property 7 / 10. *Disclaimer: This is our option and does constitute a recommendation or financial advice. Do your own research. *
- Price
- 7
- Condition
- 9
- Location
- 8
- Land
- 7
- Bedrooms
- 2
- Bathrooms
- 1
- Sqft (est)
- 1,200.00
The heatmap indicates the level of crime in the area. The color of the heatmap indicates the crime severity and recency.
Metrics Year-on-Year
- Average area value
- 225,990.00 £Increased by 7.98 %
- Est sale value
- 231,600.00 £Decreased by 7.21 %
- Average area rental value
- 1,096.00 £/moIncreased by 16.60 %
- Est letting value
- 0.00 £/mo
- Est rental Yield
- 5.82 %Increased by 7.98 %
- Crime Rate
- 8.00 %Unchanged by 0.00 %
Agent Activity
Newfield Estates created the listing.
Nearby Schools
| Name | Type | Ofsted | Distance |
|---|---|---|---|
| Durham Newton Hall Infants' School | Community School | Good | 0.33 KM |
| Blue Coat Cofe (Aided) Junior School | Voluntary Aided School | Good | 0.34 KM |
| St Godric'S Catholic Primary School, Durham | Academy Converter | 0.92 KM | |
| Finchale Primary School | Community School | Good | 1.12 KM |
| Framwellgate School Durham | Academy Converter | Good | 1.45 KM |
Images
Nearby Streets
| Name | Average Price | Average Sqft | Distance |
|---|---|---|---|
| Norham Road | £ 220,000 | 0 | 0.00 KM |
| Litchfield Road | £ 0 | 0 | 0.00 KM |
| Carlisle Road | £ 220,000 | 0 | 0.00 KM |
| Priory Road | £ 0 | 0 | 0.00 KM |
| Low Moor Cottages | £ 170,000 | 0 | 0.00 KM |
Nearby Transport
| Name | NLC | TLC | Distance |
|---|---|---|---|
| Durham | 7745 | DHM | 2.38 KM |
| Chester-Le-Street | 7736 | CLS | 6.27 KM |
Nearby Listings
| Address | Price | Type | Score | Distance |
|---|---|---|---|---|
| Hylton Road, Newton Hall, Durham, DH1 | £ 265,000 | BUY | 7 / 10 | 0.00 KM |
| Barrasford Road, Newton Hall, Durham, DH1 | £ 140,000 | BUY | 7 / 10 | 0.19 KM |
| Lumley Road, Newton Hall, Durham, DH1 | £ 299,950 | BUY | 7 / 10 | 0.20 KM |
| Chillingham Road, Newton Hall, Durham, DH1 | £ 295,000 | BUY | 7 / 10 | 0.23 KM |
| Hylton Road, Newton Hall, Durham, DH1 | £ 400,000 | BUY | 6 / 10 | 0.24 KM |
Nearby Properties
| Address | Price | Distance |
|---|---|---|
| 9 Wolsingham Drive | £ 173,000 | 0.11 KM |
| 12 Wolsingham Drive | £ 175,000 | 0.11 KM |
| 32 Wolsingham Drive | £ 203,000 | 0.11 KM |
| 3 Wolsingham Drive | £ 163,500 | 0.11 KM |
| 34 Wolsingham Drive | £ 285,000 | 0.11 KM |