Davis & Gibbs Ltd says ..
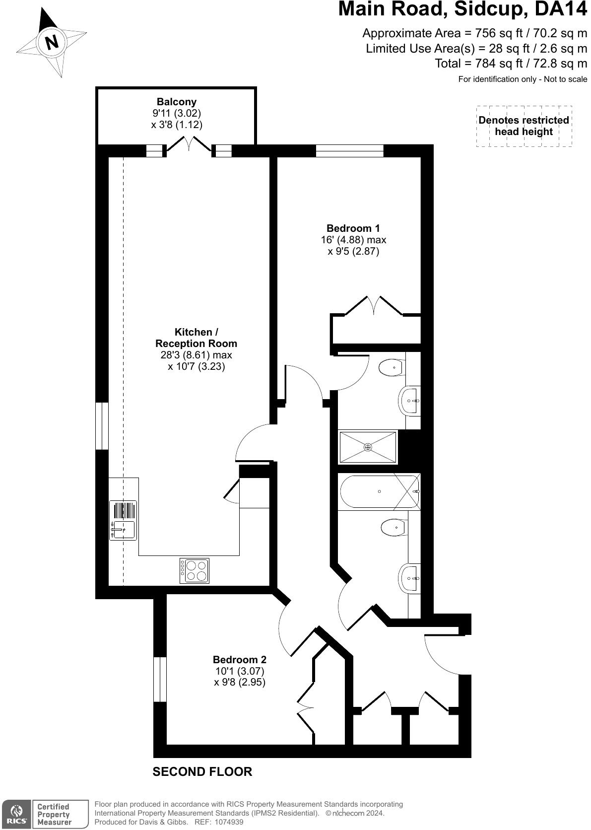
Located on the second floor of the building, the property boasts two double bedrooms both with built-in storage and one with an en-suite. The open plan kitchen/reception room is a massive space perfect to relax or entertain, the fully integrated kitchen units have a sleek hi-spec finish and wo...
Property Oracle says ..
This property is a two-bedroom, two-bathroom apartment located on Main Road in Sidcup, Bexley. The apartment is modern and appears to be in excellent condition, with contemporary finishes throughout. The images show a well-maintained interior, including a modern kitchen and bathrooms. The property benefits from a balcony, offering some outdoor space. While the plot size is listed as 0.00 sqft, the balcony provides some outdoor amenity. The location is convenient, with several nearby schools and transportation links to Southeastern rail services. However, the average house price in the area is considerably higher than the list price of this apartment. This could indicate that the price is attractive, but further investigation into the specific reasons for the price difference would be beneficial. The lack of information on the property’s square footage in the nearby listings makes a precise comparison difficult.
Therefore, we give this property 6 / 10. *Disclaimer: This is our option and does constitute a recommendation or financial advice. Do your own research. *
- Price
- 8
- Condition
- 9
- Location
- 7
- Land
- 3
- Bedrooms
- 2
- Bathrooms
- 2
- Sqft (est)
- 784.00
The heatmap indicates the level of crime in the area. The color of the heatmap indicates the crime severity and recency.
Metrics Year-on-Year
- Average area value
- 766,667.00 £Increased by 46.02 %
- Est sale value
- 451,584.00 £Increased by 10.98 %
- Average area rental value
- 1,688.00 £/moIncreased by 7.86 %
- Est letting value
- 784.00 £/moUnchanged by 0.00 %
- Est rental Yield
- 2.64 %Decreased by 26.26 %
- Crime Rate
- 9.00 %Unchanged by 0.00 %
Agent Activity
Davis & Gibbs Ltd created the listing.
Nearby Schools
| Name | Type | Ofsted | Distance |
|---|---|---|---|
| Longlands Primary School | Community School | Good | 0.52 KM |
| Dulverton Primary School | Community School | Good | 0.89 KM |
| Chislehurst School For Girls | Academy Converter | Good | 1.37 KM |
| Darul Uloom London School | Other Independent School | Requires improvement | 1.50 KM |
| Benedict House Preparatory School | Other Independent School | Good | 1.51 KM |
Images
Nearby Streets
| Name | Average Price | Average Sqft | Distance |
|---|---|---|---|
| Braemar Gardens | £ 0 | 0 | 0.00 KM |
| Brendon Road | £ 0 | 0 | 0.00 KM |
| Roberts Close | £ 300,000 | 0 | 0.00 KM |
| Ham Shades Close | £ 295,750 | 0 | 0.00 KM |
| Minshaw Court | £ 0 | 0 | 0.00 KM |
Nearby Transport
| Name | NLC | TLC | Distance |
|---|---|---|---|
| New Eltham | 5119 | NEH | 1.89 KM |
| Sidcup | 5125 | SID | 2.03 KM |
| Falconwood | 5137 | FCN | 3.27 KM |
| Mottingham | 5118 | MTG | 4.10 KM |
| Chislehurst | 5099 | CIT | 4.18 KM |
Nearby Listings
| Address | Price | Type | Score | Distance |
|---|---|---|---|---|
| Main Road, Sidcup, DA14 | £ 299,950 | BUY | 6 / 10 | 0.00 KM |
| 293 -295 Main Road, Sidcup, Kent, DA14 | £ 375,000 | BUY | Unknown | 0.00 KM |
| Main Road, Sidcup, DA14 6QL | £ 290,000 | BUY | Unknown | 0.01 KM |
| Main Road, Sidcup | £ 350,000 | BUY | 6 / 10 | 0.01 KM |
| Longlands Road, Sidcup, DA15 7LU | £ 375,000 | BUY | 6 / 10 | 0.09 KM |
Nearby Properties
| Address | Price | Distance |
|---|---|---|
| 265a Main Road | £ 285,000 | 0.01 KM |
| 270 Main Road | £ 612,000 | 0.04 KM |
| 280 Main Road | £ 295,000 | 0.04 KM |
| 254 Main Road | £ 462,000 | 0.04 KM |
| 250 Main Road | £ 337,000 | 0.04 KM |