near Haverfordwest Pembrokeshire, Haverfordwest
JJ Morris logo

near Haverfordwest Pembrokeshire, Haverfordwest

By JJ Morris

£ 130,000

JJ Morris says ..

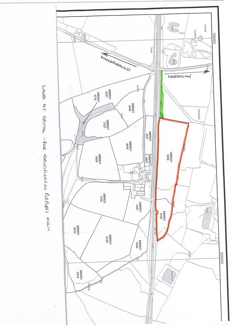
*An opportunity to purchase a conveniently located parcel of level pasture land woodland providing natural shelter. *Suitable for grazing or cropping or for equestrian purposes or conservation use.

Bedrooms
0
Bathrooms
0

The heatmap indicates the level of crime in the area. The color of the heatmap indicates the crime severity and recency.

Metrics Year-on-Year

Average area value
278,905.00 £
Increased by 2.67 %
from 271,663.00 £
Average area rental value
800.00 £/mo
Decreased by 34.53 %
from 1,222.00 £/mo
Est rental Yield
3.44 %
Decreased by 36.30 %
from 5.40 %
Crime Rate
9,449.00 %
Unchanged by 0.00 %
from 9,449.00 %

Agent Activity

  • JJ Morris created the listing.

Nearby Schools

NameTypeOfstedDistance
Spittal V.C.P. SchoolWelsh Establishment3.01 KM
Ysgol Caer ElenWelsh Establishment5.88 KM
St Aidans V.A.P. SchoolWelsh Establishment6.04 KM
Prendergast Community SchoolWelsh Establishment7.23 KM
Wolfscastle CpWelsh Establishment7.60 KM

Images

dji_fly_20250716_105720_456_1752659940924_photo_op dji_fly_20250716_105752_457_1752659935152_photo_op dji_fly_20250716_105802_458_1752659944359_photo_op dji_fly_20250716_105806_459_1752659951586_photo_op dji_fly_20250716_105812_460_1752659947312_photo_op dji_fly_20250716_105816_461_1752659955787_photo_op dji_fly_20250716_105834_462_1752659966138_photo_op dji_fly_20250716_105840_463_1752659959312_photo_op dji_fly_20250716_120744_464_1752664101052_photo_op dji_fly_20250716_120810_465_1752664097338_photo_op dji_fly_20250716_120826_466_1752664143974_photo_op dji_fly_20250716_120850_467_1752664139908_photo_op dji_fly_20250716_120920_468_1752664233637_photo_op dji_fly_20250716_120922_469_1752664235186_photo_op

Nearby Transport

NameNLCTLCDistance
Clarbeston Road4069CLR4.11 KM
Haverfordwest4079HVF7.55 KM

Nearby Listings

AddressPriceTypeScoreDistance
near Haverfordwest Pembrokeshire, Haverfordwest £ 130,000BUYUnknown0.00 KM
Bethlehem, Haverfordwest, Pembrokeshire, SA62 £ 380,000BUY6 / 100.90 KM