Barnard Street, Newport, NP19
By Number One Real Estate
£ 140,000
Reviews
3 out of 5 stars
Number One Real Estate says ..
**GUIDE PRICE: £140,000 - £160,000 **WELL PRESENTED**MID TERRACE PROPERTY**TWO BEDROOMS**OPEN PLAN LIVING**ADDITIONAL SITTING ROOM**ENCLOSED REAR GARDEN**QUIET STREET**
Property Oracle says ..
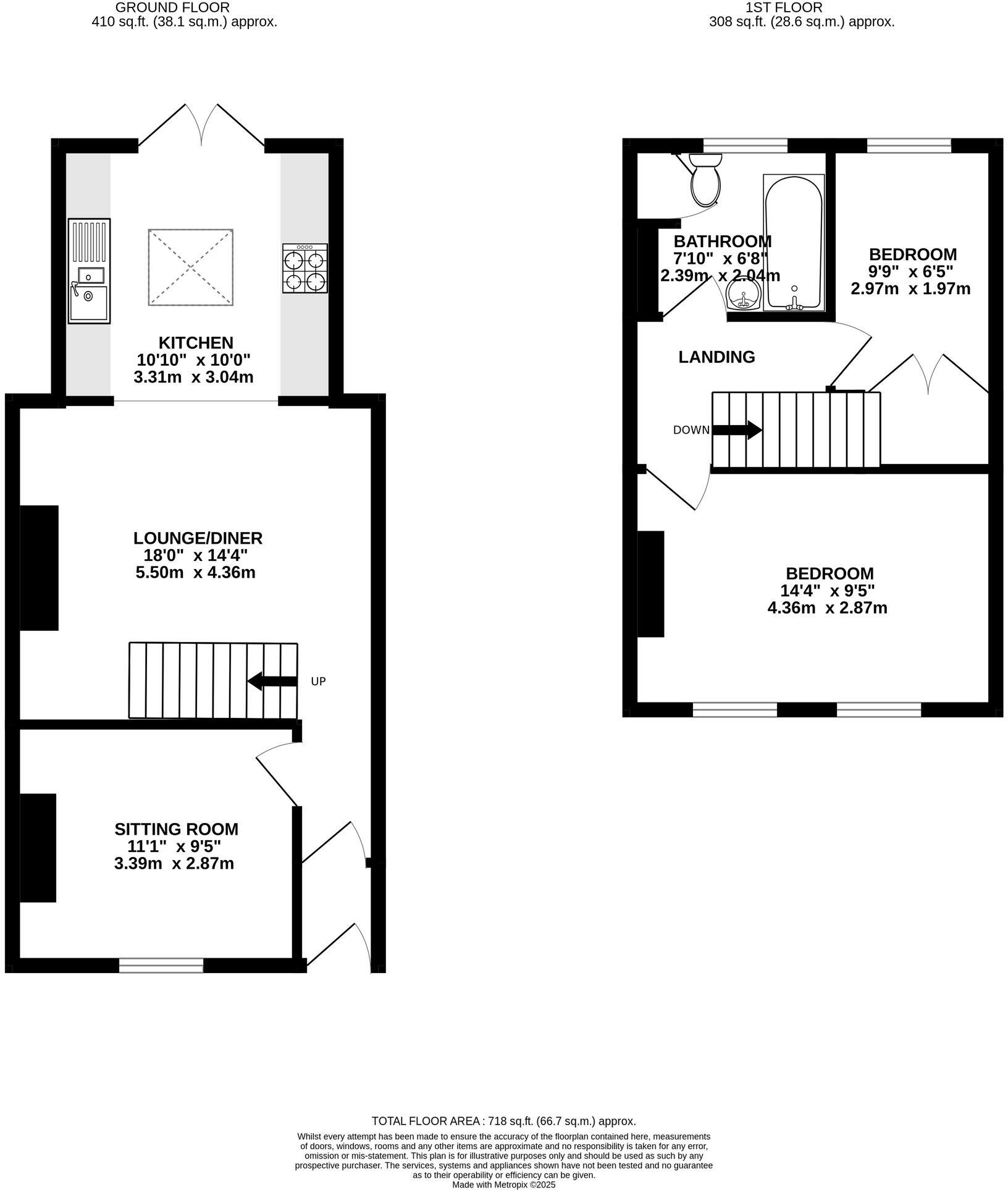
This two-bedroom terraced house in Newport’s Victoria area presents a well-maintained and modernised living space. The property features a recently updated kitchen and bathroom, creating a contemporary feel. The interior photos showcase a clean and well-presented home, suggesting recent renovations or upgrades. The inclusion of a small rear garden, though compact, provides some outdoor space. The location offers proximity to schools and the Newport (South Wales) train station, enhancing its convenience. While the provided data lacks specifics on the immediate neighbourhood’s amenities, the overall impression is of a reasonably priced property in a decent location. Further information on the property’s square footage for comparable properties and a more comprehensive view of the exterior would allow for a more complete assessment. The lack of plot size information also limits the overall evaluation. The price point seems competitive within the context of similar properties in the area, although more data is needed for a definitive conclusion.
Therefore, we give this property 6 / 10. *Disclaimer: This is our option and does constitute a recommendation or financial advice. Do your own research. *
- Price
- 7
- Condition
- 8
- Location
- 6
- Land
- 3
- Bedrooms
- 2
- Bathrooms
- 1
- Sqft (est)
- 718.00
The heatmap indicates the level of crime in the area. The color of the heatmap indicates the crime severity and recency.
Metrics Year-on-Year
- Average area value
- 273,072.00 £Decreased by 1.50 %
- Est sale value
- 242,684.00 £Increased by 29.01 %
- Average area rental value
- 1,340.00 £/moIncreased by 9.39 %
- Est letting value
- 718.00 £/moUnchanged by 0.00 %
- Est rental Yield
- 5.89 %Increased by 11.13 %
- Crime Rate
- 9.00 %Unchanged by 0.00 %
Agent Activity
Number One Real Estate created the listing.
Nearby Schools
| Name | Type | Ofsted | Distance |
|---|---|---|---|
| Newport Nursery School | Welsh Establishment | 0.25 KM | |
| Maindee C.P. School | Welsh Establishment | 0.55 KM | |
| St Joseph'S R.C. Primary School | Welsh Establishment | 0.76 KM | |
| Crindau Junior & Infant School | Welsh Establishment | 1.41 KM | |
| Eveswell Primary School | Welsh Establishment | 1.41 KM |
Images
Nearby Streets
| Name | Average Price | Average Sqft | Distance |
|---|---|---|---|
| Alfred Street | £ 0 | 0 | 0.00 KM |
| Bedford Road | £ 213,333 | 0 | 0.00 KM |
| Lord Street | £ 0 | 0 | 0.00 KM |
| Cedar Road | £ 182,500 | 0 | 0.00 KM |
| Rugby Road | £ 180,000 | 0 | 0.00 KM |
Nearby Transport
| Name | NLC | TLC | Distance |
|---|---|---|---|
| Newport (South Wales) | 3674 | NWP | 1.65 KM |
| Pye Corner | 1663 | PYE | 5.87 KM |
| Cwmbran | 3738 | CWM | 7.95 KM |
| Rogerstone | 9921 | ROR | 8.93 KM |
Nearby Listings
| Address | Price | Type | Score | Distance |
|---|---|---|---|---|
| Barnard Street, Newport, NP19 | £ 140,000 | BUY | 6 / 10 | 0.00 KM |
| Access lane to the east side of, Whitby Place, Newport, Gwent, NP19 8DQ | £ 10 | BUY | 2 / 10 | 0.04 KM |
| Extended, Open Plan & Stunning. Prince Street, Newport | £ 170,000 | BUY | 7 / 10 | 0.08 KM |
| Gloster Place, Newport, NP19 | £ 195,000 | BUY | 5 / 10 | 0.10 KM |
| Prince Street, Newport | £ 145,000 | BUY | 6 / 10 | 0.10 KM |
Nearby Properties
| Address | Price | Distance |
|---|---|---|
| 3 Barnard Street | £ 86,750 | 0.01 KM |
| 15 Barnard Street | £ 108,000 | 0.01 KM |
| 11 Barnard Street | £ 61,000 | 0.01 KM |
| 17 Barnard Street | £ 120,250 | 0.01 KM |
| 10 Barnard Street | £ 69,950 | 0.02 KM |