Marlborough Road, Abertillery, Gwent, Blaenau Gwent, NP13
By Cariad Property
£ 142,250
Reviews
2 out of 5 stars
Cariad Property says ..
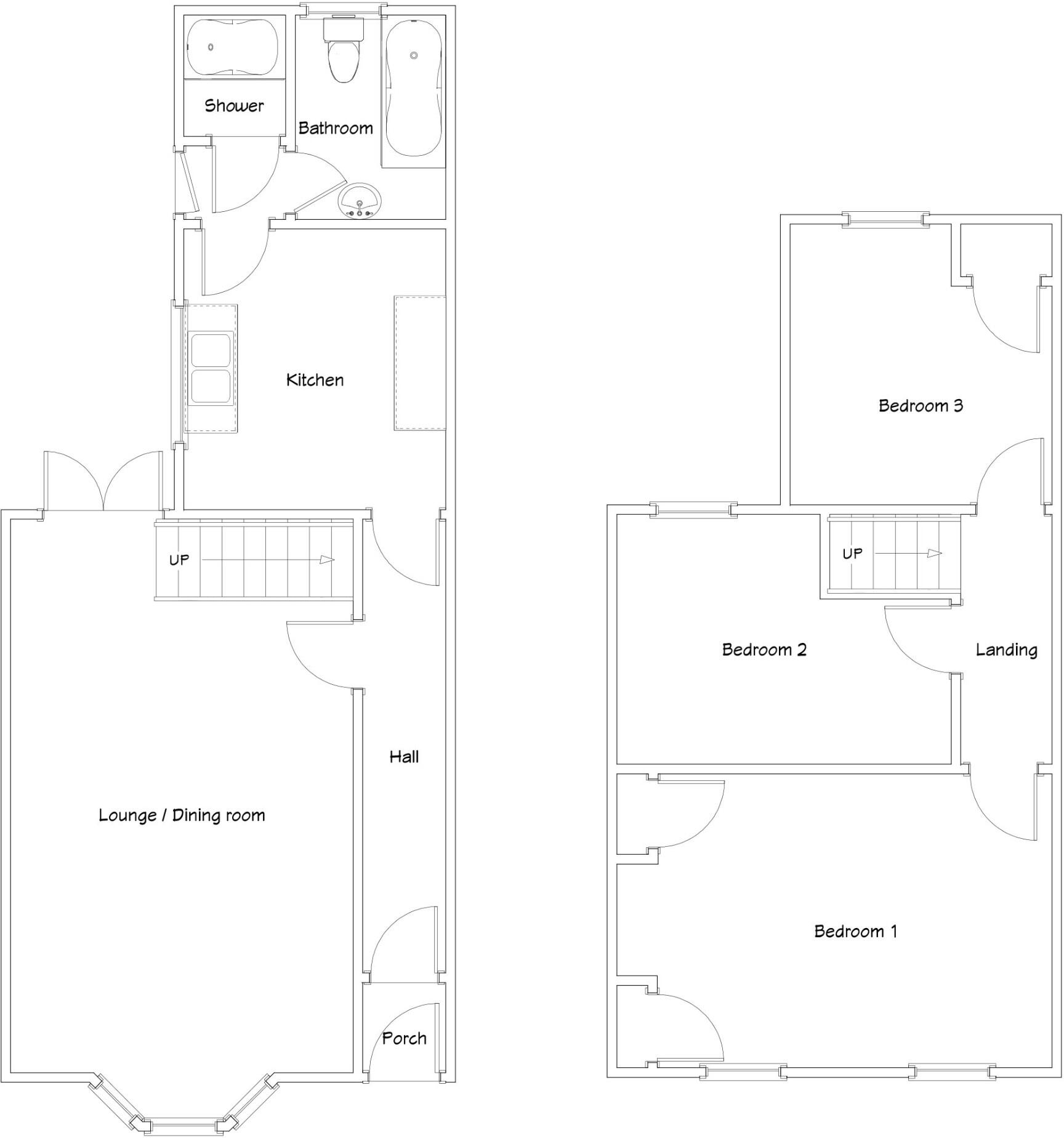
LARGE FAMILY HOME, town position, three bedrooms, spacious lounge/diner, fitted kitchen and bathroom, rear garden, and no chain. A perfect first-time home.
Property Oracle says ..
This three-bedroom terraced house in Abertillery is listed at £142,250. While the average price for properties in the area is significantly higher at £378,919, this property requires consideration of its condition and location. The property benefits from a rear garden, though its current state appears to need attention. The house itself shows signs of needing some modernisation and updating, which would impact its overall value. Nearby comparable properties range from £38,000 to £165,000, indicating a wide price range in the immediate vicinity. Proximity to transportation links and schools is a positive, but the overall condition of the property is a significant factor in determining its value.
Therefore, we give this property 5 / 10. *Disclaimer: This is our option and does constitute a recommendation or financial advice. Do your own research. *
- Price
- 5
- Condition
- 4
- Location
- 6
- Land
- 5
- Bedrooms
- 3
- Bathrooms
- 2
The heatmap indicates the level of crime in the area. The color of the heatmap indicates the crime severity and recency.
Metrics Year-on-Year
- Average area value
- 300,000.00 £Decreased by 22.28 %
- Average area rental value
- 1,073.00 £/moDecreased by 13.47 %
- Est rental Yield
- 4.29 %Increased by 11.43 %
- Crime Rate
- 21.00 %Unchanged by 0.00 %
Agent Activity
Cariad Property created the listing.
Nearby Schools
| Name | Type | Ofsted | Distance |
|---|---|---|---|
| Trinant Primary School | Welsh Establishment | 3.54 KM | |
| Sofrydd C.P. School | Welsh Establishment | 4.48 KM | |
| Crumlin High Level Primary School | Welsh Establishment | 5.46 KM | |
| St Illtyd'S | Welsh Establishment | 5.54 KM | |
| Ystruth Primary | Welsh Establishment | 5.75 KM |
Images
Nearby Streets
| Name | Average Price | Average Sqft | Distance |
|---|---|---|---|
| Chapel Road | £ 0 | 0 | 0.00 KM |
| Ebbw fach Trail | £ 95,000 | 0 | 0.00 KM |
| Cemetery Road | £ 135,000 | 0 | 0.00 KM |
| Victoria Road | £ 124,983 | 0 | 0.00 KM |
| Cwmcottage Road | £ 184,143 | 0 | 0.00 KM |
Nearby Transport
| Name | NLC | TLC | Distance |
|---|---|---|---|
| Llanhilleth | 9916 | LTH | 2.71 KM |
| Newbridge | 9919 | NBE | 6.62 KM |
| Ebbw Vale Parkway | 9915 | EBV | 8.55 KM |
Nearby Listings
| Address | Price | Type | Score | Distance |
|---|---|---|---|---|
| Marlborough Road, Abertillery, Gwent, Blaenau Gwent, NP13 | £ 142,250 | BUY | 5 / 10 | 0.00 KM |
| Marlborough Road, Six Bells, Abertillery | £ 139,995 | BUY | 5 / 10 | 0.01 KM |
| Bryngwyn Road, Abertillery, Gwent, Blaenau Gwent, NP13 | £ 134,995 | BUY | 6 / 10 | 0.07 KM |
| Bryngwyn Road, Abertillery | £ 140,000 | BUY | 6 / 10 | 0.07 KM |
| Bryngwyn Road, Six Bells | £ 120,000 | BUY | 7 / 10 | 0.07 KM |
Nearby Properties
| Address | Price | Distance |
|---|---|---|
| 18 Marlborough Road | £ 60,000 | 0.00 KM |
| 10 Marlborough Road | £ 66,000 | 0.00 KM |
| 27 Marlborough Road | £ 73,500 | 0.00 KM |
| 6 Marlborough Road | £ 87,500 | 0.00 KM |
| 17 Marlborough Road | £ 102,000 | 0.00 KM |