Vivaldi Close, Brighton Hill
By The Property Explorer
£ 245,000
Reviews
3 out of 5 stars
The Property Explorer says ..
Excellent opportunity for first-time buyers, downsizers, or investors. 2-bed mid-terraced house with spacious living room, conservatory, enclosed garden, 2 parking spaces, and convenient location. Ready to move in with no onward chain.
Property Oracle says ..
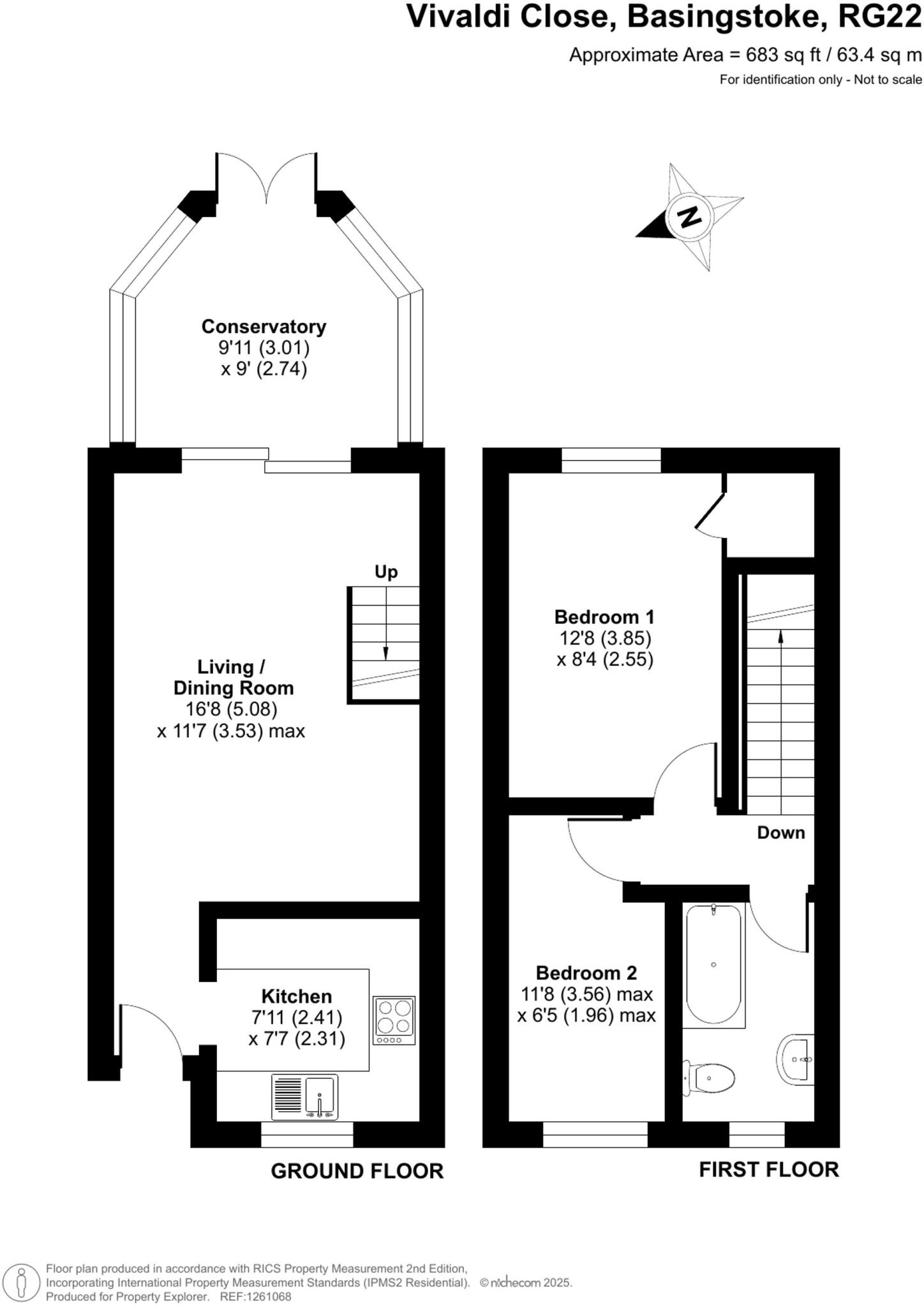
This two-bedroom terraced house in Vivaldi Close, Brighton Hill, Basingstoke is listed at £245,000. The property benefits from a good location, close to local schools and transport links. While the images show a property that is well maintained and presented, there is no information provided on the square footage, which makes it difficult to assess the price per square foot and overall value. The property includes a conservatory and a garden, adding to its appeal. However, without knowing the actual square footage, it is impossible to provide a comprehensive analysis of the property’s value compared to local averages.
Therefore, we give this property 7 / 10. *Disclaimer: This is our option and does constitute a recommendation or financial advice. Do your own research. *
- Price
- 6
- Condition
- 8
- Location
- 7
- Land
- 7
- Bedrooms
- 2
- Bathrooms
- 1
- Sqft (est)
- 441.00
- Lot (est)
- 683.00
The heatmap indicates the level of crime in the area. The color of the heatmap indicates the crime severity and recency.
Metrics Year-on-Year
- Average area value
- 1,258,750.00 £Increased by 38.62 %
- Est sale value
- 259,749.00 £Decreased by 3.12 %
- Average area rental value
- 2,017.00 £/moDecreased by 42.17 %
- Est letting value
- 0.00 £/moDecreased by 100.00 %
- Est rental Yield
- 1.92 %Decreased by 58.35 %
- Crime Rate
- 8.00 %Unchanged by 0.00 %
Agent Activity
The Property Explorer marked this listing as sold.
The Property Explorer created the listing.
Nearby Schools
| Name | Type | Ofsted | Distance |
|---|---|---|---|
| Buttercups And Bunnies Children'S Centre | Children's Centre | 0.20 KM | |
| Manor Field Infant School | Community School | Good | 0.25 KM |
| Manor Field Junior School | Community School | Good | 0.25 KM |
| Brighton Hill Community School | Community School | Good | 0.89 KM |
| Chalk Ridge Primary School | Community School | Good | 0.99 KM |
Images
Nearby Streets
| Name | Average Price | Average Sqft | Distance |
|---|---|---|---|
| Brighton Hill | £ 325,000 | 0 | 0.00 KM |
| Hatchwarren Lane | £ 0 | 0 | 0.00 KM |
| Ellington Drive | £ 0 | 0 | 0.00 KM |
| Lister Road | £ 0 | 0 | 0.00 KM |
| Winchester Road | £ 240,000 | 0 | 0.00 KM |
Nearby Transport
| Name | NLC | TLC | Distance |
|---|---|---|---|
| Basingstoke | 5520 | BSK | 4.14 KM |
Nearby Listings
| Address | Price | Type | Score | Distance |
|---|---|---|---|---|
| Vivaldi Close, Brighton Hill | £ 245,000 | BUY | 7 / 10 | 0.00 KM |
| Sibelius Close, Basingstoke, Hampshire, RG22 | £ 375,000 | BUY | 7 / 10 | 0.11 KM |
| Sibelius Close, Brighton Hill, Basingstoke | £ 300,000 | BUY | 6 / 10 | 0.12 KM |
| Sibelius Close, Basingstoke, RG22 | £ 375,000 | BUY | 7 / 10 | 0.16 KM |
| Sibelius Close, BASINGSTOKE, RG22 | £ 325,000 | BUY | Unknown | 0.18 KM |
Nearby Properties
| Address | Price | Distance |
|---|---|---|
| 4 Vivaldi Close | £ 285,000 | 0.05 KM |
| 21 Vivaldi Close | £ 162,500 | 0.05 KM |
| 32 Vivaldi Close | £ 102,000 | 0.05 KM |
| 33 Vivaldi Close | £ 119,500 | 0.05 KM |
| 14 Vivaldi Close | £ 190,000 | 0.05 KM |