Plynlimon Close, CROESPENMAEN, NP113GJ
By Cariad Property
£ 449,000
Reviews
3 out of 5 stars
Cariad Property says ..
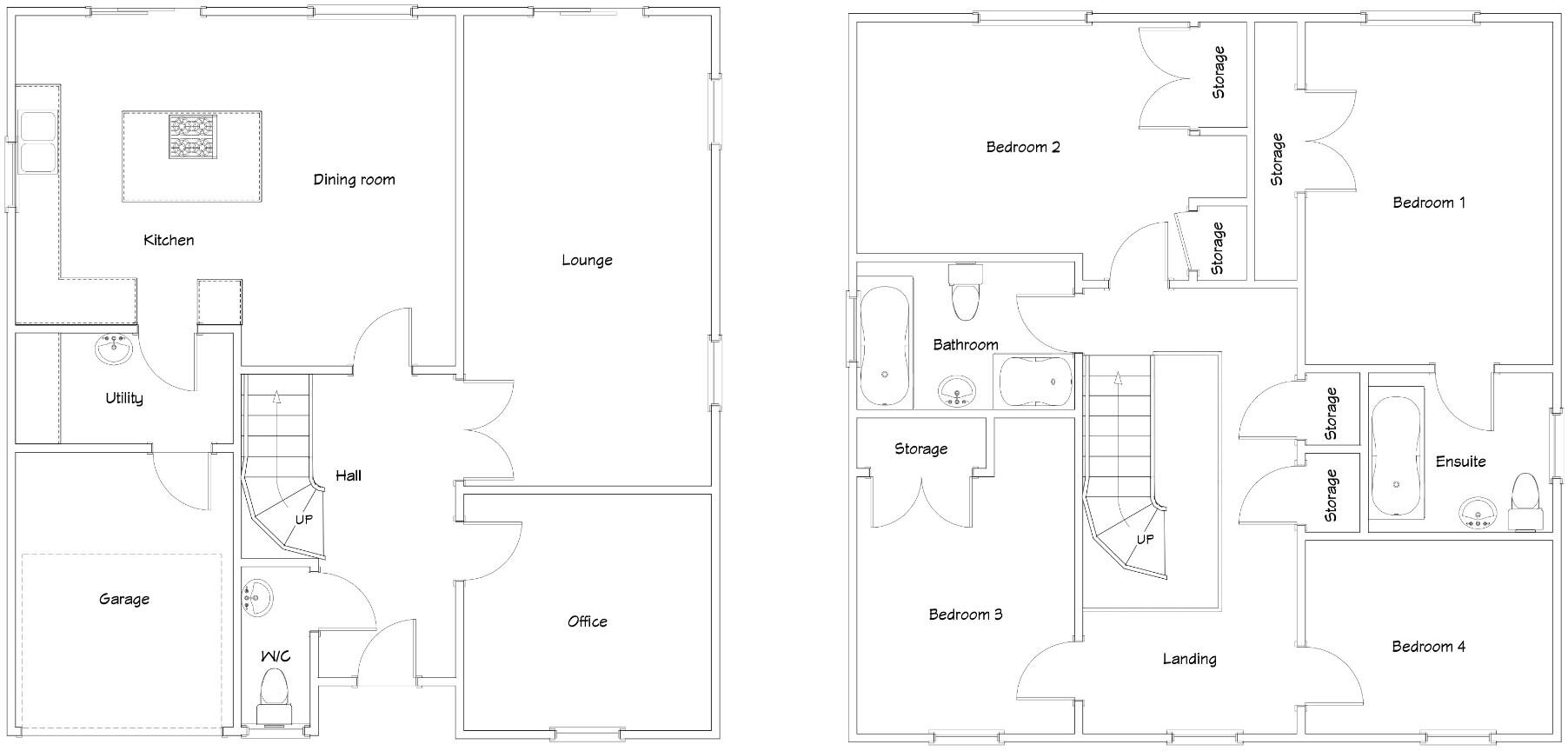
SIMPLY OUTSTANDING EXECUTIVE FAMILY HOME. A modern attractive build with a striking interior design, four large bedrooms, three reception rooms, three WCs, super gardens, and a garage. You will love the glorious views of surrounding countryside.
Property Oracle says ..
The property is a four-bedroom, three-bathroom house listed at £449,000. The images show a well-maintained property with a modern kitchen and bathrooms. There is evidence of recent renovations or upgrades, suggesting the property is in good condition. The property also benefits from a garden, adding to its desirability. The location in Croespenmaen, near Crumlin, appears to be a residential area with access to local amenities and schools. The proximity to several train stations is a positive aspect, improving accessibility. However, without specific details on the quality of local schools or the precise nature of nearby amenities, a definitive assessment of location quality is difficult. Considering the list price of £449,000, and comparing it to the average house price of £226,000 and average price per sqft of £278 in the area, the property is significantly higher priced than average. However, this difference may be justified by the property’s apparent excellent condition, the presence of a garden, and its size (although the sqft is not provided). Nearby comparable properties on Plynlimon Close itself show a range of prices, from £93,000 to £435,000 indicating significant price variation within the street. Further information on the size of this property would help to determine if the price is justified.
Therefore, we give this property 7 / 10. *Disclaimer: This is our option and does constitute a recommendation or financial advice. Do your own research. *
- Price
- 6
- Condition
- 8
- Location
- 7
- Land
- 7
- Bedrooms
- 4
- Bathrooms
- 3
The heatmap indicates the level of crime in the area. The color of the heatmap indicates the crime severity and recency.
Metrics Year-on-Year
- Average area value
- 219,115.00 £Increased by 18.08 %
- Average area rental value
- 1,500.00 £/moIncreased by 50.30 %
- Est rental Yield
- 8.21 %Increased by 27.29 %
- Crime Rate
- 24.00 %Unchanged by 0.00 %
Agent Activity
Cariad Property marked this listing as sold.
Cariad Property created the listing.
Nearby Schools
| Name | Type | Ofsted | Distance |
|---|---|---|---|
| Crumlin High Level Primary School | Welsh Establishment | 1.57 KM | |
| Tynewydd Primary School | Welsh Establishment | 1.93 KM | |
| Rhiw Syr Dafyedd Primary | Welsh Establishment | 1.97 KM | |
| Trinant Primary School | Welsh Establishment | 2.32 KM | |
| Newbridge School | Welsh Establishment | 2.45 KM |
Images
Nearby Streets
| Name | Average Price | Average Sqft | Distance |
|---|---|---|---|
| Pen-Y-Bryn Court | £ 0 | 0 | 0.00 KM |
| The Hollies | £ 0 | 0 | 0.00 KM |
| The Elms | £ 0 | 0 | 0.00 KM |
| Pen-Y-Groes | £ 315,000 | 0 | 0.00 KM |
| Horeb Lane | £ 399,000 | 0 | 0.00 KM |
Nearby Transport
| Name | NLC | TLC | Distance |
|---|---|---|---|
| Newbridge | 9919 | NBE | 2.23 KM |
| Llanhilleth | 9916 | LTH | 3.28 KM |
| Crosskeys | 9902 | CKY | 7.41 KM |
| Gilfach Fargoed | 4022 | GFF | 7.72 KM |
| Bargoed | 4011 | BGD | 8.16 KM |
Nearby Listings
| Address | Price | Type | Score | Distance |
|---|---|---|---|---|
| Plynlimon Close, CROESPENMAEN, NP113GJ | £ 449,000 | BUY | 7 / 10 | 0.00 KM |
| Plynlimon Close, Crumlin, NP11 | £ 375,000 | BUY | 7 / 10 | 0.05 KM |
| Plynlimon Avenue, Croespenmaen, NP11 | £ 225,000 | BUY | 7 / 10 | 0.15 KM |
| Pen-Y-Cae Close, Crumlin, NP11 | £ 189,000 | BUY | 7 / 10 | 0.19 KM |
| Plynlimon Avenue, Crumlin, NP11 | £ 700,000 | BUY | 6 / 10 | 0.19 KM |
Nearby Properties
| Address | Price | Distance |
|---|---|---|
| 10 Plynlimon Close | £ 235,000 | 0.00 KM |
| 14 Plynlimon Close | £ 125,000 | 0.00 KM |
| 6 Plynlimon Close | £ 421,915 | 0.00 KM |
| 18 Plynlimon Close | £ 240,000 | 0.00 KM |
| 19 Plynlimon Close | £ 435,000 | 0.00 KM |