Lavender Court, Netherton, Huddersfield, HD4
By WM. Sykes & Son
£ 285,000
Reviews
3 out of 5 stars
WM. Sykes & Son says ..
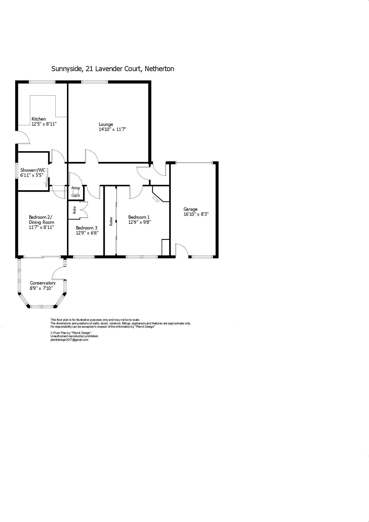
A well presented detached true bungalow located on a popular residential cul-de-sac. The accommodation comprises: entrance porch, hall, lounge, kitchen, 3 bedrooms, bathroom and conservatory. It has the benefit of a gas central heating system, sealed unit double glazing and is well presented t...
Property Oracle says ..
This property is a 3-bedroom detached bungalow located in Netherton, Huddersfield. The location benefits from being relatively close to several primary schools, with Netherton Infant and Nursery School being the closest at 0.41km. There are also several train stations within a reasonable distance, providing convenient access to other areas. The property itself appears to be well-maintained and in good condition, with a modern bathroom and kitchen. It includes a conservatory and a garden. While the plot size is not specified, the garden appears to be of a reasonable size. Compared to other properties in the area, the list price of £285,000 seems slightly above average, but considering the condition and additional features like the conservatory, it may be justifiable. More information on the plot size would allow for a more precise evaluation of the price.
Therefore, we give this property 7 / 10. *Disclaimer: This is our option and does constitute a recommendation or financial advice. Do your own research. *
- Price
- 6
- Condition
- 8
- Location
- 7
- Land
- 7
- Bedrooms
- 3
- Bathrooms
- 1
- Sqft (est)
- 824.77
The heatmap indicates the level of crime in the area. The color of the heatmap indicates the crime severity and recency.
Metrics Year-on-Year
- Average area value
- 274,970.00 £Increased by 37.10 %
- Est sale value
- 279,597.03 £Increased by 54.79 %
- Average area rental value
- 758.00 £/moDecreased by 5.13 %
- Est letting value
- 0.00 £/mo
- Est rental Yield
- 3.31 %Decreased by 30.75 %
- Crime Rate
- 3.00 %Unchanged by 0.00 %
Agent Activity
WM. Sykes & Son marked this listing as sold.
WM. Sykes & Son created the listing.
Nearby Schools
| Name | Type | Ofsted | Distance |
|---|---|---|---|
| Netherton Infant And Nursery School | Academy Converter | 0.41 KM | |
| South Crosland Church Of England Voluntary Aided Junior School | Voluntary Aided School | Good | 0.63 KM |
| Honley Cofe (Vc) Junior, Infant And Nursery School | Voluntary Controlled School | 1.89 KM | |
| Berry Brow Infant And Nursery School | Community School | Good | 1.97 KM |
| Beaumont Primary Academy | Free Schools | Good | 2.09 KM |
Images
Nearby Streets
| Name | Average Price | Average Sqft | Distance |
|---|---|---|---|
| Crescent Road | £ 0 | 0 | 0.00 KM |
| Scar Top | £ 0 | 0 | 0.00 KM |
| Clitheroe Close | £ 390,000 | 0 | 0.00 KM |
| Mag Brook Gardens | £ 525,000 | 0 | 0.00 KM |
| The Fellows | £ 0 | 0 | 0.00 KM |
Nearby Transport
| Name | NLC | TLC | Distance |
|---|---|---|---|
| Berry Brow | 8431 | BBW | 1.85 KM |
| Lockwood | 8443 | LCK | 2.76 KM |
| Honley | 8436 | HOY | 2.83 KM |
| Brockholes | 8429 | BHS | 4.34 KM |
| Huddersfield | 8437 | HUD | 4.86 KM |
Nearby Listings
| Address | Price | Type | Score | Distance |
|---|---|---|---|---|
| Lavender Court, Netherton, Huddersfield, HD4 | £ 285,000 | BUY | 7 / 10 | 0.00 KM |
| Lavender Court, Netherton, HD4 | £ 375,000 | BUY | 7 / 10 | 0.06 KM |
| Lavender Court, Netherton, Huddersfield HD4 | £ 220,000 | BUY | 7 / 10 | 0.07 KM |
| Lavender Court, Netherton, Huddersfield | £ 250,000 | BUY | 6 / 10 | 0.08 KM |
| Lavender Court, Huddersfield, HD4 | £ 300,000 | BUY | Unknown | 0.08 KM |
Nearby Properties
| Address | Price | Distance |
|---|---|---|
| 3 Lavender Court | £ 265,000 | 0.08 KM |
| 15 Lavender Court | £ 155,102 | 0.08 KM |
| 6 Lavender Court | £ 250,000 | 0.08 KM |
| 42 Lavender Court | £ 159,000 | 0.08 KM |
| 11 Lavender Court | £ 188,000 | 0.08 KM |