Wheatcroft & Lloyd says ..
We are pleased to offer for sale WITH NO ONWARD CHAIN, this mature semi-detached property in need of renovation and repair to create a stunning family home in a hugely popular residential location with excellent commuter links and close to highly regarded schools and South Cheshire College.
Property Oracle says ..
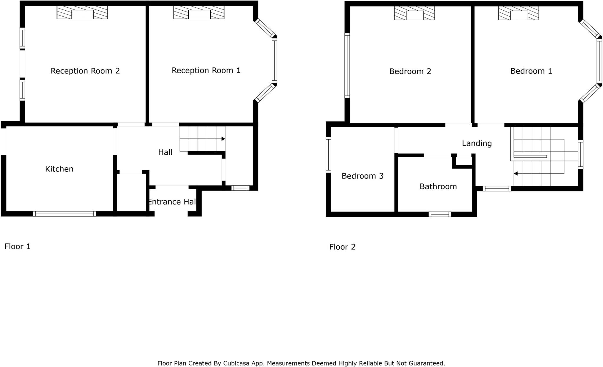
The property at Franklyn Avenue, Crewe, is a 3-bedroom semi-detached house requiring extensive renovation. While the location benefits from proximity to schools and transportation, the property’s condition and overgrown garden detract from its appeal. However, the price reflects the work needed, presenting an opportunity for buyers willing to invest in refurbishment.
Therefore, we give this property 5 / 10. *Disclaimer: This is our option and does constitute a recommendation or financial advice. Do your own research. *
- Price
- 8
- Condition
- 3
- Location
- 6
- Land
- 6
- Bedrooms
- 3
- Bathrooms
- 1
- Sqft (est)
- 960.00
The heatmap indicates the level of crime in the area. The color of the heatmap indicates the crime severity and recency.
Metrics Year-on-Year
- Average area value
- 212,500.00 £Increased by 23.18 %
- Est sale value
- 186,240.00 £Increased by 14.79 %
- Average area rental value
- 1,033.00 £/moIncreased by 37.73 %
- Est letting value
- 0.00 £/mo
- Est rental Yield
- 5.83 %Increased by 11.69 %
- Crime Rate
- 1.00 %Unchanged by 0.00 %
Agent Activity
Wheatcroft & Lloyd created the listing.
Nearby Schools
| Name | Type | Ofsted | Distance |
|---|---|---|---|
| Gainsborough Primary And Nursery School | Community School | Requires improvement | 0.23 KM |
| The Oaks Academy | Academy Sponsor Led | 0.27 KM | |
| Edleston Primary School | Community School | Good | 0.43 KM |
| Cheshire College - South & West | Further Education | Good | 0.45 KM |
| Vine Tree Primary School | Community School | Good | 0.67 KM |
Images
Nearby Streets
| Name | Average Price | Average Sqft | Distance |
|---|---|---|---|
| Belgrave Road | £ 175,375 | 0 | 0.00 KM |
| Hornbeam Close | £ 400,000 | 0 | 0.00 KM |
| Doddington Road | £ 0 | 0 | 0.00 KM |
| Dunwoody Way | £ 0 | 0 | 0.00 KM |
| Darley Avenue | £ 0 | 0 | 0.00 KM |
Nearby Transport
| Name | NLC | TLC | Distance |
|---|---|---|---|
| Crewe | 1243 | CRE | 2.39 KM |
| Nantwich | 1247 | NAN | 7.78 KM |
| Sandbach | 1261 | SDB | 9.38 KM |
Nearby Listings
| Address | Price | Type | Score | Distance |
|---|---|---|---|---|
| Franklyn Avenue, Crewe | £ 175,000 | BUY | 5 / 10 | 0.00 KM |
| Franklyn Avenue, Crewe, Cheshire, CW2 | £ 240,000 | BUY | 7 / 10 | 0.00 KM |
| Franklyn Avenue, Crewe, CW2 | £ 245,000 | BUY | Unknown | 0.01 KM |
| Franklyn Avenue, Crewe | £ 230,000 | BUY | 6 / 10 | 0.09 KM |
| Franklyn Avenue, Crewe | £ 220,000 | BUY | 7 / 10 | 0.09 KM |
Nearby Properties
| Address | Price | Distance |
|---|---|---|
| 8 Franklyn Avenue | £ 140,000 | 0.00 KM |
| 31 Franklyn Avenue | £ 146,000 | 0.00 KM |
| 23 Franklyn Avenue | £ 155,000 | 0.00 KM |
| 2 Franklyn Avenue | £ 204,000 | 0.00 KM |
| 28 Franklyn Avenue | £ 110,000 | 0.00 KM |