AS
Raven Grove, Acomb, York
By Ashtons Estate Agents
£ 140,000
Reviews
2 out of 5 stars
Ashtons Estate Agents says ..
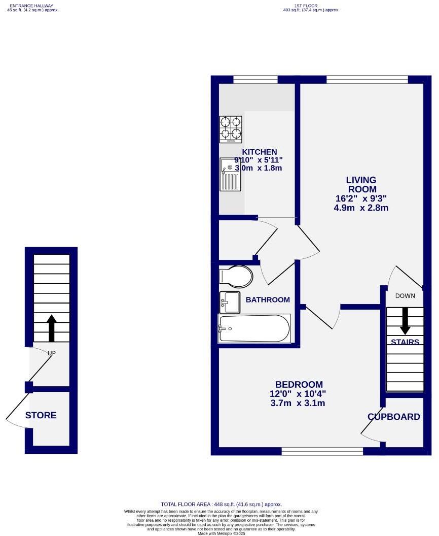
Positioned in a peaceful cul-de-sac just off Beckfield Lane, this well-presented one-bedroom first-floor maisonette offers a fantastic opportunity for first-time buyers, downsizers, or investors seeking a low-maintenance home in a convenient location. Accessed via its own private entranc...
Property Oracle says ..
Therefore, we give this property 5 / 10. *Disclaimer: This is our option and does constitute a recommendation or financial advice. Do your own research. *
- Price
- 8
- Condition
- 5
- Location
- 7
- Land
- 3
- Bedrooms
- 1
- Bathrooms
- 1
- Sqft (est)
- 566.00
The heatmap indicates the level of crime in the area. The color of the heatmap indicates the crime severity and recency.
Metrics Year-on-Year
- Average area value
- 591,875.00 £Increased by 5.13 %
- Est sale value
- 269,982.00 £Decreased by 6.47 %
- Average area rental value
- 1,194.00 £/moDecreased by 3.63 %
- Est letting value
- 0.00 £/moDecreased by 100.00 %
- Est rental Yield
- 2.42 %Decreased by 8.33 %
- Crime Rate
- 6.00 %Unchanged by 0.00 %
from 562,987.00 £
from 288,660.00 £
from 1,239.00 £/mo
from 566.00 £/mo
from 2.64 %
from 6.00 %
Agent Activity
Ashtons Estate Agents created the listing.
Nearby Schools
| Name | Type | Ofsted | Distance |
|---|---|---|---|
| Carr Infant School | Community School | Good | 0.68 KM |
| Carr Children'S Centre | Children's Centre | 0.75 KM | |
| Carr Junior School | Academy Converter | 0.75 KM | |
| Westfield Children'S Centre | Children's Centre | 1.07 KM | |
| York High School | Academy Sponsor Led | 1.18 KM |
Images
Nearby Streets
| Name | Average Price | Average Sqft | Distance |
|---|---|---|---|
| Croft Way | £ 0 | 0 | 0.00 KM |
| Meeting House Lane | £ 0 | 0 | 0.00 KM |
| Carnoustie Close | £ 0 | 0 | 0.00 KM |
| Vyner House | £ 0 | 0 | 0.00 KM |
| Woodlea Grove | £ 0 | 0 | 0.00 KM |
Nearby Transport
| Name | NLC | TLC | Distance |
|---|---|---|---|
| Poppleton | 8254 | POP | 2.59 KM |
| York | 8263 | YRK | 4.38 KM |
Nearby Listings
| Address | Price | Type | Score | Distance |
|---|---|---|---|---|
| Raven Grove, Acomb, York | £ 140,000 | BUY | 5 / 10 | 0.00 KM |
| Gresley Court, Acomb, YO26 | £ 157,500 | BUY | Unknown | 0.04 KM |
| Gresley Court, York | £ 190,000 | BUY | 6 / 10 | 0.09 KM |
| Gresley Court, York | £ 190,000 | BUY | 6 / 10 | 0.09 KM |
| Millbrook Rise, York, North Yorkshire, YO26 | £ 425,000 | BUY | 7 / 10 | 0.15 KM |
Nearby Properties
| Address | Price | Distance |
|---|---|---|
| 12 Raven Grove | £ 125,000 | 0.01 KM |
| 34 Raven Grove | £ 152,000 | 0.01 KM |
| 30 Raven Grove | £ 159,950 | 0.01 KM |
| 14 Raven Grove | £ 86,000 | 0.01 KM |
| 24 Raven Grove | £ 240,000 | 0.01 KM |