Saracen Road, Hellesdon
WA

Saracen Road, Hellesdon

By Watsons

£ 325,000

Reviews

4 out of 5 stars

Watsons says ..

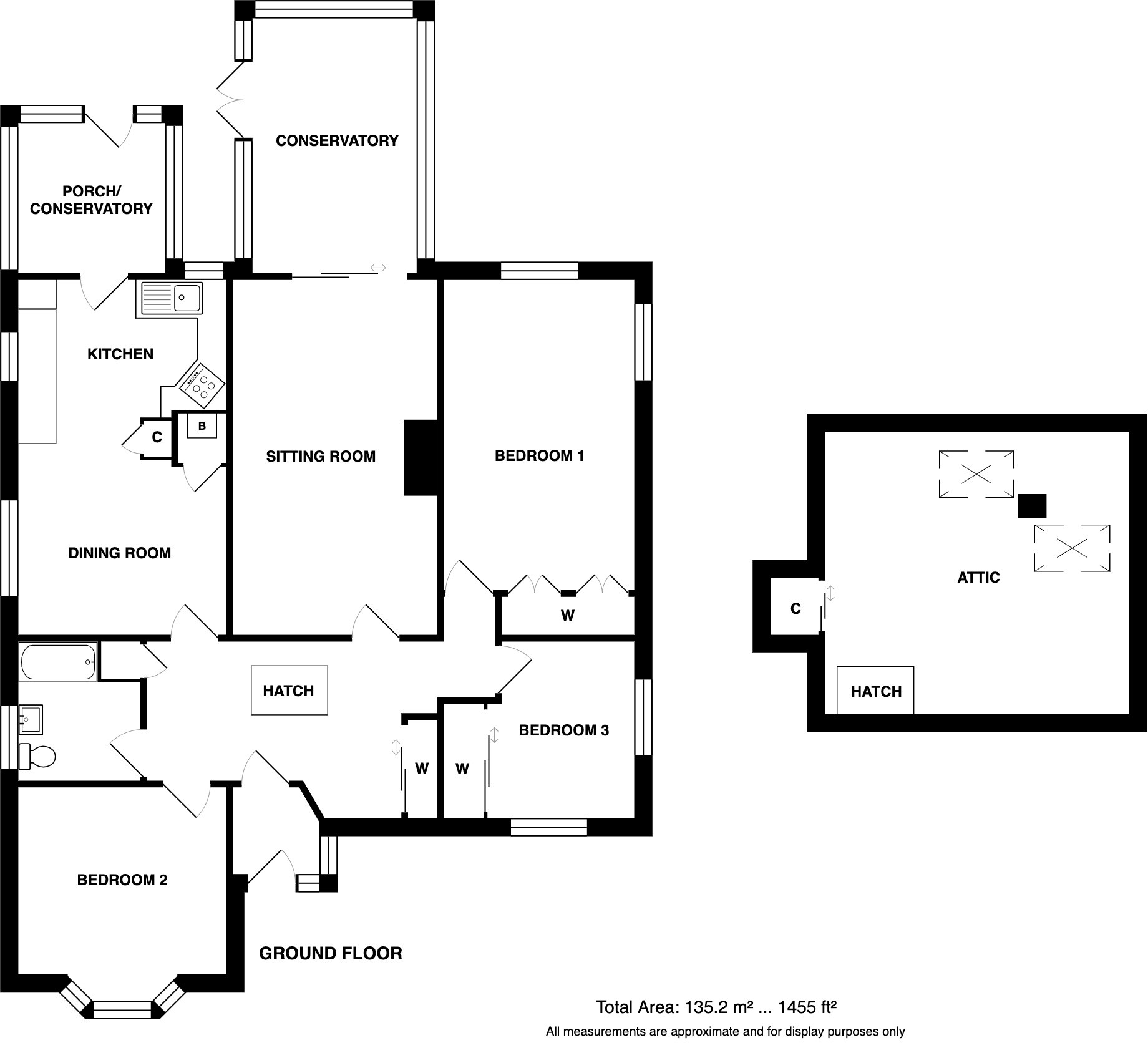
An attractive mature detached bungalow with tandem double garage offering scope for improvement, situated on a corner plot in this ever-popular suburban location on the NorthWest outskirts of Norwich

Property Oracle says ..

The property is located in Hellesdon, a suburb on the Northwest outskirts of Norwich. Based on the provided information, Hellesdon appears to be a desirable location with good access to local schools such as Firside Junior School (Good Ofsted rating) and Arden Grove Infant and Nursery School (Outstanding Ofsted rating), both within a kilometer of the property. The proximity to Norwich city center (6.61 KM) via Greater Anglia rail services provides convenient access to broader amenities and employment opportunities. The surrounding streets, such as Heath Close and Saint Andrews Road, show average house prices comparable to the listing price, suggesting the location is consistent with similar properties in the area.

The images show a three-bedroom detached bungalow. The property appears to be well-maintained, with a modern bathroom and conservatory. While some rooms show signs of needing updating, the overall condition of the property seems good. The presence of a conservatory and garden adds to the property’s appeal.

The property includes a garden, which is a desirable feature for many buyers. The images show a well-maintained garden area, adding to the overall value of the property.

The list price of £325,000 is slightly below the average house price of £346,152 in the area. Considering the property’s apparent good condition, desirable location, and inclusion of a garden, the price appears reasonable. However, the lack of square footage information prevents a precise price-per-square-foot comparison to the area average of £282. The nearby comparable properties listed at similar prices further support the reasonableness of the asking price.

Therefore, we give this property 8 / 10. *Disclaimer: This is our option and does constitute a recommendation or financial advice. Do your own research. *

Price
8
Condition
8
Location
9
Land
8
Bedrooms
3
Bathrooms
1
Sqft (est)
1,455.28

The heatmap indicates the level of crime in the area. The color of the heatmap indicates the crime severity and recency.

Metrics Year-on-Year

Average area value
417,969.00 £
Increased by 36.61 %
from 305,966.00 £
Est sale value
544,274.72 £
Increased by 1.91 %
from 534,087.76 £
Average area rental value
1,251.00 £/mo
Increased by 48.05 %
from 845.00 £/mo
Est letting value
1,455.28 £/mo
Unchanged by 0.00 %
from 1,455.28 £/mo
Est rental Yield
3.59 %
Increased by 8.46 %
from 3.31 %
Crime Rate
2.00 %
Unchanged by 0.00 %
from 2.00 %

Agent Activity

  • Watsons created the listing.

Nearby Schools

NameTypeOfstedDistance
Firside Junior SchoolAcademy ConverterGood0.60 KM
Arden Grove Infant And Nursery SchoolAcademy ConverterOutstanding0.86 KM
Kinsale Infant SchoolCommunity SchoolGood1.09 KM
Kinsale Junior SchoolAcademy Converter1.09 KM
Hellesdon High SchoolAcademy ConverterGood1.33 KM

Images

Front Sitting Room Attic Bathroom Bedroom 1 Kitchen Conservatory Rear elevation Dining Room Rear porch Bedroom 2 Entrance Hall Bedroom 3 Garage Front Rear garden Rear elevation Dining room Bedroom 2 Bedroom 3 Conservatory Garage Rear garden Front Sitting Room Kitchen Rear garden Bathroom Bedroom 1 Entarnce hall Attic Rear garden 1

Nearby Streets

NameAverage PriceAverage SqftDistance
Holt Road £ 000.00 KM
Heath Close £ 325,00000.00 KM
Shrub Lane £ 290,00000.00 KM
Oak Tree Lane £ 000.00 KM
Saint Andrews Road £ 335,00000.00 KM

Nearby Transport

NameNLCTLCDistance
Norwich7309NRW6.61 KM

Nearby Listings

AddressPriceTypeScoreDistance
Saracen Road, Hellesdon £ 325,000BUY8 / 100.00 KM
Saracen Road, Hellesdon, Norwich, Norfolk, NR6 £ 280,000BUY6 / 100.01 KM
Berrington Road, Hellesdon, Norwich, Norfolk, NR6 £ 350,000BUY6 / 100.08 KM
Saracen Road, Hellesdon, Norwich, Norfolk, NR6 £ 325,000BUY6 / 100.13 KM
Gowing Road, Hellesdon, Norwich £ 280,000BUYUnknown0.14 KM

Nearby Properties

AddressPriceDistance
12 Kered Close £ 200,0000.11 KM
16 Kered Close £ 200,0000.11 KM
18 Kered Close £ 230,0000.11 KM
4 Kered Close £ 300,0000.11 KM
10 Kered Close £ 275,0000.11 KM