Chancellors says ..
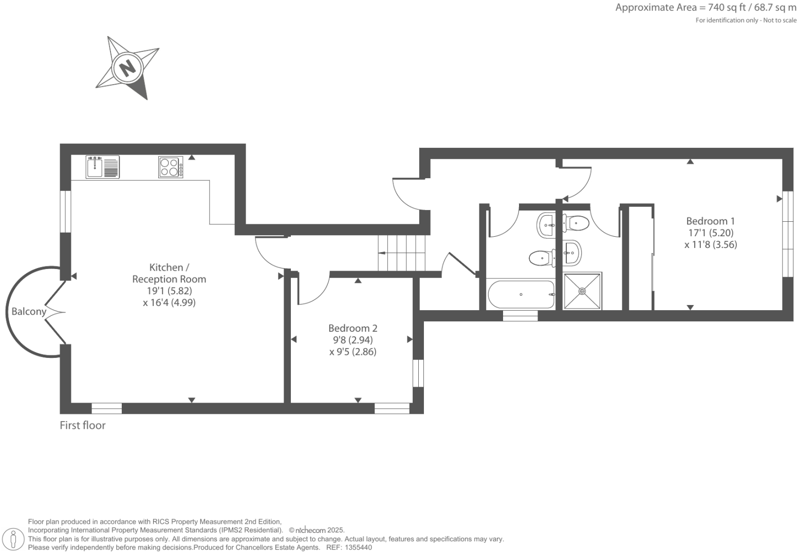
Forming part of this attractive semi-detached older-style property, is this first floor, two bedroom, two bathroom character conversion. The property is located along Nether Street and within 0.3 miles to West Finchley tube station.
Property Oracle says ..
This is a two-bedroom flat in West Finchley, London. The property is in good condition and has been recently renovated. It is located in a popular residential area with good access to local amenities, schools, and transportation. The property is listed at £550,000, which is below the average price for the area. The flat has two bathrooms and is 740 sqft. The property benefits from good nearby schools and transportation links.
Therefore, we give this property 6 / 10. *Disclaimer: This is our option and does constitute a recommendation or financial advice. Do your own research. *
- Price
- 6
- Condition
- 8
- Location
- 7
- Land
- 4
- Bedrooms
- 2
- Bathrooms
- 2
- Sqft (est)
- 740.00
The heatmap indicates the level of crime in the area. The color of the heatmap indicates the crime severity and recency.
Metrics Year-on-Year
- Average area value
- 659,086.00 £Increased by 6.43 %
- Est sale value
- 613,460.00 £Increased by 20.49 %
- Average area rental value
- 2,352.00 £/moDecreased by 3.41 %
- Est letting value
- 1,480.00 £/moUnchanged by 0.00 %
- Est rental Yield
- 4.28 %Decreased by 9.32 %
- Crime Rate
- 7.00 %Unchanged by 0.00 %
Agent Activity
Chancellors created the listing.
Nearby Schools
| Name | Type | Ofsted | Distance |
|---|---|---|---|
| St Mary'S Cofe Primary School | Voluntary Aided School | Outstanding | 0.79 KM |
| Moss Hall Nursery School | Local Authority Nursery School | Outstanding | 0.91 KM |
| Pardes House Primary School | Voluntary Aided School | Good | 0.94 KM |
| Pardes House Grammar School | Other Independent School | Good | 0.94 KM |
| Moss Hall Junior School | Community School | Requires improvement | 0.95 KM |
Images
Nearby Streets
| Name | Average Price | Average Sqft | Distance |
|---|---|---|---|
| Popes Drive | £ 0 | 0 | 0.00 KM |
| Adams Close | £ 550,000 | 0 | 0.00 KM |
| Albert Place | £ 565,000 | 0 | 0.00 KM |
| Wootton Grove | £ 0 | 0 | 0.00 KM |
| Chaville Way | £ 0 | 0 | 0.00 KM |
Nearby Transport
| Name | NLC | TLC | Distance |
|---|---|---|---|
| Oakleigh Park | 6020 | OKL | 4.60 KM |
| New Barnet | 6018 | NBA | 5.19 KM |
| New Southgate | 6019 | NSG | 5.67 KM |
| Cricklewood | 1519 | CRI | 5.77 KM |
| Hendon | 1522 | HEN | 5.78 KM |
Nearby Listings
| Address | Price | Type | Score | Distance |
|---|---|---|---|---|
| Nether Street, Finchley, N3 | £ 550,000 | BUY | 6 / 10 | 0.00 KM |
| Nether Street, Finchley, N3 | £ 675,000 | BUY | 7 / 10 | 0.00 KM |
| Nether Street, London N3 THREE BEDROOMS | £ 720,000 | BUY | 5 / 10 | 0.02 KM |
| Nether Street, Finchley Central, N3 | £ 349,950 | BUY | 5 / 10 | 0.10 KM |
| Lansdowne Road, Finchley, London, N3 | £ 1,100,000 | BUY | 7 / 10 | 0.10 KM |
Nearby Properties
| Address | Price | Distance |
|---|---|---|
| 224 Nether Street | £ 240,000 | 0.07 KM |
| 204b Nether Street | £ 477,000 | 0.07 KM |
| 206 Nether Street | £ 485,000 | 0.07 KM |
| 323 Nether Street | £ 200,000 | 0.08 KM |
| 321 Nether Street | £ 113,000 | 0.08 KM |