Town End Street, Godalming, Surrey, GU7
SE

Town End Street, Godalming, Surrey, GU7

By Seymours

£ 90,000

Reviews

3 out of 5 stars

Seymours says ..

Tucked away in a desirable and peaceful setting, this inviting apartment combines the ease of modern living with a genuine sense of home. The development’s attractive red brick exterior and neatly maintained communal gardens create an immediate feeling of warmth and care, while secu...

Property Oracle says ..

This is a one-bedroom retirement property located in Godalming, Surrey. The apartment is situated in Stuart Court on Town End Street. The property appears to be in good condition, with a modern kitchen and bathroom. The location is convenient, with access to local amenities, transportation, and schools. The asking price of £90,000 seems reasonable given the property’s size, condition, and location within the Godalming area. The property is a retirement property.

Therefore, we give this property 6 / 10. *Disclaimer: This is our option and does constitute a recommendation or financial advice. Do your own research. *

Price
8
Condition
7
Location
7
Land
3
Bedrooms
1
Bathrooms
1
Sqft (est)
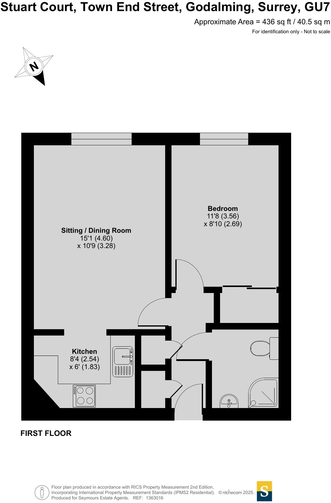
436.00

The heatmap indicates the level of crime in the area. The color of the heatmap indicates the crime severity and recency.

Metrics Year-on-Year

Average area value
622,000.00 £
Increased by 27.90 %
from 486,310.00 £
Est sale value
378,012.00 £
Increased by 103.52 %
from 185,736.00 £
Average area rental value
1,467.00 £/mo
Decreased by 11.84 %
from 1,664.00 £/mo
Est letting value
872.00 £/mo
Increased by 100.00 %
from 436.00 £/mo
Est rental Yield
2.83 %
Decreased by 31.14 %
from 4.11 %
Crime Rate
7.00 %
Unchanged by 0.00 %
from 7.00 %

Agent Activity

  • Seymours created the listing.

Nearby Schools

NameTypeOfstedDistance
Wharf Nursery School And Sure Start Children'S CentreChildren's Centre0.41 KM
The Wharf Nursery School & Children'S CentreLocal Authority Nursery SchoolGood0.41 KM
Moss Lane SchoolFoundation SchoolGood0.62 KM
St Edmund'S Catholic Primary SchoolAcademy Converter0.85 KM
Godalming Junior SchoolFoundation SchoolGood0.94 KM

Images

1363016-1-68f772c... 1363016-19-68f772... 1363016-3-68f7716... 1363016-18-68f772... 1363016-15-68f772... 1363016-16-68f772... 1363016-12-68f771... 1363016-13-68f771... 1363016-11-68f771... 1363016-9-68f7719... 1363016-7-68f7718... 1363016-20-68f772... 1363016-17-68f772... 1363016-14-68f771... 1363016-8-68f7719... 1363016-10-68f771... Google Maps Image

Nearby Streets

NameAverage PriceAverage SqftDistance
Latimer Road £ 000.00 KM
Crown Court £ 000.00 KM
The Paddock £ 1,700,00000.00 KM
Borough Road £ 400,00000.00 KM
Cow Lane £ 000.00 KM

Nearby Transport

NameNLCTLCDistance
Godalming5629GOD1.10 KM
Farncombe5643FNC1.61 KM
Milford (Surrey)5644MLF3.79 KM
Shalford (Surrey)5638SFR5.83 KM
Guildford5631GLD6.76 KM

Nearby Listings

AddressPriceTypeScoreDistance
Town End Street, Godalming, Surrey, GU7 £ 90,000BUY6 / 100.00 KM
Town End Street, Godalming, Surrey, GU7 £ 99,500BUY6 / 100.02 KM
Stuart Court, Townend Street, Godalming, Surrey, GU7 £ 110,000BUY7 / 100.02 KM
Town End Street, Godalming, Surrey, GU7 £ 775,000BUY8 / 100.03 KM
Town End Street, Godalming, Surrey, GU7 £ 138,000BUY6 / 100.03 KM

Nearby Properties

AddressPriceDistance
11b Town End Street £ 149,5000.03 KM
5 Town End Street £ 260,0000.03 KM
7 Carlos Street £ 325,0000.03 KM
Dylan House £ 330,0000.03 KM
45 Town End Street £ 472,5000.03 KM