4, Bryning Lane, Newton, PR4
By Unique Estate Agency Ltd
£ 225,000
Reviews
3 out of 5 stars
Unique Estate Agency Ltd says ..
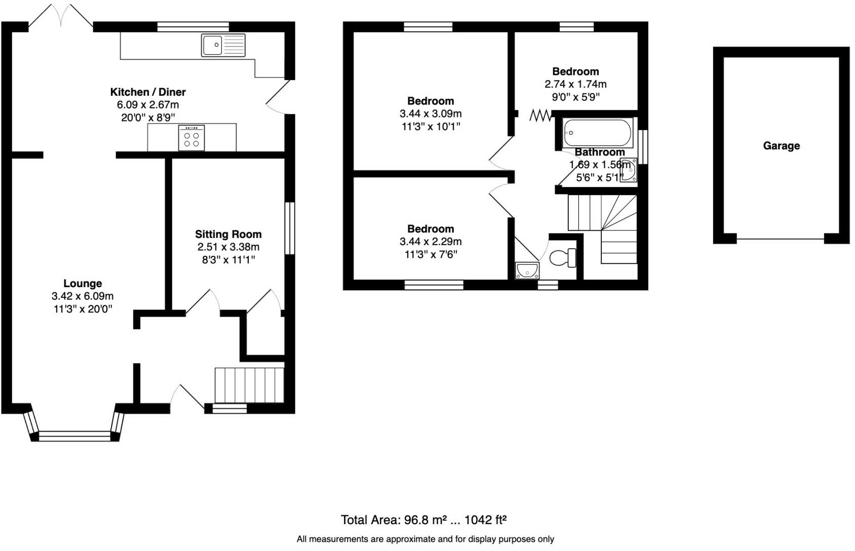
SPACIOUS THREE-BEDROOM SEMI-DETACHED HOME IN NEWTON WITH SCALES, LANCASHIRE. FEATURING A LARGE LOUNGE, DINING KITCHEN WITH FRENCH DOORS TO THE GARDEN, THREE GENEROUS BEDROOMS, AND A FAMILY BATHROOM. OUTSIDE, A REAR GARDEN, DETACHED GARAGE, AND OFF-STREET PARKING COMPLETE THIS FAMILY HOME.
Property Oracle says ..
This three-bedroom semi-detached house located at 4 Bryning Lane, Newton, PR4 3RQ, presents itself as a comfortable family home in a desirable location. The property boasts a modern kitchen extension offering a bright, open-plan feel. The interiors showcase neat, contemporary style furnishings and décor. A notable feature is the relatively generous sized, well maintained rear garden, ideal for family use. The presence of a detached garage provides additional storage space or parking. The proximity to well-regarded schools and convenient access to train stations are notable advantages that should appeal to families with children. However, the lack of specifics regarding plot size and the overall property condition (that could only be fully determined after a physical survey) limits the ability to provide a complete and definitive assessment of the property’s value. Buyers should conduct their own due diligence, including full survey and legal checks, before making an offer.
Therefore, we give this property 6 / 10. *Disclaimer: This is our option and does constitute a recommendation or financial advice. Do your own research. *
- Price
- 7
- Condition
- 7
- Location
- 7
- Land
- 6
- Bedrooms
- 3
- Bathrooms
- 1
- Sqft (est)
- 1,041.95
The heatmap indicates the level of crime in the area. The color of the heatmap indicates the crime severity and recency.
Metrics Year-on-Year
- Average area value
- 244,986.00 £Increased by 20.98 %
- Est sale value
- 328,214.25 £Increased by 17.98 %
- Average area rental value
- 778.00 £/moDecreased by 23.50 %
- Est letting value
- 1,041.95 £/moUnchanged by 0.00 %
- Est rental Yield
- 3.81 %Decreased by 36.82 %
- Crime Rate
- 136.00 %Unchanged by 0.00 %
Agent Activity
Unique Estate Agency Ltd created the listing.
Nearby Schools
| Name | Type | Ofsted | Distance |
|---|---|---|---|
| Newton Bluecoat Church Of England Primary School | Voluntary Aided School | Good | 1.07 KM |
| Oakfield House School | Other Independent Special School | Outstanding | 2.70 KM |
| Aurora Keyes Barn School | Other Independent Special School | Outstanding | 2.85 KM |
| Carr Hill High School | Community School | Requires improvement | 2.94 KM |
| Freckleton Strike Lane Primary School | Community School | Requires improvement | 3.08 KM |
Images
Nearby Streets
| Name | Average Price | Average Sqft | Distance |
|---|---|---|---|
| Woodlands Close | £ 475,000 | 0 | 0.00 KM |
| Elm Place | £ 0 | 0 | 0.00 KM |
| Greenfield Lane | £ 410,808 | 0 | 0.00 KM |
| Acorn Avenue | £ 0 | 0 | 0.00 KM |
| Parrox Lane | £ 650,000 | 0 | 0.00 KM |
Nearby Transport
| Name | NLC | TLC | Distance |
|---|---|---|---|
| Salwick | 2673 | SLW | 2.89 KM |
| Kirkham And Wesham | 2668 | KKM | 4.82 KM |
Nearby Listings
| Address | Price | Type | Score | Distance |
|---|---|---|---|---|
| 4, Bryning Lane, Newton, PR4 | £ 225,000 | BUY | 6 / 10 | 0.00 KM |
| Bryning Lane, Newton, Preston, PR4 | £ 220,000 | BUY | 7 / 10 | 0.01 KM |
| Avenham Place, Newton, Preston, PR4 | £ 140,000 | BUY | Unknown | 0.13 KM |
| Avenham Place, Newton, Preston, Lancashire, PR4 | £ 149,950 | BUY | 6 / 10 | 0.13 KM |
| Highgate Close, Newton with Scales, Preston | £ 500,000 | BUY | 7 / 10 | 0.14 KM |
Nearby Properties
| Address | Price | Distance |
|---|---|---|
| Highgate Cottage | £ 270,000 | 0.01 KM |
| Highgate House | £ 134,500 | 0.01 KM |
| 31 Bryning Lane | £ 160,000 | 0.01 KM |
| 43 Bryning Lane | £ 115,000 | 0.01 KM |
| Glenrowan | £ 217,000 | 0.01 KM |