Knight & Knoxley says ..
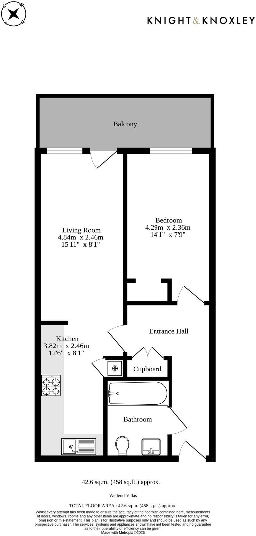
***Guide Price: £225,000 - £250,000*** Spacious one-bedroom apartment in the sought-after Wellend Villas development. The property benefits from a private southwest-facing balcony and has access to a communal roof terrace and gardens.
Property Oracle says ..
This one-bedroom apartment in Brighton is situated in the Preston Park area, close to local amenities and transport links. The property appears to be in good condition, with modern fixtures and fittings. While the apartment itself is relatively small (458 sq ft), it benefits from a private balcony offering views of the surrounding area. The list price of £225,000 is significantly lower than the average price for the area (£486,436), and also lower than many comparable properties in the vicinity. However, this may be due to the smaller size of the property compared to the average size of properties in the area. The lack of information on the plot size makes it difficult to fully assess the value for money.
Therefore, we give this property 6 / 10. *Disclaimer: This is our option and does constitute a recommendation or financial advice. Do your own research. *
- Price
- 7
- Condition
- 8
- Location
- 7
- Land
- 3
- Bedrooms
- 1
- Bathrooms
- 1
- Sqft (est)
- 458.00
- Lot (est)
- 458.00
The heatmap indicates the level of crime in the area. The color of the heatmap indicates the crime severity and recency.
Metrics Year-on-Year
- Average area value
- 480,963.00 £Decreased by 15.91 %
- Est sale value
- 284,418.00 £Increased by 11.09 %
- Average area rental value
- 1,853.00 £/moIncreased by 4.10 %
- Est letting value
- 916.00 £/moIncreased by 100.00 %
- Est rental Yield
- 4.62 %Increased by 23.86 %
- Crime Rate
- 0.00 %
Agent Activity
Knight & Knoxley created the listing.
Nearby Schools
| Name | Type | Ofsted | Distance |
|---|---|---|---|
| Preston Park Children'S Centre | Children's Centre Linked Site | 0.57 KM | |
| Stanford Junior School | Community School | Good | 0.60 KM |
| St Bartholomew'S Cofe Primary School | Voluntary Aided School | Good | 0.76 KM |
| Brighton & Hove Montessori School | Other Independent School | Good | 0.78 KM |
| Downs Junior School | Community School | Outstanding | 0.94 KM |
Images
Nearby Streets
| Name | Average Price | Average Sqft | Distance |
|---|---|---|---|
| New England Road | £ 0 | 0 | 0.00 KM |
| Circus Parade | £ 0 | 0 | 0.00 KM |
| Isetta Square | £ 0 | 0 | 0.00 KM |
| Belmont | £ 220,000 | 0 | 0.00 KM |
| Blackmore Court | £ 0 | 0 | 0.00 KM |
Nearby Transport
| Name | NLC | TLC | Distance |
|---|---|---|---|
| London Road (Brighton) | 5281 | LRB | 0.64 KM |
| Brighton | 5268 | BTN | 0.80 KM |
| Preston Park | 5285 | PRP | 1.80 KM |
| Moulsecoomb | 5312 | MCB | 2.85 KM |
| Hove | 5273 | HOV | 3.14 KM |
Nearby Listings
| Address | Price | Type | Score | Distance |
|---|---|---|---|---|
| Wellend Villas, Brighton, BN1 6BT | £ 84,000 | BUY | 5 / 10 | 0.00 KM |
| Springfield Road, Brighton, BN1 6BT | £ 120,000 | BUY | 7 / 10 | 0.00 KM |
| Springfield Road, Brighton | £ 220,000 | BUY | Unknown | 0.00 KM |
| Wellend Villas, Brighton | £ 225,000 | BUY | 6 / 10 | 0.00 KM |
| Wellend Villas, Brighton | £ 200,000 | BUY | 7 / 10 | 0.00 KM |
Nearby Properties
| Address | Price | Distance |
|---|---|---|
| 88 Preston Road | £ 66,000 | 0.06 KM |
| 6c Stanford Avenue | £ 255,000 | 0.08 KM |
| 113a Preston Road | £ 200,000 | 0.11 KM |
| 81a Preston Road | £ 238,000 | 0.12 KM |
| 75c Preston Road | £ 244,000 | 0.12 KM |