Hillside Mews, Sarisbury Green
Taylor Hill & Bond logo

Hillside Mews, Sarisbury Green

By Taylor Hill & Bond

£ 847,500

Reviews

3 out of 5 stars

Taylor Hill & Bond says ..

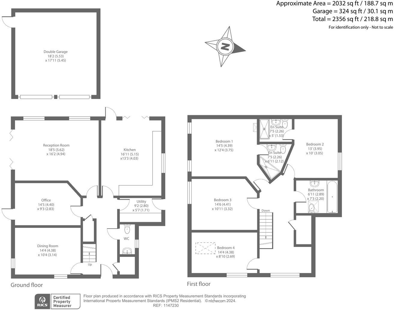
Located within the highly sought-after Hillside Mews, Sarisbury Green is an immaculately presented four-bedroom, detached family home. Forming part of the Antler Homes development circa 2007, this spacious property is within walking distance to Holly Hill County Park, Holly Hill Leisure Centre an...

Property Oracle says ..

This is a detached property in Sarisbury Green, Hampshire, listed for £847,500. It features four bedrooms and three bathrooms, offering ample living space at 2,356.00 SQFT. The property is situated in a good location, close to reputable schools and transportation links. The interior is modern and well-maintained, and the property includes a garden. While the price is above the local average, the size and condition of the property may justify the premium. The property also benefits from off-street parking and an ensuite.

Therefore, we give this property 7 / 10. *Disclaimer: This is our option and does constitute a recommendation or financial advice. Do your own research. *

Price
6
Condition
8
Location
8
Land
7
Bedrooms
4
Bathrooms
3
Sqft (est)
2,356.00

The heatmap indicates the level of crime in the area. The color of the heatmap indicates the crime severity and recency.

Metrics Year-on-Year

Average area value
661,429.00 £
Increased by 15.45 %
from 572,901.00 £
Est sale value
805,752.00 £
Decreased by 14.07 %
from 937,688.00 £
Average area rental value
3,717.00 £/mo
Increased by 151.32 %
from 1,479.00 £/mo
Est letting value
2,356.00 £/mo
Unchanged by 0.00 %
from 2,356.00 £/mo
Est rental Yield
6.74 %
Increased by 117.42 %
from 3.10 %
Crime Rate
1.00 %
Unchanged by 0.00 %
from 1.00 %

Agent Activity

  • Taylor Hill & Bond created the listing.

Nearby Schools

NameTypeOfstedDistance
Sarisbury Church Of England Junior SchoolVoluntary Controlled SchoolOutstanding0.75 KM
Sarisbury Infant SchoolCommunity SchoolOutstanding0.91 KM
Brookfield Community SchoolCommunity SchoolGood1.27 KM
Sovereign And Strawberry Meadow Children'S CentreChildren's Centre1.33 KM
Lws AcademyAcademy Special ConverterRequires improvement1.41 KM

Images

1.jpg 1147230 (7).jpg 1147230 (16).jpg 1147230 (12).jpg 2.jpg 1147230 (4).jpg 1147230 (5).jpg 1147230 (3).jpg 3.jpg 1147230 (13).jpg 1147230 (18).jpg 1147230 (14).jpg 1147230 (20).jpg 1147230 (15).jpg 1147230 (17).jpg 1147230 (6).jpg 1147230 (8).jpg 1147230 (19).jpg 1147230 (23).jpg 1147230 (10).jpg 1147230 (9) cropped.jpg

Nearby Streets

NameAverage PriceAverage SqftDistance
Cold East Close £ 350,00000.00 KM
St Pauls Road £ 000.00 KM
Swan Close £ 000.00 KM
Barnes Close £ 000.00 KM
Brookside Drive £ 775,00000.00 KM

Nearby Transport

NameNLCTLCDistance
Bursledon5927BUO1.80 KM
Swanwick5920SNW2.85 KM
Hamble5947HME4.16 KM
Netley5911NTL5.56 KM
Botley5894BOE5.89 KM

Nearby Listings

AddressPriceTypeScoreDistance
Hillside Mews, Sarisbury Green £ 847,500BUY7 / 100.00 KM
Hillside Mews, Sarisbury Green, Southampton, Hampshire, SO31 £ 899,950BUYUnknown0.00 KM
36b Holly Hill Lane, Sarisbury Green SO31 £ 650,000BUY8 / 100.04 KM
Holly Hill Lane, Sarisbury Green SO31 £ 1,150,000BUYUnknown0.04 KM
Holly Hill Lane, Sarisbury Green, Southampton £ 850,000BUY7 / 100.06 KM

Nearby Properties

AddressPriceDistance
25 Hillside Mews £ 460,0000.02 KM
6 Holly Hill Lane £ 1,400,0000.04 KM
12 Holly Hill Lane £ 370,0000.04 KM
36a Holly Hill Lane £ 850,0000.04 KM
34 Holly Hill Lane £ 610,0000.04 KM