Phelps Road, Plymouth, Devon, PL1
By Homewise
£ 174,250
Reviews
2 out of 5 stars
Homewise says ..
Guide price for a Home for Life Lifetime Lease for OVER 60s tailored to your personal circumstances and requirements. Your price may vary. OVER 60S could benefit from SAVINGS of up to 59% from the market value with a one-off payment for a Lifetime Lease on this property. £17...
Property Oracle says ..
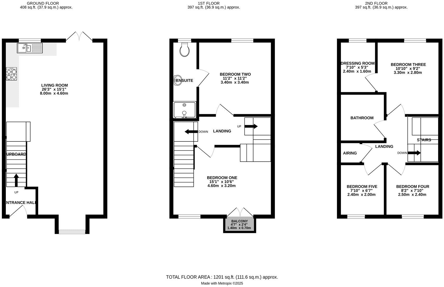
This end-of-terrace property on Phelps Road, Devonport, Plymouth, offers five bedrooms and 1,201.25 sqft of living space. The interior is modern with updated kitchens and bathrooms. While the property offers good living space, the lack of a significant garden may be a drawback for some buyers. The location provides reasonable access to schools and transportation, making it suitable for families and commuters. The price appears competitive for the area, offering good value per square foot.
Therefore, we give this property 5 / 10. *Disclaimer: This is our option and does constitute a recommendation or financial advice. Do your own research. *
- Price
- 7
- Condition
- 7
- Location
- 6
- Land
- 3
- Bedrooms
- 5
- Bathrooms
- 0
- Sqft (est)
- 1,201.25
The heatmap indicates the level of crime in the area. The color of the heatmap indicates the crime severity and recency.
Metrics Year-on-Year
- Average area value
- 177,475.00 £Decreased by 2.93 %
- Est sale value
- 235,445.00 £Decreased by 10.50 %
- Average area rental value
- 1,174.00 £/moIncreased by 51.48 %
- Est letting value
- 1,201.25 £/mo
- Est rental Yield
- 7.94 %Increased by 55.99 %
- Crime Rate
- 7.00 %Unchanged by 0.00 %
Agent Activity
Homewise created the listing.
Nearby Schools
| Name | Type | Ofsted | Distance |
|---|---|---|---|
| Green Ark Children'S Centre | Children's Centre | 0.30 KM | |
| St Joseph'S Catholic Primary School | Academy Converter | Good | 0.32 KM |
| Marlborough Primary Academy | Academy Converter | Requires improvement | 0.39 KM |
| Mount Wise Community Primary School | Academy Converter | 0.44 KM | |
| Utc Plymouth | University Technical College | 0.67 KM |
Images
Nearby Streets
| Name | Average Price | Average Sqft | Distance |
|---|---|---|---|
| Ker St Ope | £ 0 | 0 | 0.00 KM |
| Gun Lane | £ 0 | 0 | 0.00 KM |
| Edinburgh Street | £ 60,000 | 0 | 0.00 KM |
| Bennett Street | £ 0 | 0 | 0.00 KM |
| Mount Street | £ 0 | 0 | 0.00 KM |
Nearby Transport
| Name | NLC | TLC | Distance |
|---|---|---|---|
| Devonport | 3579 | DPT | 1.03 KM |
| Dockyard (Devonport) | 3588 | DOC | 1.15 KM |
| Keyham | 3571 | KEY | 2.01 KM |
| St Budeaux Ferry Road | 3590 | SBF | 3.44 KM |
| St Budeaux Victoria Road | 3592 | SBV | 3.53 KM |
Nearby Listings
| Address | Price | Type | Score | Distance |
|---|---|---|---|---|
| Phelps Road, Plymouth, Devon, PL1 | £ 174,250 | BUY | 5 / 10 | 0.00 KM |
| Phelps Road, Plymouth, PL1 | £ 155,000 | BUY | 6 / 10 | 0.01 KM |
| Phelps Road, Plymouth, Devon | £ 260,000 | BUY | 5 / 10 | 0.01 KM |
| Phelps Road, Plymouth, PL1 | £ 150,000 | BUY | Unknown | 0.01 KM |
| Fore Street, Devonport, PLYMOUTH | £ 290,000 | BUY | 6 / 10 | 0.06 KM |
Nearby Properties
| Address | Price | Distance |
|---|---|---|
| 30 Phelps Road | £ 155,000 | 0.02 KM |
| 64 Phelps Road | £ 133,500 | 0.02 KM |
| 66 Phelps Road | £ 115,000 | 0.02 KM |
| 62 Phelps Road | £ 118,000 | 0.02 KM |
| 72 Phelps Road | £ 111,000 | 0.02 KM |