SAB Estates says ..
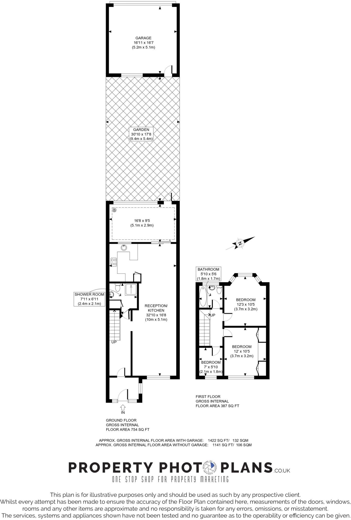
Chain-Free 3-Bedroom Mid-Terraced Home with Garden, Garage & Loft Conversion PotentialOffered chain free, this three-bedroom mid-terraced home is set on a popular residential road in Southall, UB1, and presents a fantastic opportunity for buyers looking to modernise and make it their own.
Property Oracle says ..
This is a three-bedroom terraced house on Allenby Road, Southall. The property offers a substantial 1,922.76 sqft of living space and includes two bathrooms and a garden. While the property requires some updating, it is located within a reasonable distance of local schools and transportation links. The asking price of £550,000 appears competitive compared to the average price per square foot in the area, potentially making it an attractive investment for buyers willing to undertake renovations.
Therefore, we give this property 6 / 10. *Disclaimer: This is our option and does constitute a recommendation or financial advice. Do your own research. *
- Price
- 7
- Condition
- 5
- Location
- 7
- Land
- 6
- Bedrooms
- 3
- Bathrooms
- 2
- Sqft (est)
- 1,922.76
The heatmap indicates the level of crime in the area. The color of the heatmap indicates the crime severity and recency.
Metrics Year-on-Year
- Average area value
- 523,317.00 £Increased by 7.74 %
- Est sale value
- 1,284,403.68 £Increased by 23.93 %
- Average area rental value
- 1,867.00 £/moDecreased by 17.83 %
- Est letting value
- 3,845.52 £/moUnchanged by 0.00 %
- Est rental Yield
- 4.28 %Decreased by 23.71 %
- Crime Rate
- 4.00 %Unchanged by 0.00 %
Agent Activity
SAB Estates created the listing.
Nearby Schools
| Name | Type | Ofsted | Distance |
|---|---|---|---|
| Dormers Wells High School | Academy Converter | 0.18 KM | |
| Allenby Primary School | Community School | Good | 0.32 KM |
| Dormers Wells Children'S Centre | Children's Centre Linked Site | 0.69 KM | |
| Dormers Wells Infant School | Academy Sponsor Led | 0.76 KM | |
| Lady Margaret Primary School | Community School | Good | 0.76 KM |
Images
Nearby Streets
| Name | Average Price | Average Sqft | Distance |
|---|---|---|---|
| Thurston Road | £ 600,000 | 0 | 0.00 KM |
| Faraday Road | £ 400,000 | 0 | 0.00 KM |
| King Georges Drive | £ 0 | 0 | 0.00 KM |
| Grove Terrace | £ 0 | 0 | 0.00 KM |
| Boyd Avenue | £ 650,000 | 0 | 0.00 KM |
Nearby Transport
| Name | NLC | TLC | Distance |
|---|---|---|---|
| Southall | 3187 | STL | 1.84 KM |
| Hanwell | 3191 | HAN | 3.38 KM |
| Greenford | 3136 | GFD | 3.60 KM |
| South Greenford | 3138 | SGN | 3.86 KM |
| Castle Bar Park | 3098 | CBP | 4.09 KM |
Nearby Listings
| Address | Price | Type | Score | Distance |
|---|---|---|---|---|
| Allenby Road, Southall, UB1 | £ 550,000 | BUY | 6 / 10 | 0.00 KM |
| Allenby Road, Southall | £ 559,950 | BUY | 5 / 10 | 0.03 KM |
| Allenby Road, Southall | £ 475,000 | BUY | 5 / 10 | 0.03 KM |
| Allenby Road, Southall | £ 565,000 | BUY | 5 / 10 | 0.09 KM |
| Waxlow Crescent, Southall, UB1 | £ 795,000 | BUY | 7 / 10 | 0.15 KM |
Nearby Properties
| Address | Price | Distance |
|---|---|---|
| 45 Allenby Road | £ 525,000 | 0.03 KM |
| 80 Allenby Road | £ 123,500 | 0.05 KM |
| 72 Allenby Road | £ 480,000 | 0.05 KM |
| 68 Allenby Road | £ 265,000 | 0.05 KM |
| 96 Allenby Road | £ 272,000 | 0.05 KM |