Taylors Lake, Pembroke, Pembrokeshire, SA71
By John Francis
£ 240,000
Reviews
2 out of 5 stars
John Francis says ..
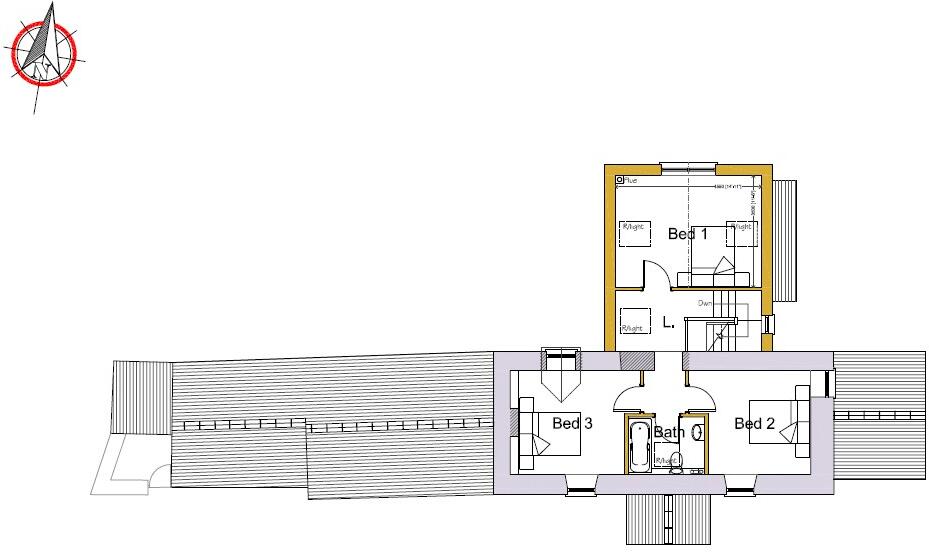
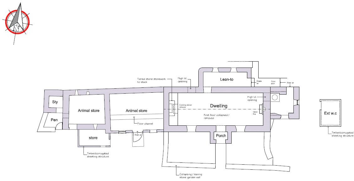
Former Farmhouse for renovation including 1.37 acres or thereabout. Planning permission (ref 22/0246/PA) is in place to renovate, alter and extend this former farmhouse to create a 4 bedroom family home with garage. The site is set in a rural location, however, accessible approx. 1 mil...
Property Oracle says ..
The property at Taylors Lake, Pembroke, presents a unique opportunity for a buyer looking to create a bespoke home in a rural setting. Currently, the property is in a derelict state, requiring complete renovation. The substantial plot size offers considerable potential for landscaping and outdoor living. While the location is somewhat remote, it provides a tranquil environment with access to natural beauty. The asking price reflects the condition of the property, making it an attractive proposition for those willing to undertake a significant renovation project. The proximity to Pembroke and Pembroke Dock offers access to essential amenities and transport links, balancing the rural setting with practical convenience.
Therefore, we give this property 5 / 10. *Disclaimer: This is our option and does constitute a recommendation or financial advice. Do your own research. *
- Price
- 7
- Condition
- 1
- Location
- 6
- Land
- 8
- Bedrooms
- 0
- Bathrooms
- 0
- Lot (est)
- 44.20
The heatmap indicates the level of crime in the area. The color of the heatmap indicates the crime severity and recency.
Metrics Year-on-Year
- Average area value
- 278,905.00 £Increased by 2.67 %
- Average area rental value
- 800.00 £/moDecreased by 34.53 %
- Est rental Yield
- 3.44 %Decreased by 36.30 %
- Crime Rate
- 0.00 %
Agent Activity
John Francis created the listing.
Nearby Schools
| Name | Type | Ofsted | Distance |
|---|---|---|---|
| Monkton Priory Cp School | Welsh Establishment | 1.21 KM | |
| Ysgol Harri Tudur/Henry Tudor School | Welsh Establishment | 2.27 KM | |
| Ysgol Gelli Aur Golden Grove | Welsh Establishment | 2.35 KM | |
| Pembroke Dock Cp School | Welsh Establishment | 3.00 KM | |
| Pennar Community School | Welsh Establishment | 3.58 KM |
Images
Nearby Streets
| Name | Average Price | Average Sqft | Distance |
|---|---|---|---|
| Mountain Lane | £ 145,000 | 0 | 0.00 KM |
| Angle Road | £ 235,000 | 0 | 0.00 KM |
| South Terrace | £ 170,000 | 0 | 0.00 KM |
| Marshal Road | £ 0 | 0 | 0.00 KM |
| Church Terrace | £ 0 | 0 | 0.00 KM |
Nearby Transport
| Name | NLC | TLC | Distance |
|---|---|---|---|
| Pembroke | 4101 | PMB | 2.82 KM |
| Pembroke Dock | 4102 | PMD | 3.42 KM |
| Lamphey | 4084 | LAM | 6.28 KM |
Nearby Listings
| Address | Price | Type | Score | Distance |
|---|---|---|---|---|
| Taylors Lake, Pembroke, Pembrokeshire, SA71 | £ 240,000 | BUY | 5 / 10 | 0.00 KM |
| Taylors Lake, Pembroke, Pembrokeshire, SA71 | £ 325,000 | BUY | Unknown | 0.01 KM |
| Maidenwells, Pembroke, Pembrokeshire, SA71 | £ 425,000 | BUY | 6 / 10 | 0.68 KM |
| Gilead, Maidenwells, Pembroke, Pembrokeshire, SA71 | £ 225,000 | BUY | 6 / 10 | 1.14 KM |
| Long Mains, Monkton, Pembroke, SA71 | £ 150,000 | BUY | 6 / 10 | 1.15 KM |
Nearby Properties
| Address | Price | Distance |
|---|---|---|
| Spring View | £ 240,000 | 0.92 KM |
| 106 Angle Road | £ 77,500 | 1.06 KM |
| 13 South Terrace | £ 120,000 | 1.14 KM |
| 5 South Terrace | £ 164,000 | 1.14 KM |
| 30 South Terrace | £ 106,000 | 1.14 KM |