St. Georges Parkway, Stafford, ST16
By Dourish & Day
£ 260,000
Reviews
3 out of 5 stars
Dourish & Day says ..
Call us 9AM - 9PM -7 days a week, 365 days a year!PARK up and make you WAY to St Georges Parkway because we have a fantastic three storey home for you, located on a highly desirable development.
Property Oracle says ..
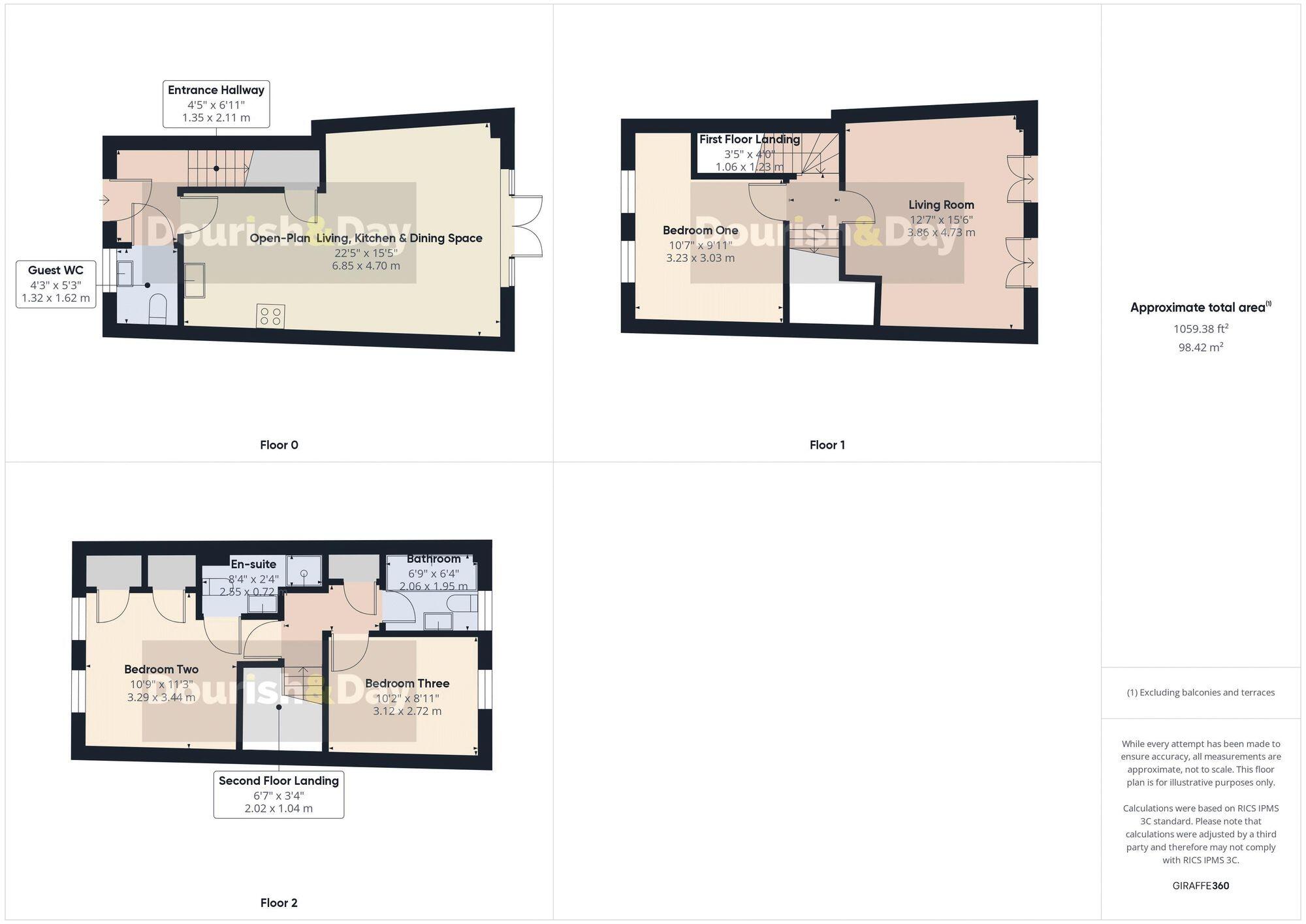
This property is a three-bedroom, two-bathroom terraced house located in Coton, Stafford. The property is modern and well-maintained, as evidenced by the provided images. It benefits from a relatively small, but well-presented rear garden. The location is convenient, with nearby schools and transportation links. The list price of £260,000 is slightly above the average price for the area but is justified given the property’s size (1,057.55 sqft) and condition.
Therefore, we give this property 7 / 10. *Disclaimer: This is our option and does constitute a recommendation or financial advice. Do your own research. *
- Price
- 7
- Condition
- 9
- Location
- 8
- Land
- 6
- Bedrooms
- 3
- Bathrooms
- 2
- Sqft (est)
- 1,057.55
- Lot (est)
- 1,059.38
The heatmap indicates the level of crime in the area. The color of the heatmap indicates the crime severity and recency.
Metrics Year-on-Year
- Average area value
- 229,000.00 £Increased by 23.18 %
- Est sale value
- 246,409.15 £Increased by 9.39 %
- Average area rental value
- 866.00 £/moIncreased by 24.25 %
- Est letting value
- 0.00 £/mo
- Est rental Yield
- 4.54 %Increased by 0.89 %
- Crime Rate
- 3.00 %Unchanged by 0.00 %
Agent Activity
Dourish & Day created the listing.
Nearby Schools
| Name | Type | Ofsted | Distance |
|---|---|---|---|
| John Wheeldon Primary Academy | Academy Sponsor Led | Good | 0.49 KM |
| St Patrick'S Catholic Primary School | Academy Converter | Requires improvement | 0.85 KM |
| Bailey Street Alternative Provision Academy | Academy Alternative Provision Sponsor Led | 0.92 KM | |
| St Austin'S Catholic Primary School | Academy Converter | Good | 1.00 KM |
| St Paul'S Cofe (C) Primary School | Voluntary Controlled School | Outstanding | 1.16 KM |
Images
Nearby Streets
| Name | Average Price | Average Sqft | Distance |
|---|---|---|---|
| St Marys Passage | £ 0 | 0 | 0.00 KM |
| Market Square | £ 0 | 0 | 0.00 KM |
| Victoria Street | £ 0 | 0 | 0.00 KM |
| Chell Road | £ 0 | 0 | 0.00 KM |
| Riverway | £ 0 | 0 | 0.00 KM |
Nearby Transport
| Name | NLC | TLC | Distance |
|---|---|---|---|
| Stafford | 1268 | STA | 1.27 KM |
| Penkridge | 1195 | PKG | 9.69 KM |
Nearby Listings
| Address | Price | Type | Score | Distance |
|---|---|---|---|---|
| St. Georges Parkway, Stafford, ST16 | £ 260,000 | BUY | 7 / 10 | 0.00 KM |
| St Georges Parkway, Stafford | £ 160,000 | BUY | 6 / 10 | 0.05 KM |
| St. Georges Parkway, Stafford, ST16 | £ 275,000 | BUY | 7 / 10 | 0.06 KM |
| St. Georges Parkway, Stafford | £ 260,000 | BUY | Unknown | 0.06 KM |
| Newbolt Walk St. Georges Parkway, Stafford, Staffordshire, ST16 | £ 400,000 | BUY | 6 / 10 | 0.08 KM |
Nearby Properties
| Address | Price | Distance |
|---|---|---|
| 22 | £ 212,500 | 0.06 KM |
| 68 St Georges Parkway | £ 196,995 | 0.06 KM |
| 40 St Georges Parkway | £ 124,995 | 0.06 KM |
| 38 St Georges Parkway | £ 155,000 | 0.06 KM |
| 10 St Georges Parkway | £ 255,000 | 0.06 KM |