BE
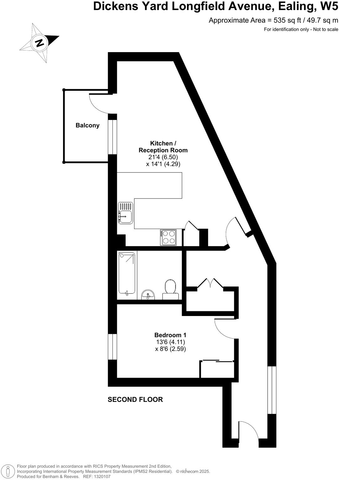
Longfield Avenue, Ealing, W5
By Benham & Reeves - Ealing
£ 485,000
Reviews
3 out of 5 stars
Benham & Reeves - Ealing says ..
A stunning 535 square foot (approx.) one bedroom apartment in the highly sought after Dickens Yard offering a south facing balcony and no onward chain. Residents will be moments away from Ealing Broadway station and have exclusive access to the high-end facilities including gym, swimming pool, sp...
Property Oracle says ..
Therefore, we give this property 6 / 10. *Disclaimer: This is our option and does constitute a recommendation or financial advice. Do your own research. *
- Price
- 8
- Condition
- 9
- Location
- 9
- Land
- 1
- Bedrooms
- 1
- Bathrooms
- 1
- Sqft (est)
- 414.75
The heatmap indicates the level of crime in the area. The color of the heatmap indicates the crime severity and recency.
Metrics Year-on-Year
- Average area value
- 677,500.00 £Decreased by 34.26 %
- Est sale value
- 505,165.50 £Increased by 51.87 %
- Average area rental value
- 2,388.00 £/moIncreased by 11.33 %
- Est letting value
- 1,659.00 £/moIncreased by 300.00 %
- Est rental Yield
- 4.23 %Increased by 69.20 %
- Crime Rate
- 9.00 %Unchanged by 0.00 %
from 1,030,646.00 £
from 332,629.50 £
from 2,145.00 £/mo
from 414.75 £/mo
from 2.50 %
from 9.00 %
Agent Activity
Benham & Reeves - Ealing created the listing.
Nearby Schools
| Name | Type | Ofsted | Distance |
|---|---|---|---|
| Ealing Independent College | Other Independent School | 0.20 KM | |
| Clifton Lodge School | Other Independent School | 0.25 KM | |
| Christ The Saviour Church Of England Primary School | Voluntary Aided School | Outstanding | 0.34 KM |
| Harvington Prep School | Other Independent School | 0.35 KM | |
| Durston House School | Other Independent School | 0.38 KM |
Images
Nearby Streets
| Name | Average Price | Average Sqft | Distance |
|---|---|---|---|
| Vernon Court Private Parking | £ 183,500 | 0 | 0.00 KM |
| Victoria Lane | £ 0 | 0 | 0.00 KM |
| Longfield Walk | £ 575,000 | 0 | 0.00 KM |
| Springbridge Road | £ 0 | 0 | 0.00 KM |
| High Street | £ 0 | 0 | 0.00 KM |
Nearby Transport
| Name | NLC | TLC | Distance |
|---|---|---|---|
| Ealing Broadway | 3190 | EAL | 0.75 KM |
| West Ealing | 3188 | WEA | 1.29 KM |
| Drayton Green | 3099 | DRG | 2.43 KM |
| Castle Bar Park | 3098 | CBP | 2.75 KM |
| Brentford | 5552 | BFD | 2.93 KM |
Nearby Listings
| Address | Price | Type | Score | Distance |
|---|---|---|---|---|
| Longfield Avenue, Ealing, W5 | £ 730,000 | BUY | 6 / 10 | 0.00 KM |
| Longfield Avenue, Ealing, W5 | £ 485,000 | BUY | 6 / 10 | 0.00 KM |
| Longfield Avenue, Ealing, W5 | £ 675,000 | BUY | 6 / 10 | 0.00 KM |
| Longfield Avenue, Ealing, W5 | £ 820,000 | BUY | Unknown | 0.00 KM |
| Longfield Avenue, Ealing, W5 | £ 1,150,000 | BUY | 6 / 10 | 0.00 KM |
Nearby Properties
| Address | Price | Distance |
|---|---|---|
| 79a New Broadway | £ 10,000 | 0.17 KM |
| 43 Gordon Road | £ 585,000 | 0.19 KM |
| 45 Gordon Road | £ 945,000 | 0.19 KM |
| 41 Gordon Road | £ 870,000 | 0.19 KM |
| 25b Gordon Road | £ 295,000 | 0.19 KM |