Mark Ewin says ..
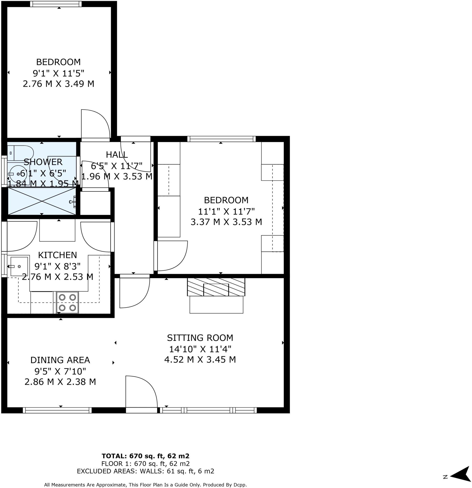
Located in the popular and well-served village of Barrow is this two-bedroom, detached bungalow. The property offers an entrance hall, sitting/dining room, fitted kitchen, two bedrooms and a shower room. Outside, the garden is mainly laid to lawn, with a garden shed, greenhouse and various mature...
Property Oracle says ..
Therefore, we give this property 6 / 10. *Disclaimer: This is our option and does constitute a recommendation or financial advice. Do your own research. *
- Price
- 6
- Condition
- 5
- Location
- 8
- Land
- 7
- Bedrooms
- 2
- Bathrooms
- 1
The heatmap indicates the level of crime in the area. The color of the heatmap indicates the crime severity and recency.
Metrics Year-on-Year
- Average area value
- 223,188.00 £Decreased by 13.36 %
- Average area rental value
- 1,283.00 £/moIncreased by 2.15 %
- Est rental Yield
- 6.90 %Increased by 17.95 %
- Crime Rate
- 8.00 %Unchanged by 0.00 %
from 257,594.00 £
from 1,256.00 £/mo
from 5.85 %
from 8.00 %
Agent Activity
Mark Ewin created the listing.
Nearby Schools
| Name | Type | Ofsted | Distance |
|---|---|---|---|
| Barrow Church Of England Voluntary Controlled Primary School | Voluntary Controlled School | Outstanding | 1.11 KM |
| Risby Church Of England Voluntary Controlled Primary School | Voluntary Controlled School | Outstanding | 5.54 KM |
| Brookes Uk | Other Independent School | 5.60 KM | |
| Wickhambrook Primary Academy | Academy Converter | 9.63 KM | |
| Ickworth Park Primary School | Community School | Good | 9.75 KM |
Images
Nearby Streets
| Name | Average Price | Average Sqft | Distance |
|---|---|---|---|
| Orchard Way | £ 300,000 | 0 | 0.00 KM |
| The Green | £ 635,000 | 0 | 0.00 KM |
| Lylles Field | £ 0 | 0 | 0.00 KM |
Nearby Listings
| Address | Price | Type | Score | Distance |
|---|---|---|---|---|
| Orchard Way, Barrow | £ 280,000 | BUY | 6 / 10 | 0.00 KM |
| Orchard Way, Barrow | £ 350,000 | BUY | 6 / 10 | 0.01 KM |
| Barrow, Bury St Edmunds, Suffolk | £ 685,000 | BUY | Unknown | 0.29 KM |
| Barrow, Bury St Edmunds, Suffolk | £ 475,000 | BUY | 7 / 10 | 0.38 KM |
| Ley Road, Barrow | £ 300,000 | BUY | 7 / 10 | 0.50 KM |
Nearby Properties
| Address | Price | Distance |
|---|---|---|
| 5 Orchard Way | £ 201,000 | 0.00 KM |
| 3 Orchard Way | £ 291,500 | 0.00 KM |
| 9 Orchard Way | £ 205,000 | 0.01 KM |
| Finch-lea Cottage | £ 385,000 | 0.11 KM |
| 8 Mill Lane | £ 347,500 | 0.14 KM |