TA
Kenilworth Road, Edgware
By Taylor Hawkins Estate Agents
£ 610,000
Reviews
3 out of 5 stars
Taylor Hawkins Estate Agents says ..
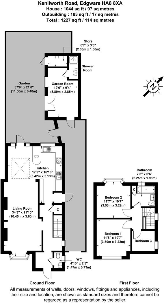
This well-presented three-bedroom house is located just off Glengall Road, within close proximity to local shops and amenities. The property features a modern open-plan kitchen and a rear extension with a Sukkah roof. It also includes a convenient downstairs WC for guests. Plann...
Property Oracle says ..
Therefore, we give this property 6 / 10. *Disclaimer: This is our option and does constitute a recommendation or financial advice. Do your own research. *
- Price
- 7
- Condition
- 7
- Location
- 7
- Land
- 6
- Bedrooms
- 3
- Bathrooms
- 1
- Sqft (est)
- 1,978.26
- Lot (est)
- 1,227.00
The heatmap indicates the level of crime in the area. The color of the heatmap indicates the crime severity and recency.
Metrics Year-on-Year
- Average area value
- 758,663.00 £Increased by 3.95 %
- Est sale value
- 941,651.76 £Decreased by 26.99 %
- Average area rental value
- 2,364.00 £/moDecreased by 11.43 %
- Est letting value
- 1,978.26 £/moDecreased by 50.00 %
- Est rental Yield
- 3.74 %Decreased by 14.81 %
- Crime Rate
- 6.00 %Unchanged by 0.00 %
from 729,814.00 £
from 1,289,825.52 £
from 2,669.00 £/mo
from 3,956.52 £/mo
from 4.39 %
from 6.00 %
Agent Activity
Taylor Hawkins Estate Agents created the listing.
Nearby Schools
| Name | Type | Ofsted | Distance |
|---|---|---|---|
| Rosh Pinah Primary School | Voluntary Aided School | Good | 0.40 KM |
| Rosh Pinah Additional Resource Provision | Other Independent Special School | 0.44 KM | |
| Broadfields Primary School | Academy Converter | Good | 0.82 KM |
| Holland House School | Other Independent School | 0.88 KM | |
| Northway School | Community Special School | Outstanding | 0.97 KM |
Images
Nearby Streets
| Name | Average Price | Average Sqft | Distance |
|---|---|---|---|
| Kenilworth Road | £ 595,000 | 0 | 0.00 KM |
| Hurstmere Court | £ 900,000 | 0 | 0.00 KM |
| Clay Lane | £ 0 | 0 | 0.00 KM |
| Mowbray Parade | £ 199,950 | 0 | 0.00 KM |
| Crossgate | £ 0 | 0 | 0.00 KM |
Nearby Transport
| Name | NLC | TLC | Distance |
|---|---|---|---|
| Mill Hill Broadway | 1527 | MIL | 2.44 KM |
| Elstree And Borehamwood | 1542 | ELS | 3.34 KM |
| Hendon | 1522 | HEN | 6.00 KM |
| Kenton | 1399 | KNT | 7.38 KM |
| South Kenton | 1453 | SOK | 7.71 KM |
Nearby Listings
| Address | Price | Type | Score | Distance |
|---|---|---|---|---|
| Kenilworth Road, Edgware | £ 595,000 | BUY | 7 / 10 | 0.00 KM |
| Kenilworth Road, Edgware HA8 | £ 575,000 | BUY | 6 / 10 | 0.00 KM |
| Kenilworth Road, Edgware | £ 699,950 | BUY | 6 / 10 | 0.12 KM |
| Kenilworth Road, Edgware | £ 650,000 | BUY | 6 / 10 | 0.12 KM |
| 2 Bedroom Bungalow in Warwick Avenue | £ 600,000 | BUY | 7 / 10 | 0.14 KM |
Nearby Properties
| Address | Price | Distance |
|---|---|---|
| 77 Kenilworth Road | £ 358,000 | 0.03 KM |
| 87 Kenilworth Road | £ 430,000 | 0.03 KM |
| 63 Kenilworth Road | £ 95,000 | 0.03 KM |
| 71 Kenilworth Road | £ 250,000 | 0.03 KM |
| 61 Kenilworth Road | £ 280,000 | 0.03 KM |