DD
Lister Street, Grimsby, DN31
By DDM Residential
£ 75,000
Reviews
3 out of 5 stars
DDM Residential says ..
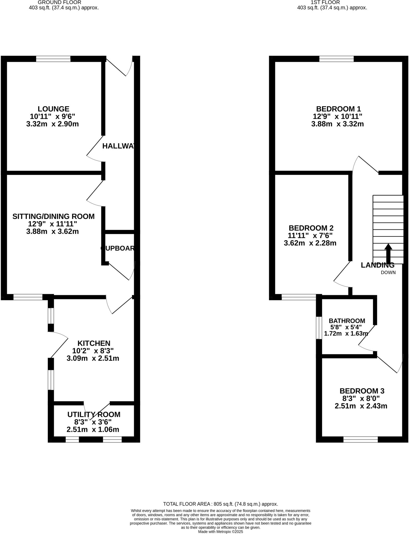
Offered to the market with no forward chain, this three-bedroom mid-terraced property on Lister Street presents an ideal opportunity for first-time buyers or buy-to-let investors.
Property Oracle says ..
This is a three-bedroom terraced property on Lister Street, Grimsby. It is located near schools and transportation links. The property is in need of some renovation. The list price is £75,000.
Therefore, we give this property 6 / 10. *Disclaimer: This is our option and does constitute a recommendation or financial advice. Do your own research. *
- Price
- 7
- Condition
- 5
- Location
- 7
- Land
- 6
- Bedrooms
- 3
- Bathrooms
- 1
- Sqft (est)
- 805.00
The heatmap indicates the level of crime in the area. The color of the heatmap indicates the crime severity and recency.
Metrics Year-on-Year
- Average area value
- 63,333.00 £Decreased by 14.93 %
- Est sale value
- 68,425.00 £Decreased by 11.46 %
- Average area rental value
- 660.00 £/moIncreased by 12.24 %
- Est letting value
- 0.00 £/mo
- Est rental Yield
- 12.51 %Increased by 31.96 %
- Crime Rate
- 26.00 %Unchanged by 0.00 %
from 74,448.00 £
from 77,280.00 £
from 588.00 £/mo
from 0.00 £/mo
from 9.48 %
from 26.00 %
Agent Activity
DDM Residential created the listing.
Nearby Schools
| Name | Type | Ofsted | Distance |
|---|---|---|---|
| West Marsh Children'S Centre | Children's Centre | 0.43 KM | |
| Macaulay Primary Academy | Academy Sponsor Led | Requires improvement | 0.43 KM |
| Littlecoates Primary Academy | Academy Converter | Good | 0.86 KM |
| St James' School | Other Independent School | 1.03 KM | |
| Ormiston South Parade Academy | Academy Converter | Good | 1.04 KM |
Images
Nearby Streets
| Name | Average Price | Average Sqft | Distance |
|---|---|---|---|
| Chestnut Avenue | £ 0 | 0 | 0.00 KM |
| Bramble Close | £ 0 | 0 | 0.00 KM |
| Cromwell Road | £ 80,000 | 0 | 0.00 KM |
| Cromwell Avenue | £ 137,500 | 0 | 0.00 KM |
| West Parade | £ 0 | 0 | 0.00 KM |
Nearby Transport
| Name | NLC | TLC | Distance |
|---|---|---|---|
| Grimsby Town | 6280 | GMB | 1.38 KM |
| Grimsby Docks | 6276 | GMD | 2.64 KM |
| Great Coates | 6275 | GCT | 3.61 KM |
| New Clee | 6289 | NCE | 4.24 KM |
| Healing | 6283 | HLI | 7.04 KM |
Nearby Listings
| Address | Price | Type | Score | Distance |
|---|---|---|---|---|
| Lister Street, Grimsby, DN31 | £ 75,000 | BUY | 6 / 10 | 0.00 KM |
| Lister Street, Grimsby, DN31 | £ 70,000 | BUY | 6 / 10 | 0.00 KM |
| James Street, Grimsby, DN31 | £ 65,000 | BUY | Unknown | 0.08 KM |
| James Street, Grimsby | £ 92,500 | BUY | 6 / 10 | 0.08 KM |
| James Street, Grimsby | £ 90,000 | BUY | 6 / 10 | 0.08 KM |
Nearby Properties
| Address | Price | Distance |
|---|---|---|
| 5 Lister Street | £ 48,500 | 0.00 KM |
| 25 Lister Street | £ 56,950 | 0.00 KM |
| 41 Lister Street | £ 77,000 | 0.00 KM |
| 49 Lister Street | £ 40,000 | 0.00 KM |
| 45 Lister Street | £ 65,000 | 0.00 KM |