Main Street, Great Bowden
Adams & Jones Estate Agents logo

Main Street, Great Bowden

By Adams & Jones Estate Agents

£ 950,000

Reviews

3 out of 5 stars

Adams & Jones Estate Agents says ..

Location, location, location! This stunning period stone home offers a rare and exciting opportunity within the highly desirable village of Great Bowden, South Leicestershire. The village offers an abundance of outstanding local amenities, two pubs, post office, shop, deli, primary school and is ...

Property Oracle says ..

This property is a charming cottage located in Great Bowden, Leicestershire. The location benefits from being close to excellent schools, including the Outstanding-rated Great Bowden Academy, making it attractive to families. The proximity to Market Harborough train station provides convenient access to nearby towns and cities. The cottage itself is well-maintained and has character features, including a traditional fireplace and a conservatory. The property includes a garden with mature trees and landscaping, offering privacy and outdoor space. While the list price is higher than the average for the area, the larger size, desirable features, and excellent location could justify the premium.

Therefore, we give this property 7 / 10. *Disclaimer: This is our option and does constitute a recommendation or financial advice. Do your own research. *

Price
7
Condition
8
Location
9
Land
7
Bedrooms
3
Bathrooms
1
Sqft (est)
2,389.59
Lot (est)
1,917.05

The heatmap indicates the level of crime in the area. The color of the heatmap indicates the crime severity and recency.

Metrics Year-on-Year

Average area value
347,500.00 £
Increased by 5.46 %
from 329,521.00 £
Est sale value
776,616.75 £
Decreased by 3.27 %
from 802,902.24 £
Average area rental value
817.00 £/mo
Decreased by 4.56 %
from 856.00 £/mo
Est letting value
0.00 £/mo
from 0.00 £/mo
Est rental Yield
2.82 %
Decreased by 9.62 %
from 3.12 %
Crime Rate
7.00 %
Unchanged by 0.00 %
from 7.00 %

Agent Activity

  • Adams & Jones Estate Agents created the listing.

Nearby Schools

NameTypeOfstedDistance
Great Bowden Academy, A Church Of England Primary SchoolAcademy ConverterOutstanding0.11 KM
Ridgeway Primary AcademyAcademy ConverterGood1.13 KM
Meadowdale Primary SchoolAcademy ConverterGood1.47 KM
The Robert Smyth AcademyAcademy ConverterGood1.97 KM
Little Bowden SchoolCommunity SchoolGood2.22 KM

Images

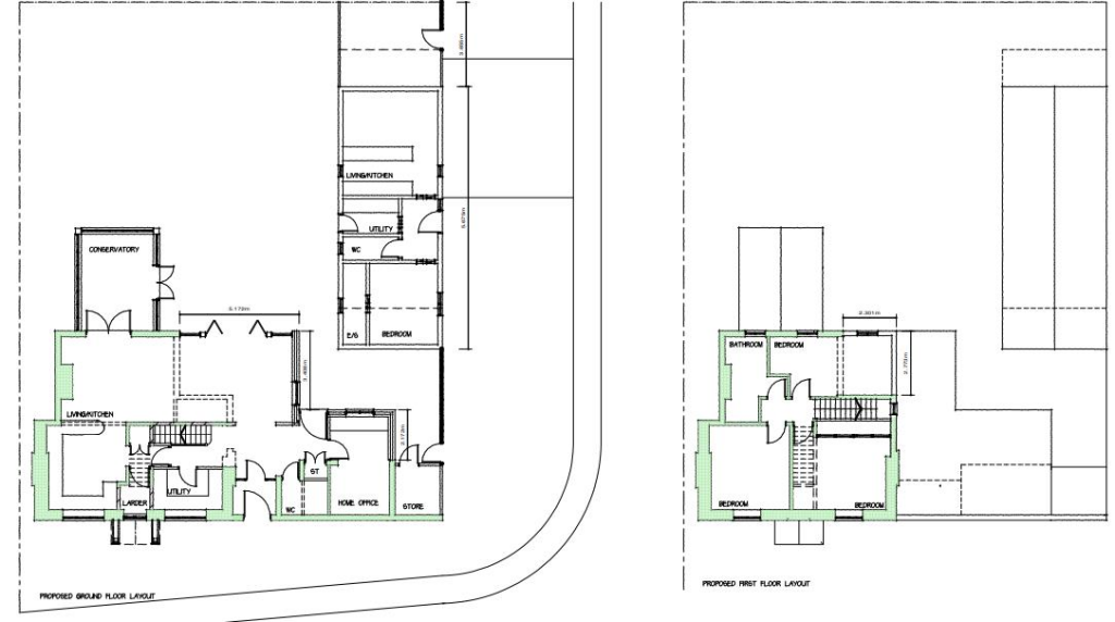
Bedroom Two Additional Photos 3.jpg Sitting Room 2.jpg Garden Room Entrance Hall View Into Sitting Room Sitting Room Dining Room Breakfast Kitchen Breakfast Kitchen Additional Photos Breakfast Kitchen Garden Room Additional Photos Garden Room Additional Photos Bedroom One Bedroom One Additional Photos Bedroom One Additional Photos Bedroom Two Bedroom Two Additional Photos Family Bathroom Additional Photo Family Bathroom Family Bathroom Frontage & Outlook Frontage & Outlook Frontage & Outlook Rear Porch Rear Garden & Outbuildings Rear Garden & Outbuildings Rear Garden & Outbuildings Rear Garden Additional Photos Rear Garden Additional Photos Rear Aspect Coach House (Coach House Office 1 Photo) (Coach House Additional Photo's) (Coach House Office 2 Photo) (Coach House Additional Photo's) Planning & Potential Drawings Planning & Potential Drawings Planning & Potential Drawings (Photo Two) Planning & Potential Drawings (Annexe) Driveway

Nearby Streets

NameAverage PriceAverage SqftDistance
Horse Shoe Lane £ 000.00 KM
Northfield Avenue £ 605,00000.00 KM
Green Lane £ 1,300,00000.00 KM
Bankfield Drive £ 000.00 KM
Walnut Drive £ 65,00000.00 KM

Nearby Transport

NameNLCTLCDistance
Market Harborough1909MHR1.44 KM

Nearby Listings

AddressPriceTypeScoreDistance
Main Street, Great Bowden £ 950,000BUY7 / 100.00 KM
Chater Close, Great Bowden £ 350,000BUY6 / 100.08 KM
Main Street, Great Bowden £ 695,000BUY7 / 100.08 KM
The Green, Great Bowden, Market Harborough, LE16 7EU £ 259,950BUYUnknown0.33 KM
Station Road, Great Bowden, Great Bowden, Leicestershire, LE16 7HL £ 350,000BUYUnknown0.33 KM

Nearby Properties

AddressPriceDistance
6 Manor Road £ 185,0000.08 KM
5 Manor Road £ 1,000,0000.08 KM
16 Manor Road £ 331,0000.08 KM
2a Manor Road £ 255,0000.08 KM
13 Manor Road £ 40,0000.08 KM