Naylor Powell says ..
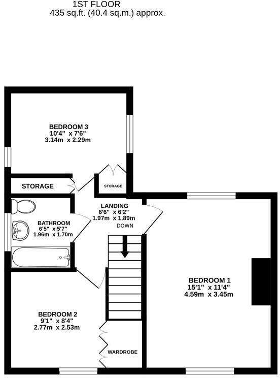
Situated in the market town of Dursley, this three bedroom semi-detached house offers lots of potential to add you own stamp on it. The property has versatile accommodation throughout and comprises; entrance hall, living room, dining room, kitchen, two double bedrooms, one single bedroom and a ba...
Property Oracle says ..
This three-bedroom semi-detached house in Rosebery Park, Dursley, presents a mixed bag of attributes. Its location in Dursley offers a convenient setting, with nearby schools and a train station providing good access to amenities and transport links. However, the property is in need of significant modernisation. The provided photographs reveal dated interiors, requiring considerable renovation. The garden is present, but is small and currently unkempt. While nearby property prices seem to support the asking price, the need for extensive renovations suggests that the property may not represent optimal value for money. Potential buyers should budget carefully, factoring in renovation costs. The lack of a detailed square footage for both this house and comparative properties makes a comprehensive market valuation challenging. A thorough survey is essential before committing to a purchase.
Therefore, we give this property 5 / 10. *Disclaimer: This is our option and does constitute a recommendation or financial advice. Do your own research. *
- Price
- 6
- Condition
- 4
- Location
- 7
- Land
- 5
- Bedrooms
- 3
- Bathrooms
- 1
- Sqft (est)
- 941.00
The heatmap indicates the level of crime in the area. The color of the heatmap indicates the crime severity and recency.
Metrics Year-on-Year
- Average area value
- 251,538.00 £Increased by 21.55 %
- Est sale value
- 194,787.00 £Decreased by 4.17 %
- Average area rental value
- 754.00 £/moDecreased by 18.22 %
- Est letting value
- 0.00 £/mo
- Est rental Yield
- 3.60 %Decreased by 32.71 %
- Crime Rate
- 8.00 %Unchanged by 0.00 %
Agent Activity
Naylor Powell created the listing.
Nearby Schools
| Name | Type | Ofsted | Distance |
|---|---|---|---|
| Treetops Children'S Centre | Children's Centre | 0.34 KM | |
| Dursley Church Of England Primary Academy | Academy Sponsor Led | Good | 0.34 KM |
| Peak Academy | Academy Special Sponsor Led | Serious Weaknesses | 1.22 KM |
| Rednock School | Foundation School | Good | 1.62 KM |
| Cam Everlands Primary School | Community School | Good | 2.46 KM |
Images
Nearby Streets
| Name | Average Price | Average Sqft | Distance |
|---|---|---|---|
| Third Avenue | £ 0 | 0 | 0.00 KM |
| Heath Court | £ 280,000 | 0 | 0.00 KM |
| Tennyson Road | £ 321,667 | 0 | 0.00 KM |
| Somerset Avenue | £ 200,000 | 0 | 0.00 KM |
| Kipling Road | £ 290,000 | 0 | 0.00 KM |
Nearby Transport
| Name | NLC | TLC | Distance |
|---|---|---|---|
| Cam And Dursley | 3238 | CDU | 4.78 KM |
Nearby Listings
| Address | Price | Type | Score | Distance |
|---|---|---|---|---|
| Rosebery Park, Dursley | £ 229,950 | BUY | 5 / 10 | 0.00 KM |
| Rosebery Park, Dursley | £ 225,000 | BUY | Unknown | 0.14 KM |
| Tennyson Road , Dursley, GL11 4PZ | £ 330,000 | BUY | 6 / 10 | 0.15 KM |
| Rosebery Park, Dursley, GL11 4NS | £ 237,500 | BUY | Unknown | 0.18 KM |
| Rosebery Road, Dursley, GL11 4PT | £ 269,500 | BUY | 6 / 10 | 0.19 KM |
Nearby Properties
| Address | Price | Distance |
|---|---|---|
| 20 Rosebery Park | £ 183,000 | 0.09 KM |
| 13 Rosebery Park | £ 175,000 | 0.09 KM |
| 35 Rosebery Park | £ 227,000 | 0.09 KM |
| 36 Rosebery Park | £ 165,000 | 0.09 KM |
| 21 Rosebery Park | £ 230,000 | 0.09 KM |