Tilstock Crescent, Prenton
BR

Tilstock Crescent, Prenton

By Brennan Ayre O'Neill

£ 350,000

Reviews

3 out of 5 stars

Brennan Ayre O'Neill says ..

A combination of ‘the best with the very best?’- We think so, given Tilstock Crescent has always been recognised as one of, if not the very favoured road within the established Prenton neighbourhood - for its tree lined pavements and minimal reasons for traffic to pass through - and ‘best’ too f...

Property Oracle says ..

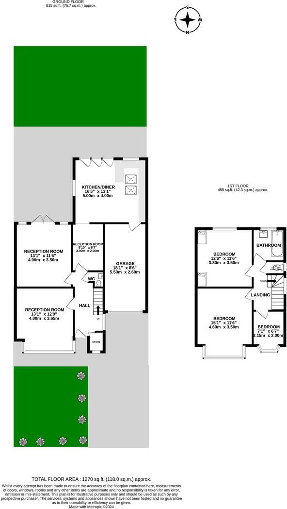
This three-bedroom semi-detached house located on Tilstock Crescent in Prenton, Wirral, is presented for sale at £350,000. The property benefits from a highly desirable location within a tree-lined street known for its residential appeal. The property features a modern, recently updated kitchen, as indicated by the photographs which display a contemporary design and high-quality finishes. The kitchen appears to be open-plan, leading into a dining area with bi-fold doors opening onto a patio and garden. Images of the property reveal a rear garden that seems well-maintained and adequate in size for a property of this type. The house also benefits from multiple reception rooms, three bedrooms, and at least one bathroom. The property’s presentation in the photographs is generally clean and well-presented. However, certain rooms retain some features of existing decor, suggesting that some updates may enhance the property’s overall appearance and appeal. The lack of precise square footage data for comparative properties makes it challenging to determine accurately the value for money. While the asking price seems reasonable for the area given its location on Tilstock Crescent, further investigation regarding the average price per square foot in this location would provide a more informed assessment of its price competitiveness. Overall, this house is a good prospect for buyers looking for a property in a sought-after location with a degree of contemporary modernisation, but potential buyers should factor in possible costs related to further renovations. Transportation links appear to be within reasonable distance of the property, albeit not extremely convenient. There are a number of highly-rated schools within a short distance making the location family-friendly. This makes the property suitable for families and potential buyers should take note of this.

Therefore, we give this property 7 / 10. *Disclaimer: This is our option and does constitute a recommendation or financial advice. Do your own research. *

Price
7
Condition
7
Location
8
Land
6
Bedrooms
3
Bathrooms
1
Sqft (est)
1,270.00

The heatmap indicates the level of crime in the area. The color of the heatmap indicates the crime severity and recency.

Metrics Year-on-Year

Average area value
287,500.00 £
Increased by 19.71 %
from 240,163.00 £
Est sale value
270,510.00 £
Increased by 16.39 %
from 232,410.00 £
Average area rental value
850.00 £/mo
Increased by 25.00 %
from 680.00 £/mo
Est letting value
0.00 £/mo
from 0.00 £/mo
Est rental Yield
3.55 %
Increased by 4.41 %
from 3.40 %
Crime Rate
4.00 %
Unchanged by 0.00 %
from 4.00 %

Agent Activity

  • Brennan Ayre O'Neill created the listing.

Nearby Schools

NameTypeOfstedDistance
Prenton Children'S CentreChildren's Centre Linked Site0.22 KM
Prenton Primary SchoolCommunity SchoolGood0.49 KM
Oxton St Saviour'S Cofe Aided Primary SchoolVoluntary Aided SchoolGood0.86 KM
Townfield Primary SchoolAcademy ConverterGood1.27 KM
Prenton Preparatory SchoolOther Independent School1.49 KM

Images

DSC_0016.JPG DSC_0005.JPG DSC_0007.JPG DSC_0010.JPG DSC_0012.JPG DSC_0013.JPG DSC_0014.JPG DSC_0015.JPG DSC_0004.JPG DSC_0040.JPG DSC_0017.JPG DSC_0003.JPG DSC_0006.JPG DSC_0019.JPG DSC_0033.JPG DSC_0034.JPG DSC_0035.JPG DSC_0036.JPG DSC_0037.JPG DSC_0038.JPG DSC_0039.JPG DSC_0025.JPG DSC_0021.JPG DSC_0023.JPG DSC_0024.JPG DSC_0022.JPG DSC_0027.JPG DSC_0042.JPG 35TilstockCrescent-High (1).jpg

Nearby Streets

NameAverage PriceAverage SqftDistance
Redwood Close £ 000.00 KM
OvertonClose £ 250,00000.00 KM
Hartford Close £ 000.00 KM
Bryanston Road £ 630,00000.00 KM
Mill Hill £ 000.00 KM

Nearby Transport

NameNLCTLCDistance
Birkenhead Park2220BKP3.43 KM
Upton (Merseyside)2141UPT3.73 KM
Birkenhead North2145BKN3.78 KM
Birkenhead Central2217BKC4.20 KM
Conway Park3624CNP4.33 KM

Nearby Listings

AddressPriceTypeScoreDistance
Tilstock Crescent, Prenton £ 350,000BUYUnknown0.07 KM
Northwood Road, Prenton, Wirral £ 275,000BUYUnknown0.11 KM
Northwood Road, Prenton £ 275,000BUY6 / 100.13 KM
Waterpark Close, Prenton £ 230,000BUY6 / 100.14 KM
Tilstock Crescent, Prenton, Merseyside, CH43 £ 260,000BUY6 / 100.14 KM

Nearby Properties

AddressPriceDistance
18 Tilstock Crescent £ 173,5000.07 KM
22 Tilstock Crescent £ 185,0000.07 KM
11 Tilstock Crescent £ 195,0000.07 KM
37 Tilstock Crescent £ 294,0000.07 KM
33 Tilstock Crescent £ 228,0000.07 KM