D
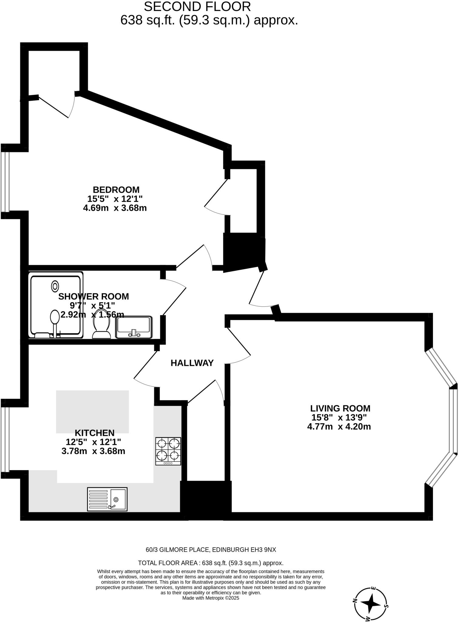
60/3 Gilmore Place, Bruntsfield, Edinburgh, EH3
By D J Alexander
£ 250,000
Reviews
3 out of 5 stars
D J Alexander says ..
Beautifully presented one-bedroom, second floor flat situated in the sought-after Bruntsfield area of Edinburgh, close to all local amenities.
Property Oracle says ..
Therefore, we give this property 6 / 10. *Disclaimer: This is our option and does constitute a recommendation or financial advice. Do your own research. *
- Price
- 7
- Condition
- 8
- Location
- 8
- Land
- 3
- Bedrooms
- 1
- Bathrooms
- 1
- Sqft (est)
- 638.00
The heatmap indicates the level of crime in the area. The color of the heatmap indicates the crime severity and recency.
Metrics Year-on-Year
- Average area value
- 322,952.00 £Decreased by 27.89 %
- Est sale value
- 219,472.00 £Decreased by 6.52 %
- Average area rental value
- 1,604.00 £/moDecreased by 7.50 %
- Est letting value
- 638.00 £/moUnchanged by 0.00 %
- Est rental Yield
- 5.96 %Increased by 28.17 %
- Crime Rate
- 0.00 %
from 447,880.00 £
from 234,784.00 £
from 1,734.00 £/mo
from 638.00 £/mo
from 4.65 %
from 0.00 %
Agent Activity
D J Alexander created the listing.
Nearby Schools
| Name | Type | Ofsted | Distance |
|---|---|---|---|
| Merchiston Castle School | Offshore Schools | 5.87 KM |
Images
Nearby Streets
| Name | Average Price | Average Sqft | Distance |
|---|---|---|---|
| Leamington Road | £ 0 | 0 | 0.00 KM |
| Union Walk | £ 0 | 0 | 0.00 KM |
| Union Path | £ 0 | 0 | 0.00 KM |
| Freer Street | £ 0 | 0 | 0.00 KM |
| Fountainbridge Square | £ 0 | 0 | 0.00 KM |
Nearby Transport
| Name | NLC | TLC | Distance |
|---|---|---|---|
| Haymarket | 9419 | HYM | 1.13 KM |
| Edinburgh | 9328 | EDB | 2.65 KM |
| Slateford | 9236 | SLA | 4.09 KM |
| Kingsknowe | 9217 | KGE | 6.63 KM |
| Wester Hailes | 9231 | WTA | 8.81 KM |
Nearby Listings
| Address | Price | Type | Score | Distance |
|---|---|---|---|---|
| 60/3 Gilmore Place, Bruntsfield, Edinburgh, EH3 | £ 250,000 | BUY | 6 / 10 | 0.00 KM |
| 9 Leamington Terrace, Edinburgh, EH10 4JW | £ 395,000 | BUY | 6 / 10 | 0.07 KM |
| Upper Gilmore Place, Bruntsfield, Edinburgh, EH3 | £ 400,000 | BUY | 6 / 10 | 0.07 KM |
| 7/2 Leamington Terrace, Bruntsfield, Edinburgh, EH10 4JW | £ 375,000 | BUY | 7 / 10 | 0.09 KM |
| Flat 7, 2 Lower Gilmore Bank, Fountainbridge, Edinburgh, EH3 9QP | £ 375,000 | BUY | 6 / 10 | 0.12 KM |