Sunnybank Avenue, Horsforth, Leeds, West Yorkshire, LS18
By Hardisty & co
£ 325,000
Reviews
3 out of 5 stars
Hardisty & co says ..
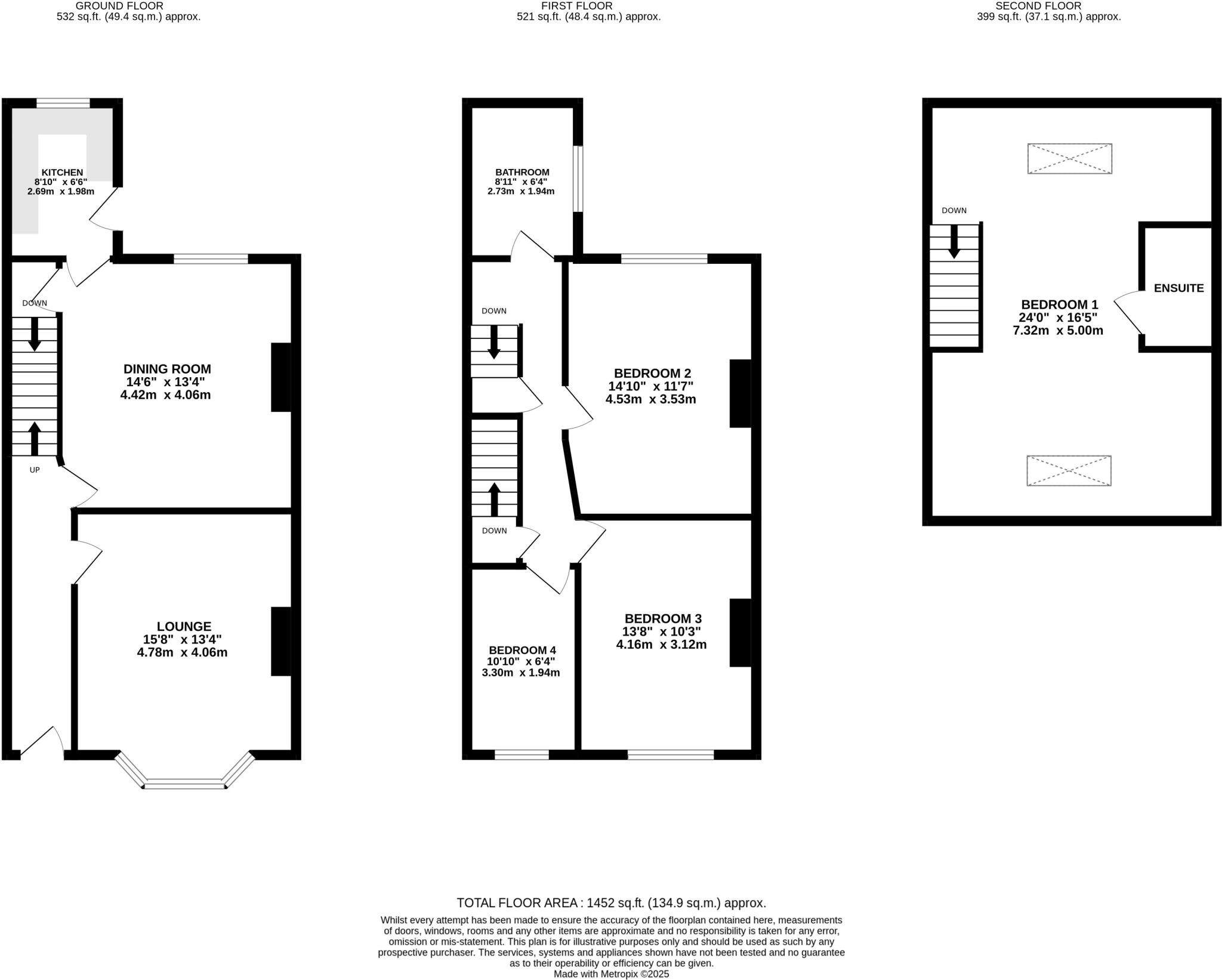
Having recently undergone refurbishment and redecoration with brand new carpets, a contemporary kitchen, a stylish new bathroom and shower room, this deceptively spacious home offers modern comfort blended with generous proportions. With four double bedrooms—including a stunning principal s...
Property Oracle says ..
This is a four-bedroom terraced property located on Sunnybank Avenue in Horsforth, Leeds. The property benefits from its proximity to good schools and transportation links. The property appears to be in reasonable condition, with modern fixtures and fittings in the kitchen and bathrooms. The property has a small rear yard. The property is listed at £325,000, which is below the average price for the area.
Therefore, we give this property 6 / 10. *Disclaimer: This is our option and does constitute a recommendation or financial advice. Do your own research. *
- Price
- 7
- Condition
- 7
- Location
- 7
- Land
- 3
- Bedrooms
- 4
- Bathrooms
- 2
The heatmap indicates the level of crime in the area. The color of the heatmap indicates the crime severity and recency.
Metrics Year-on-Year
- Average area value
- 389,660.00 £Decreased by 2.80 %
- Average area rental value
- 1,475.00 £/moIncreased by 31.70 %
- Est rental Yield
- 4.54 %Increased by 35.52 %
- Crime Rate
- 17.00 %Unchanged by 0.00 %
Agent Activity
Hardisty & co created the listing.
Nearby Schools
| Name | Type | Ofsted | Distance |
|---|---|---|---|
| Horsforth Featherbank Primary School | Community School | Outstanding | 0.12 KM |
| The Froebelian School | Other Independent School | 0.29 KM | |
| St Margaret'S Church Of England Voluntary Controlled Primary School | Voluntary Controlled School | Outstanding | 0.97 KM |
| Horsforth Newlaithes Primary School | Community School | Good | 0.98 KM |
| Horsforth School | Academy Converter | Good | 1.09 KM |
Images
Nearby Streets
| Name | Average Price | Average Sqft | Distance |
|---|---|---|---|
| Back Sunnybank Avenue | £ 325,000 | 0 | 0.00 KM |
| Bank Avenue | £ 309,967 | 0 | 0.00 KM |
| Regent Road | £ 335,000 | 0 | 0.00 KM |
| Stoney Lane | £ 500,000 | 0 | 0.00 KM |
| Green Lane | £ 188,738 | 0 | 0.00 KM |
Nearby Transport
| Name | NLC | TLC | Distance |
|---|---|---|---|
| Horsforth | 8499 | HRS | 2.02 KM |
| Kirkstall Forge | 6544 | KLF | 2.19 KM |
| Bramley (West Yorkshire) | 8496 | BLE | 3.04 KM |
| Headingley | 8498 | HDY | 5.34 KM |
| New Pudsey | 8506 | NPD | 5.47 KM |
Nearby Listings
| Address | Price | Type | Score | Distance |
|---|---|---|---|---|
| Sunnybank Avenue, Horsforth, Leeds, West Yorkshire, LS18 | £ 325,000 | BUY | 6 / 10 | 0.00 KM |
| Sunnybank Avenue, Horsforth, Leeds, West Yorkshire, LS18 | £ 350,000 | BUY | 6 / 10 | 0.01 KM |
| Sunnybank Road, Horsforth, Leeds, LS18 4NB | £ 280,000 | BUY | 7 / 10 | 0.04 KM |
| Sunnybank Avenue, Horsforth, Leeds, West Yorkshire, LS18 | £ 325,000 | BUY | 6 / 10 | 0.04 KM |
| Sunnybank Avenue, Horsforth, Leeds, West Yorkshire | £ 325,000 | BUY | Unknown | 0.07 KM |
Nearby Properties
| Address | Price | Distance |
|---|---|---|
| 18 Sunnybank Avenue | £ 240,000 | 0.02 KM |
| 13 Sunnybank Avenue | £ 271,000 | 0.02 KM |
| 16 Sunnybank Avenue | £ 182,500 | 0.02 KM |
| 22 Sunnybank Avenue | £ 108,500 | 0.02 KM |
| 28 Sunnybank Avenue | £ 210,000 | 0.02 KM |