PSP Homes says ..
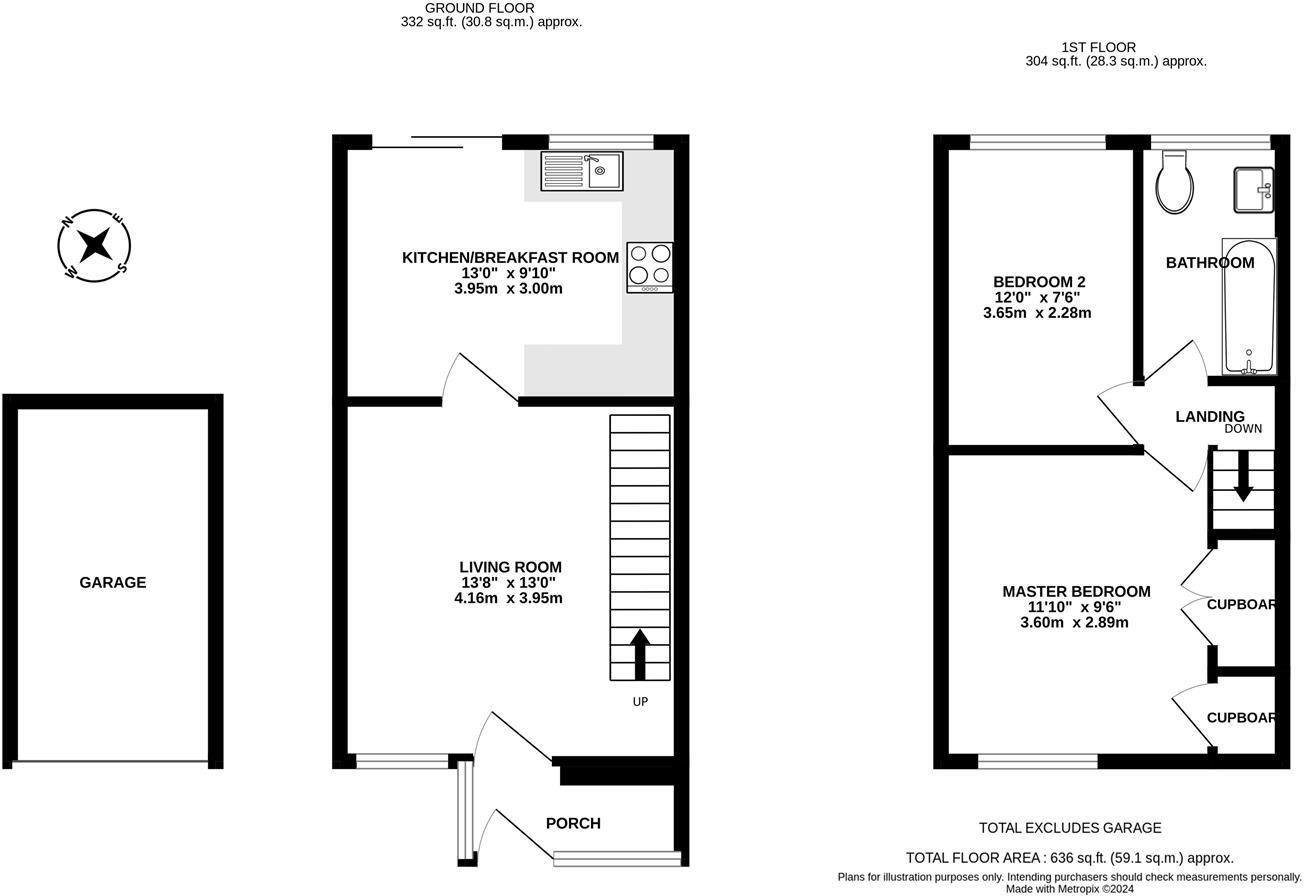
Guide Price £325,000 - £335,000 | This two bedroom terraced home is the perfect first or second time purchase with a modern kitchen/diner across the rear on to the garden, garage and a peaceful position overlooking a central green. Location wise, you're close to the Princess Royal Hospital, conve...
Property Oracle says ..
This two-bedroom terraced house in Hoblands, Haywards Heath, offers a comfortable living space for first-time buyers or small families. The property benefits from a modern kitchen/diner with patio doors leading to a relatively compact, but well maintained garden. The bathroom also appears to be recently updated. The location is convenient, with good access to local amenities and schools such as Northlands Wood Primary Academy and St Wilfrid’s Cofe Primary School. Haywards Heath train station provides convenient links to London and other parts of the UK. The inclusion of a garage is a notable positive. Overall, while not in a top-tier location, the property presents itself as well-maintained and reasonably priced for the Haywards Heath market, making it a solid option for those seeking a comfortable home in a family-friendly area. More information on the exact square footage and plot size would permit a more in-depth analysis of the value for money.
Therefore, we give this property 6 / 10. *Disclaimer: This is our option and does constitute a recommendation or financial advice. Do your own research. *
- Price
- 7
- Condition
- 7
- Location
- 7
- Land
- 4
- Bedrooms
- 2
- Bathrooms
- 1
- Sqft (est)
- 636.00
The heatmap indicates the level of crime in the area. The color of the heatmap indicates the crime severity and recency.
Metrics Year-on-Year
- Average area value
- 890,625.00 £Increased by 35.96 %
- Est sale value
- 362,520.00 £Increased by 58.77 %
- Average area rental value
- 1,412.00 £/moDecreased by 13.11 %
- Est letting value
- 0.00 £/mo
- Est rental Yield
- 1.90 %Decreased by 36.24 %
- Crime Rate
- 2.00 %Unchanged by 0.00 %
Agent Activity
PSP Homes marked this listing as sold.
PSP Homes created the listing.
Nearby Schools
| Name | Type | Ofsted | Distance |
|---|---|---|---|
| Northlands Wood Primary Academy | Academy Converter | Good | 0.62 KM |
| St Wilfrid'S Cofe Primary School, Haywards Heath | Voluntary Aided School | Good | 0.80 KM |
| Chalkhill Education Centre, Chalkhill Hospital | Pupil Referral Unit | Outstanding | 1.03 KM |
| Haywards Heath Children & Family Centre | Children's Centre | 1.03 KM | |
| Rural Haywards Heath Children & Family Centre | Children's Centre | 1.03 KM |
Images
Nearby Streets
| Name | Average Price | Average Sqft | Distance |
|---|---|---|---|
| The Copse | £ 0 | 0 | 0.00 KM |
| The Ridings | £ 0 | 0 | 0.00 KM |
| Foxes Mews | £ 0 | 0 | 0.00 KM |
| Greenhill Park | £ 0 | 0 | 0.00 KM |
| Birch Way | £ 0 | 0 | 0.00 KM |
Nearby Transport
| Name | NLC | TLC | Distance |
|---|---|---|---|
| Haywards Heath | 5490 | HHE | 2.48 KM |
| Wivelsfield | 5341 | WVF | 5.23 KM |
| Burgess Hill | 5483 | BUG | 6.57 KM |
| Plumpton | 5332 | PMP | 7.92 KM |
| Balcombe | 5492 | BAB | 8.81 KM |
Nearby Listings
| Address | Price | Type | Score | Distance |
|---|---|---|---|---|
| Hoblands, Haywards Heath | £ 325,000 | BUY | 6 / 10 | 0.00 KM |
| Hoblands, Haywards Heath | £ 325,000 | BUY | 6 / 10 | 0.01 KM |
| Hoblands, Haywards Heath | £ 465,000 | BUY | 7 / 10 | 0.10 KM |
| Franklands Village, Haywards Heath, West Sussex, RH16 | £ 190,000 | BUY | 6 / 10 | 0.11 KM |
| Hoblands, Haywards Heath | £ 315,000 | BUY | 7 / 10 | 0.11 KM |
Nearby Properties
| Address | Price | Distance |
|---|---|---|
| 103 Hoblands | £ 300,000 | 0.01 KM |
| 71 Hoblands | £ 207,000 | 0.01 KM |
| 137 Hoblands | £ 350,000 | 0.01 KM |
| 99 Hoblands | £ 182,500 | 0.01 KM |
| 87 Hoblands | £ 220,000 | 0.01 KM |