Canterbury Grove, West Norwood, London, SE27
By Winkworth
£ 1,400,000
Reviews
3 out of 5 stars
Winkworth says ..
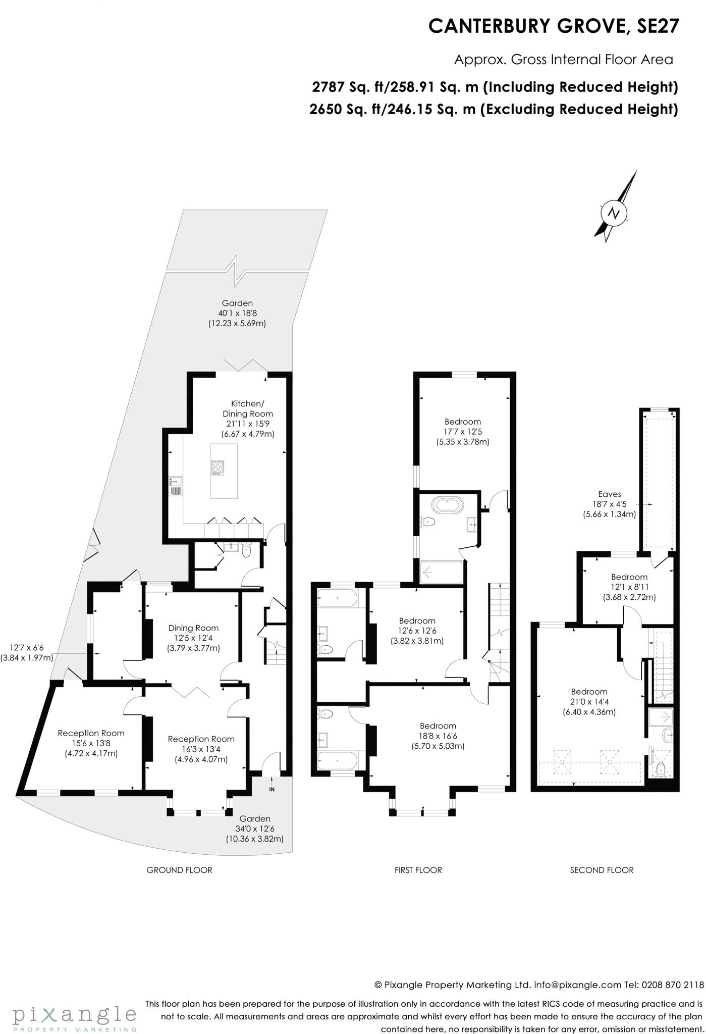
Fresh to the market is this newly refurbished and extended five bedroom semi-detached Edwardian property, which will make a wonderful family home. Accommodation comprises of, three reception rooms, study, downstairs w.c. and utility room, kitchen/breakfast room, five double bedrooms, two with en-...
Property Oracle says ..
This five-bedroom, two-bathroom property located in Canterbury Grove, West Norwood, is presented as a renovated home. The images showcase modern bathrooms with high-quality fixtures and fittings and a contemporary kitchen with a large island and bi-fold doors leading to the garden. The flooring throughout appears to be a mix of new and potentially unfinished work or requiring further work. The property benefits from its location in West Norwood, which is known for its relatively good transport links and access to various amenities. The proximity to well-regarded schools (mentioned as ‘nearby’) may be an attractive feature for families. The overall condition, however, is not explicitly fully confirmed given some photos showing ongoing work, which leaves potential buyers to evaluate the completeness of the renovations and the associated costs before purchase. The presence of a garden adds value, though its size is not apparent from the provided image. The list price will need to be carefully considered against comparable properties, accounting for condition, size, and the land to ensure it is reflective of the market value in the current environment.
Therefore, we give this property 6 / 10. *Disclaimer: This is our option and does constitute a recommendation or financial advice. Do your own research. *
- Price
- 7
- Condition
- 8
- Location
- 7
- Land
- 4
- Bedrooms
- 5
- Bathrooms
- 2
- Sqft (est)
- 2,787.00
The heatmap indicates the level of crime in the area. The color of the heatmap indicates the crime severity and recency.
Metrics Year-on-Year
- Average area value
- 696,167.00 £Decreased by 17.95 %
- Est sale value
- 1,736,301.00 £Decreased by 14.42 %
- Average area rental value
- 2,133.00 £/moDecreased by 1.25 %
- Est letting value
- 2,787.00 £/moUnchanged by 0.00 %
- Est rental Yield
- 3.68 %Increased by 20.26 %
- Crime Rate
- 3.00 %Unchanged by 0.00 %
Agent Activity
Winkworth created the listing.
Nearby Schools
| Name | Type | Ofsted | Distance |
|---|---|---|---|
| Hitherfield Primary School & Children'S Centre (P2) | Children's Centre | 0.54 KM | |
| Hitherfield Primary School | Community School | Good | 0.56 KM |
| Julian'S School | Foundation School | Good | 0.75 KM |
| Dunraven School | Academy Converter | Outstanding | 0.80 KM |
| Sunnyhill Primary School | Community School | Good | 0.92 KM |
Images
Nearby Streets
| Name | Average Price | Average Sqft | Distance |
|---|---|---|---|
| Yeomans Close | £ 0 | 0 | 0.00 KM |
| Caroline Close | £ 0 | 0 | 0.00 KM |
| Knollys Road | £ 390,000 | 0 | 0.00 KM |
| Tredwell Road | £ 0 | 0 | 0.00 KM |
| Church Road | £ 0 | 0 | 0.00 KM |
Nearby Transport
| Name | NLC | TLC | Distance |
|---|---|---|---|
| West Norwood | 5438 | WNW | 0.93 KM |
| Tulse Hill | 5390 | TUH | 1.19 KM |
| Streatham Hill | 5435 | SRH | 1.79 KM |
| Streatham | 5383 | STE | 2.24 KM |
| West Dulwich | 5086 | WDU | 2.51 KM |
Nearby Listings
| Address | Price | Type | Score | Distance |
|---|---|---|---|---|
| Canterbury Grove, West Norwood, London, SE27 | £ 1,400,000 | BUY | 6 / 10 | 0.00 KM |
| Uffington Road, Streatham | £ 395,000 | BUY | Unknown | 0.02 KM |
| Canterbury Grove, West Norwood, SE27 | £ 875,000 | BUY | Unknown | 0.07 KM |
| Canterbury Grove, London | £ 749,000 | BUY | 6 / 10 | 0.08 KM |
| Ivymount Road, West Norwood, London, SE27 | £ 675,000 | BUY | 6 / 10 | 0.09 KM |
Nearby Properties
| Address | Price | Distance |
|---|---|---|
| 32 Uffington Road | £ 335,000 | 0.09 KM |
| 46 Uffington Road | £ 629,950 | 0.09 KM |
| 38 Uffington Road | £ 390,000 | 0.09 KM |
| 21 Ivymount Road | £ 810,000 | 0.10 KM |
| 58 Uffington Road | £ 235,000 | 0.10 KM |