Cheltenham Road, Kinsham, Tewkesbury, Gloucestershire
By Hughes Sealey
£ 800,000
Reviews
3 out of 5 stars
Hughes Sealey says ..
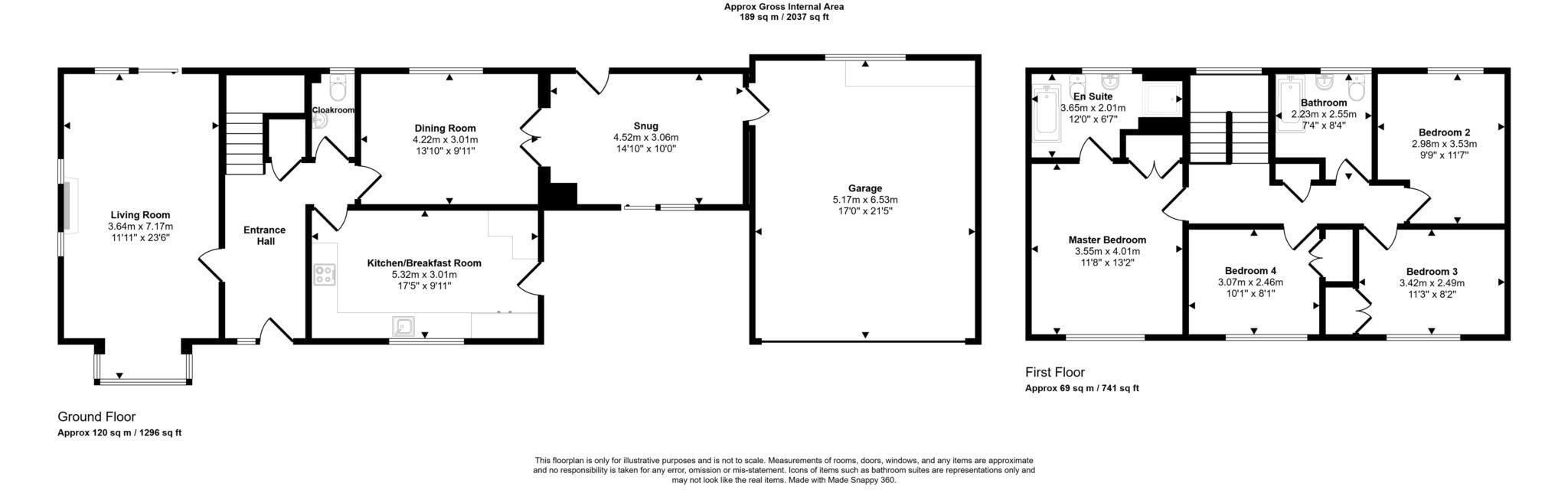
An individually built four double bedroom detached family home located in this highly sought after village, offered for sale with no onward chain. Enjoying three reception room, kitchen/breakfast room, master bedroom with en suite, attached double garage and mature gardens to the front and rear
Property Oracle says ..
This is a detached property located on Cheltenham Road, Kinsham, offering four bedrooms and two bathrooms. The house appears to be in good condition, with a modern kitchen and well-maintained interiors. The property benefits from a large garden, providing ample outdoor space. While the square footage is not provided, the overall size and features of the property suggest it is a comfortable family home. The location offers a balance of rural living and accessibility, with good transport links and nearby schools. The price is slightly above the average for the area, but justifiable given the property’s condition, size, and plot size.
Therefore, we give this property 7 / 10. *Disclaimer: This is our option and does constitute a recommendation or financial advice. Do your own research. *
- Price
- 6
- Condition
- 8
- Location
- 7
- Land
- 9
- Bedrooms
- 4
- Bathrooms
- 2
The heatmap indicates the level of crime in the area. The color of the heatmap indicates the crime severity and recency.
Metrics Year-on-Year
- Average area value
- 724,089.00 £Increased by 127.29 %
- Average area rental value
- 1,717.00 £/moDecreased by 31.32 %
- Est rental Yield
- 2.85 %Decreased by 69.75 %
- Crime Rate
- 37.00 %Unchanged by 0.00 %
Agent Activity
Hughes Sealey created the listing.
Nearby Schools
| Name | Type | Ofsted | Distance |
|---|---|---|---|
| Carrant Brook Junior School | Foundation School | Requires improvement | 2.33 KM |
| Northway And Ashchurch Children'S Centre | Children's Centre | 2.48 KM | |
| Northway Infant School | Community School | Outstanding | 2.48 KM |
| Bredon Hancock'S Endowed Cofe First School | Voluntary Aided School | Outstanding | 2.49 KM |
| Ashchurch Primary School | Community School | Good | 2.71 KM |
Images
Nearby Streets
| Name | Average Price | Average Sqft | Distance |
|---|---|---|---|
| Chapel Lane | £ 0 | 0 | 0.00 KM |
| B4079 | £ 0 | 0 | 0.00 KM |
| Russet Close | £ 375,000 | 0 | 0.00 KM |
| Aston Fields Lane | £ 0 | 0 | 0.00 KM |
| Bricknell Avenue | £ 400,000 | 0 | 0.00 KM |
Nearby Transport
| Name | NLC | TLC | Distance |
|---|---|---|---|
| Ashchurch For Tewkesbury | 4700 | ASC | 2.69 KM |
Nearby Listings
| Address | Price | Type | Score | Distance |
|---|---|---|---|---|
| Cheltenham Road, Kinsham, Tewkesbury, Gloucestershire | £ 800,000 | BUY | 7 / 10 | 0.00 KM |
| Chapel Lane, Kinsham, Tewkesbury, Gloucestershire | £ 375,000 | BUY | 6 / 10 | 0.12 KM |
| Cheltenham Road , Kinsham , Tewkesbury , GL20 | £ 499,950 | BUY | 7 / 10 | 0.23 KM |
| Lower Lane, Kinsham, Tewkesbury, Worcestershire, GL20 | £ 1,025,000 | BUY | 7 / 10 | 0.30 KM |
| Lower Lane, Kinsham, Tewkesbury, Gloucestershire | £ 775,000 | BUY | 7 / 10 | 0.40 KM |
Nearby Properties
| Address | Price | Distance |
|---|---|---|
| Lynfield | £ 249,999 | 0.14 KM |
| Orchard House | £ 250,000 | 0.18 KM |
| The Old Dairy | £ 325,000 | 0.18 KM |
| Gable Point | £ 375,000 | 0.18 KM |
| Shalbourne | £ 350,000 | 0.18 KM |