Wheatcroft & Lloyd says ..
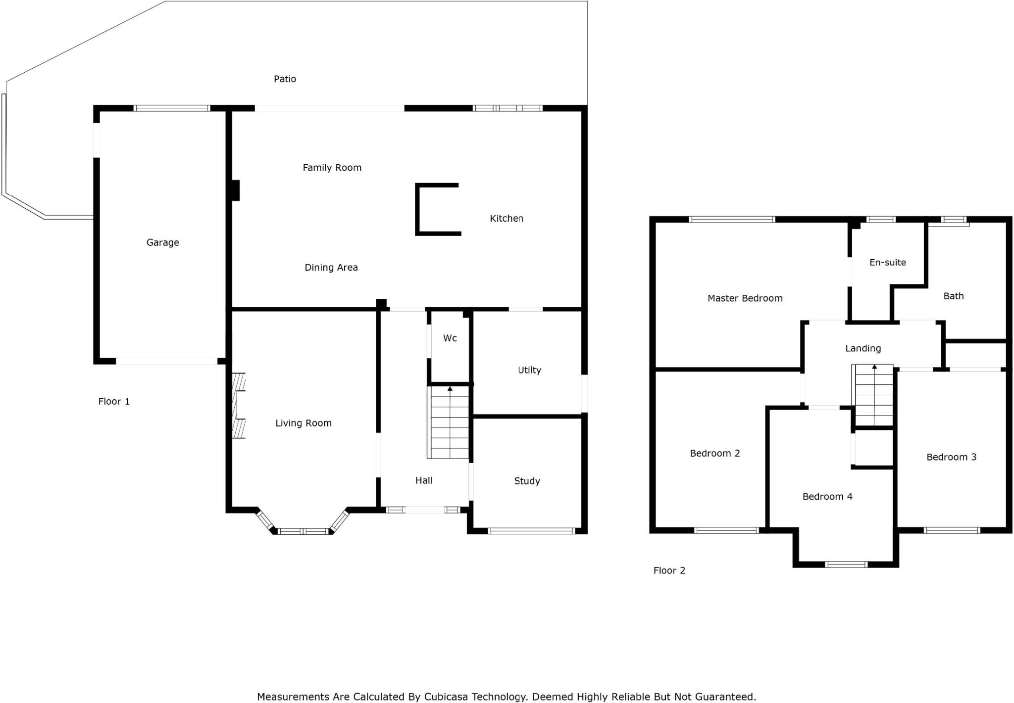
Stunning, 4 bedroom, detached family home situated in a peaceful and sought after residential location with large private rear gardens. In brief: 4 Double bedrooms, sitting room, impressive bespoke kitchen//family room with bifold doors, granite worksurfaces and media wall, 2 baths, study, uitilty.
Property Oracle says ..
The property is a 4-bedroom, 2-bathroom detached house located in Lyncroft Close, Crewe, Cheshire East. The property benefits from a large garden. Based on the images provided, the property appears to be in excellent condition and has been recently modernised. The kitchen and bathrooms are modern and well-equipped. The location is good, with nearby schools including Springfield School (Outstanding Ofsted rating) and Brierley Primary School (Good Ofsted rating). Crewe railway station is also within reasonable proximity, providing good transport links. Considering the average price per square foot in the area is £236, and this property is 1,970 sqft, a reasonable estimate of the property value would be in the region of £465,000. The list price of £425,000 appears to be slightly below this estimate, potentially representing good value for money, especially given the property’s condition and the size of the garden. However, without further information on comparable properties in the immediate vicinity, it is difficult to make a definitive statement on its price competitiveness.
Therefore, we give this property 8 / 10. *Disclaimer: This is our option and does constitute a recommendation or financial advice. Do your own research. *
- Price
- 8
- Condition
- 9
- Location
- 7
- Land
- 8
- Bedrooms
- 4
- Bathrooms
- 2
- Sqft (est)
- 1,970.00
The heatmap indicates the level of crime in the area. The color of the heatmap indicates the crime severity and recency.
Metrics Year-on-Year
- Average area value
- 198,130.00 £Decreased by 16.97 %
- Est sale value
- 451,130.00 £Increased by 3.62 %
- Average area rental value
- 1,075.00 £/moIncreased by 14.97 %
- Est letting value
- 1,970.00 £/mo
- Est rental Yield
- 6.51 %Increased by 38.51 %
- Crime Rate
- 2.00 %Unchanged by 0.00 %
Agent Activity
Wheatcroft & Lloyd created the listing.
Nearby Schools
| Name | Type | Ofsted | Distance |
|---|---|---|---|
| Hungerford Primary Academy | Academy Converter | 0.53 KM | |
| Springfield School | Community Special School | Outstanding | 0.55 KM |
| Safe Opportunities | Special Post 16 Institution | 1.10 KM | |
| Sir William Stanier Community School | Academy Sponsor Led | Requires improvement | 1.46 KM |
| Brierley Primary School | Community School | Good | 1.52 KM |
Images
Nearby Streets
| Name | Average Price | Average Sqft | Distance |
|---|---|---|---|
| Woodland Avenue | £ 0 | 0 | 0.00 KM |
| Grange Close | £ 0 | 0 | 0.00 KM |
| Sydney Road | £ 400,000 | 0 | 0.00 KM |
| Joseph Lucas Road | £ 0 | 0 | 0.00 KM |
| Robert Lewis Avenue32 | £ 0 | 0 | 0.00 KM |
Nearby Transport
| Name | NLC | TLC | Distance |
|---|---|---|---|
| Crewe | 1243 | CRE | 1.24 KM |
| Sandbach | 1261 | SDB | 6.96 KM |
Nearby Listings
| Address | Price | Type | Score | Distance |
|---|---|---|---|---|
| Hungerford Terrace, Crewe, CW1 | £ 220,000 | BUY | 7 / 10 | 0.14 KM |
| Woodland Avenue, Crewe | £ 217,750 | BUY | 7 / 10 | 0.24 KM |
| Woodland Avenue, Crewe | £ 325,000 | BUY | 6 / 10 | 0.24 KM |
| Hungerford Road, Crewe, Cheshire, CW1 | £ 200,000 | BUY | 6 / 10 | 0.28 KM |
| Hungerford Road, Crewe | £ 175,000 | BUY | 7 / 10 | 0.28 KM |
Nearby Properties
| Address | Price | Distance |
|---|---|---|
| 17 Lyncroft Close | £ 197,950 | 0.00 KM |
| 12 Lyncroft Close | £ 219,950 | 0.00 KM |
| 14 Lyncroft Close | £ 215,000 | 0.00 KM |
| 8 Lyncroft Close | £ 210,000 | 0.00 KM |
| 2 Lyncroft Close | £ 232,000 | 0.00 KM |