Fine & Country says ..
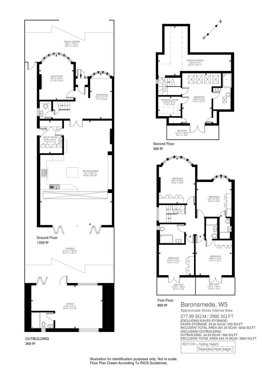
An impressive detached five-bedroom, five-bathroom family home in Ealing, offered chain free. Featuring off-street parking, a south-facing garden, and a versatile self-contained annexe
Property Oracle says ..
This is a substantial detached property located in the desirable area of Ealing Common, London. The house boasts five bedrooms and five bathrooms, offering ample space for a growing family. The property is in good condition, with modern fixtures and fittings throughout. A well-maintained garden provides outdoor space for recreation and relaxation. The location is ideal, with good transport links, local amenities, and reputable schools nearby. The asking price of £1,750,000 is reasonable considering the size, condition, and location of the property. Overall, this property represents a fantastic opportunity for those seeking a spacious and well-appointed family home in a sought-after London location.
Therefore, we give this property 7 / 10. *Disclaimer: This is our option and does constitute a recommendation or financial advice. Do your own research. *
- Price
- 7
- Condition
- 8
- Location
- 8
- Land
- 7
- Bedrooms
- 5
- Bathrooms
- 5
- Sqft (est)
- 5,444.39
The heatmap indicates the level of crime in the area. The color of the heatmap indicates the crime severity and recency.
Metrics Year-on-Year
- Average area value
- 683,580.00 £Decreased by 10.48 %
- Est sale value
- 4,262,957.37 £Increased by 44.46 %
- Average area rental value
- 2,333.00 £/moIncreased by 12.11 %
- Est letting value
- 10,888.78 £/moIncreased by 100.00 %
- Est rental Yield
- 4.10 %Increased by 25.38 %
- Crime Rate
- 1.00 %Unchanged by 0.00 %
Agent Activity
Fine & Country created the listing.
Nearby Schools
| Name | Type | Ofsted | Distance |
|---|---|---|---|
| Lionel Primary School | Community School | Outstanding | 1.13 KM |
| Ark Acton Academy | Academy Sponsor Led | 1.13 KM | |
| International School Of London | Other Independent School | Good | 1.15 KM |
| Eagle Park Independent School | Other Independent Special School | 1.21 KM | |
| The Eden Sda School | Other Independent School | Good | 1.36 KM |
Images
Nearby Streets
| Name | Average Price | Average Sqft | Distance |
|---|---|---|---|
| Pope's Lane | £ 649,975 | 0 | 0.00 KM |
| Brook Close | £ 549,950 | 0 | 0.00 KM |
| Thomas Layton Way | £ 0 | 0 | 0.00 KM |
| Hamilton Court | £ 650,000 | 0 | 0.00 KM |
| Thomas Layton Way | £ 0 | 0 | 0.00 KM |
Nearby Transport
| Name | NLC | TLC | Distance |
|---|---|---|---|
| Kew Bridge | 5593 | KWB | 1.51 KM |
| Ealing Broadway | 3190 | EAL | 1.83 KM |
| Gunnersbury | 5588 | GUN | 2.10 KM |
| South Acton | 1452 | SAT | 2.30 KM |
| Brentford | 5552 | BFD | 2.67 KM |
Nearby Listings
| Address | Price | Type | Score | Distance |
|---|---|---|---|---|
| Baronsmede, London, W5 | £ 1,500,000 | BUY | 7 / 10 | 0.00 KM |
| Baronsmede, London, W5 | £ 1,750,000 | BUY | 7 / 10 | 0.00 KM |
| Baronsmede, London, United Kingdom, W5 | £ 1,850,000 | BUY | 7 / 10 | 0.01 KM |
| Popes Lane, Ealing, W5 | £ 1,299,950 | BUY | 6 / 10 | 0.17 KM |
| Baronsmede, Ealing, W5 | £ 1,450,000 | BUY | Unknown | 0.17 KM |
Nearby Properties
| Address | Price | Distance |
|---|---|---|
| 44 Baronsmede | £ 1,050,000 | 0.08 KM |
| 4 Baronsmede | £ 800,000 | 0.08 KM |
| 50 Baronsmede | £ 1,730,000 | 0.08 KM |
| 48 Baronsmede | £ 1,604,000 | 0.08 KM |
| 46 Baronsmede | £ 1,300,000 | 0.08 KM |