Howard Douglas says ..
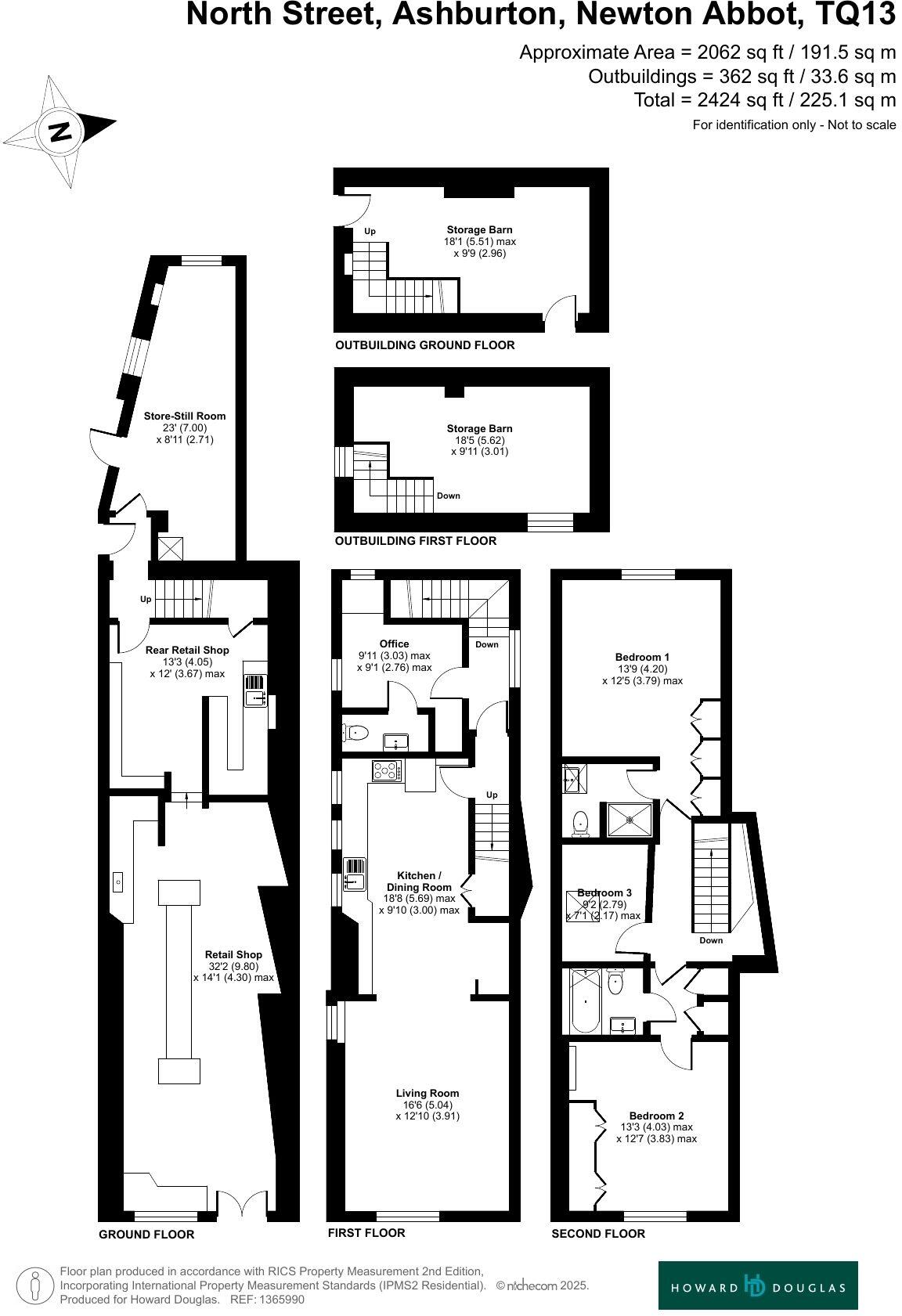
A fabulous lifestyle business - Multi award winning delicatessen housed within a substantial Grade II listed town centre period building with three bedroom living accommodation and barn/store
Property Oracle says ..
This terraced property on North Street in Ashburton presents a unique opportunity, currently operating as a delicatessen. The location is central, offering good access to local amenities and schools. While the kitchen has been modernized, other areas of the property would benefit from updating. The property’s price appears high relative to average property values in the area, but its commercial potential and location may justify the premium. A detailed inspection is recommended to fully assess the condition and potential.
Therefore, we give this property 5 / 10. *Disclaimer: This is our option and does constitute a recommendation or financial advice. Do your own research. *
- Price
- 4
- Condition
- 6
- Location
- 7
- Land
- 3
- Bedrooms
- 3
- Bathrooms
- 2
The heatmap indicates the level of crime in the area. The color of the heatmap indicates the crime severity and recency.
Metrics Year-on-Year
- Average area value
- 347,013.00 £Decreased by 8.81 %
- Average area rental value
- 940.00 £/moIncreased by 0.53 %
- Est rental Yield
- 3.25 %Increased by 10.17 %
- Crime Rate
- 92.00 %Unchanged by 0.00 %
Agent Activity
Howard Douglas created the listing.
Nearby Schools
| Name | Type | Ofsted | Distance |
|---|---|---|---|
| Sands School | Other Independent School | 0.33 KM | |
| Ashburton Primary School | Academy Converter | Good | 0.43 KM |
| South Dartmoor Community College | Academy Converter | Requires improvement | 1.51 KM |
| Atrium Studio School | Studio Schools | Good | 1.57 KM |
| St Mary'S Catholic Primary School, Buckfast | Academy Converter | Good | 3.49 KM |
Images
Nearby Streets
| Name | Average Price | Average Sqft | Distance |
|---|---|---|---|
| St Andrews Close | £ 149,950 | 0 | 0.00 KM |
| Tuckers Meadow | £ 0 | 0 | 0.00 KM |
| Screechers Hill | £ 420,000 | 0 | 0.00 KM |
| Westabrook Drive | £ 0 | 0 | 0.00 KM |
| Luces Mead | £ 0 | 0 | 0.00 KM |
Nearby Listings
| Address | Price | Type | Score | Distance |
|---|---|---|---|---|
| North Street, Ashburton | £ 650,000 | BUY | 5 / 10 | 0.00 KM |
| North Street, Ashburton | £ 119,950 | BUY | 5 / 10 | 0.01 KM |
| North Street, Ashburton | £ 315,000 | BUY | 5 / 10 | 0.01 KM |
| North Street, Ashburton, Newton Abbot | £ 325,000 | BUY | 4 / 10 | 0.02 KM |
| North Street, Ashburton | £ 149,950 | BUY | Unknown | 0.03 KM |
Nearby Properties
| Address | Price | Distance |
|---|---|---|
| 9 North Street | £ 245,000 | 0.03 KM |
| 5 Foales Court | £ 116,000 | 0.03 KM |
| 3 North Street | £ 51,000 | 0.04 KM |
| 34 North Street | £ 219,950 | 0.04 KM |
| 10a North Street | £ 103,500 | 0.04 KM |