Oaklands Road, Bridgend, Bridgend County. CF31 4SX
By Gareth L. Edwards
£ 249,995
Reviews
3 out of 5 stars
Gareth L. Edwards says ..
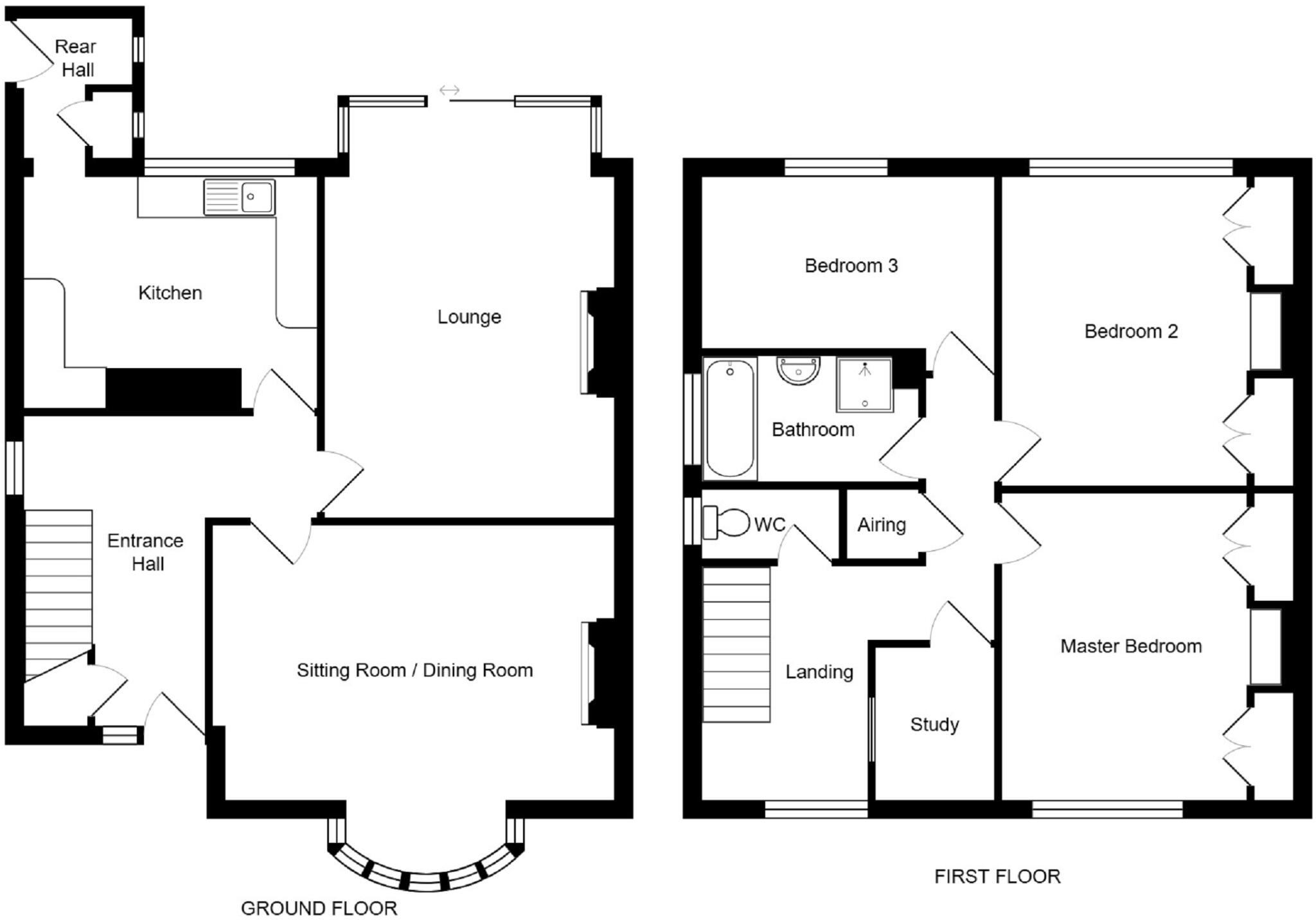
*No Ongoing Chain & Vacant Possession* - Gareth L Edwards Ltd are pleased to offer this three bedroom traditional semi-detached property located on this popular residential street to the West of Bridgend Town. The property has three well-proportioned bedrooms and a box room and is located wi...
Property Oracle says ..
Therefore, we give this property 6 / 10. *Disclaimer: This is our option and does constitute a recommendation or financial advice. Do your own research. *
- Price
- 7
- Condition
- 4
- Location
- 7
- Land
- 7
- Bedrooms
- 3
- Bathrooms
- 1
The heatmap indicates the level of crime in the area. The color of the heatmap indicates the crime severity and recency.
Metrics Year-on-Year
- Average area value
- 248,072.00 £Decreased by 9.58 %
- Average area rental value
- 998.00 £/moIncreased by 13.41 %
- Est rental Yield
- 4.83 %Increased by 25.45 %
- Crime Rate
- 8.00 %Unchanged by 0.00 %
from 274,348.00 £
from 880.00 £/mo
from 3.85 %
from 8.00 %
Agent Activity
Gareth L. Edwards created the listing.
Nearby Schools
| Name | Type | Ofsted | Distance |
|---|---|---|---|
| Bryntirion Infants School | Welsh Establishment | 0.22 KM | |
| Maes Yr Haul Primary School | Welsh Establishment | 0.41 KM | |
| Llangewydd Junior School | Welsh Establishment | 0.58 KM | |
| Cefn Glas Infant School | Welsh Establishment | 1.35 KM | |
| Bryntirion Comprehensive School | Welsh Establishment | 1.43 KM |
Images
Nearby Streets
| Name | Average Price | Average Sqft | Distance |
|---|---|---|---|
| Bryn Awel | £ 350,000 | 0 | 0.00 KM |
| Pen y Bryn | £ 143,000 | 0 | 0.00 KM |
| Heol-y-Frenhines | £ 195,000 | 0 | 0.00 KM |
| Philip Avenue | £ 299,950 | 0 | 0.00 KM |
| Bryn Awelon | £ 0 | 0 | 0.00 KM |
Nearby Transport
| Name | NLC | TLC | Distance |
|---|---|---|---|
| Wildmill | 3965 | WMI | 2.93 KM |
| Bridgend | 3809 | BGN | 2.96 KM |
| Sarn | 4270 | SRR | 3.79 KM |
| Tondu | 4271 | TDU | 4.56 KM |
Nearby Listings
| Address | Price | Type | Score | Distance |
|---|---|---|---|---|
| Oaklands Road, Bridgend, Bridgend County. CF31 4SX | £ 249,995 | BUY | 6 / 10 | 0.00 KM |
| Oaklands Road, Bridgend, Bridgend County. CF31 4SX | £ 289,995 | BUY | 7 / 10 | 0.00 KM |
| Bryntirion Hill, Bridgend County Borough, CF31 4BY | £ 350,000 | BUY | 7 / 10 | 0.08 KM |
| Brynawel, Bridgend | £ 289,995 | BUY | 7 / 10 | 0.12 KM |
| 13 Llwyn-Y-Groes Broadlands Bridgend CF31 5AJ | £ 425,000 | BUY | 6 / 10 | 0.14 KM |
Nearby Properties
| Address | Price | Distance |
|---|---|---|
| 151 Oaklands Road | £ 290,000 | 0.01 KM |
| 135 Oaklands Road | £ 173,250 | 0.01 KM |
| 110 Oaklands Road | £ 260,000 | 0.02 KM |
| 15 Brynawel | £ 157,500 | 0.14 KM |
| 9 Brynawel | £ 381,000 | 0.14 KM |