Chancellors says ..
This ideal investment or first time purchase has a lost of scope to create a wonderful family home. Ideally located for Knaphill village and Brookwood station.
Property Oracle says ..
Therefore, we give this property 5 / 10. *Disclaimer: This is our option and does constitute a recommendation or financial advice. Do your own research. *
- Price
- 8
- Condition
- 2
- Location
- 7
- Land
- 6
- Bedrooms
- 3
- Bathrooms
- 1
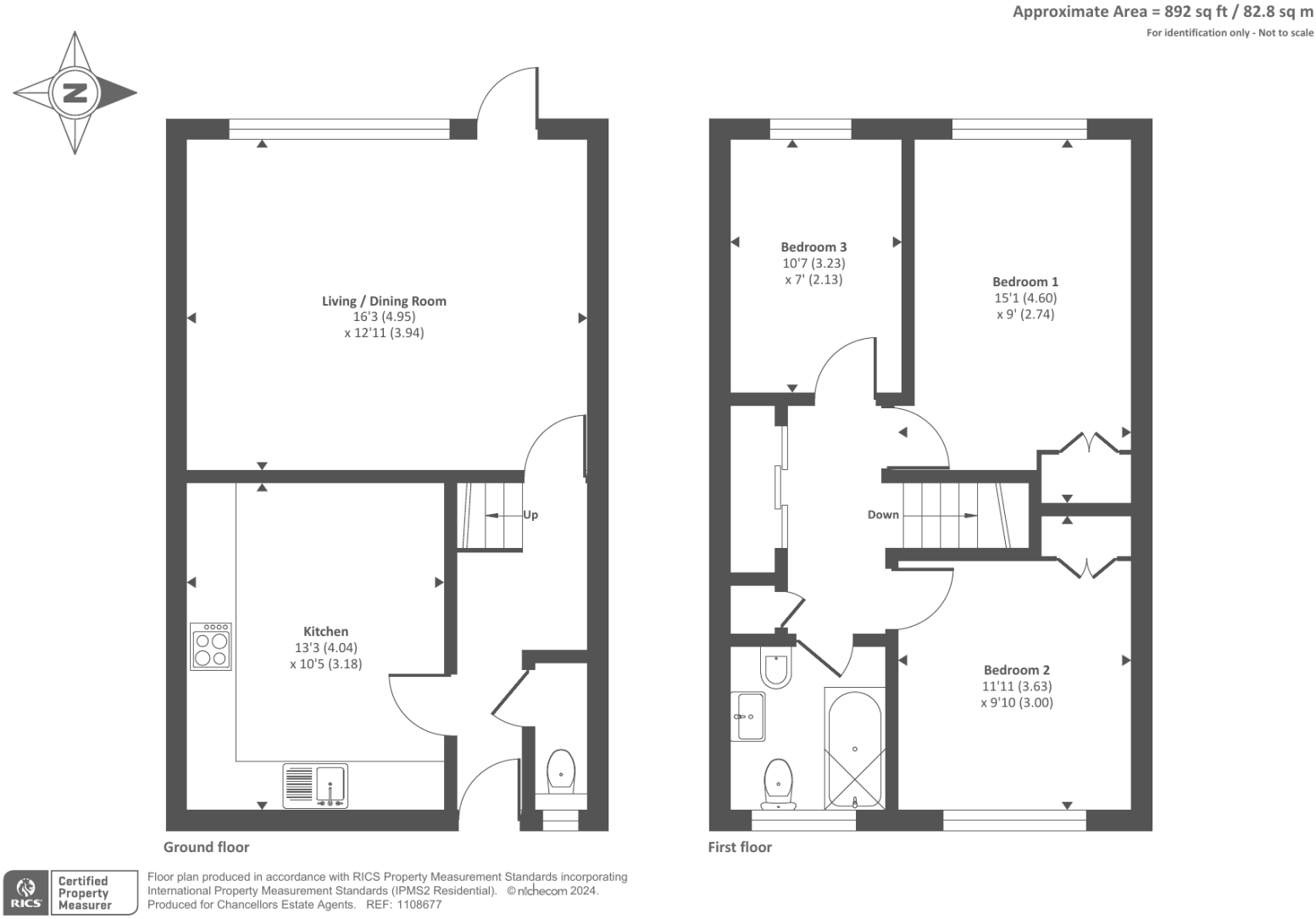
- Sqft (est)
- 672.71
The heatmap indicates the level of crime in the area. The color of the heatmap indicates the crime severity and recency.
Metrics Year-on-Year
- Average area value
- 586,400.00 £Increased by 18.76 %
- Est sale value
- 320,209.96 £Increased by 6.01 %
- Average area rental value
- 2,150.00 £/moIncreased by 9.47 %
- Est letting value
- 672.71 £/moUnchanged by 0.00 %
- Est rental Yield
- 4.40 %Decreased by 7.76 %
- Crime Rate
- 106.00 %Unchanged by 0.00 %
from 493,776.00 £
from 302,046.79 £
from 1,964.00 £/mo
from 672.71 £/mo
from 4.77 %
from 106.00 %
Agent Activity
Chancellors created the listing.
Nearby Schools
| Name | Type | Ofsted | Distance |
|---|---|---|---|
| St Hugh Of Lincoln Catholic Primary School | Academy Converter | Good | 0.72 KM |
| St John'S Primary School And Sure Start Children'S Centre | Children's Centre | 0.89 KM | |
| St John'S Primary School | Academy Sponsor Led | Requires improvement | 0.89 KM |
| Knaphill School | Academy Converter | 0.90 KM | |
| The Oaktree School | Academy Converter | 1.07 KM |
Images
Nearby Streets
| Name | Average Price | Average Sqft | Distance |
|---|---|---|---|
| Rose Lodge | £ 0 | 0 | 0.00 KM |
| Elmgrove Close | £ 425,000 | 0 | 0.00 KM |
| Barton Close | £ 0 | 0 | 0.00 KM |
| Beechwood Close | £ 0 | 0 | 0.00 KM |
| Oakway | £ 475,000 | 0 | 0.00 KM |
Nearby Transport
| Name | NLC | TLC | Distance |
|---|---|---|---|
| Brookwood | 5687 | BKO | 2.67 KM |
| Worplesdon | 5686 | WPL | 4.68 KM |
| Woking | 5685 | WOK | 6.42 KM |
| Longcross | 5674 | LNG | 8.02 KM |
| Sunningdale | 5671 | SNG | 8.69 KM |
Nearby Listings
| Address | Price | Type | Score | Distance |
|---|---|---|---|---|
| Knaphill, Surrey, GU21 | £ 375,000 | BUY | 5 / 10 | 0.00 KM |
| Alexandra Gardens, Knaphill, Woking, Surrey, GU21 | £ 635,000 | BUY | 7 / 10 | 0.03 KM |
| Alexandra Gardens, Knaphill, Woking, Surrey, GU21 | £ 600,000 | BUY | 7 / 10 | 0.03 KM |
| Lower Guildford Road, Knaphill, Woking, Surrey, GU21 | £ 550,000 | BUY | 7 / 10 | 0.05 KM |
| Knaphill | £ 269,950 | BUY | 5 / 10 | 0.06 KM |
Nearby Properties
| Address | Price | Distance |
|---|---|---|
| 168 Alexandra Gardens | £ 152,500 | 0.03 KM |
| 178 Alexandra Gardens | £ 595,000 | 0.03 KM |
| 175 Alexandra Gardens | £ 390,000 | 0.03 KM |
| 164 Alexandra Gardens | £ 590,000 | 0.03 KM |
| 187 Alexandra Gardens | £ 425,000 | 0.03 KM |