Andrew Pearce says ..
Unlock the Full Potential of this Spacious Five-Bedroom Semi-Detached Family Home. Located on one of the area's premier roads, this extended five-bedroom semi-detached house offers an excellent opportunity for buyers looking to create their dream home.
Property Oracle says ..
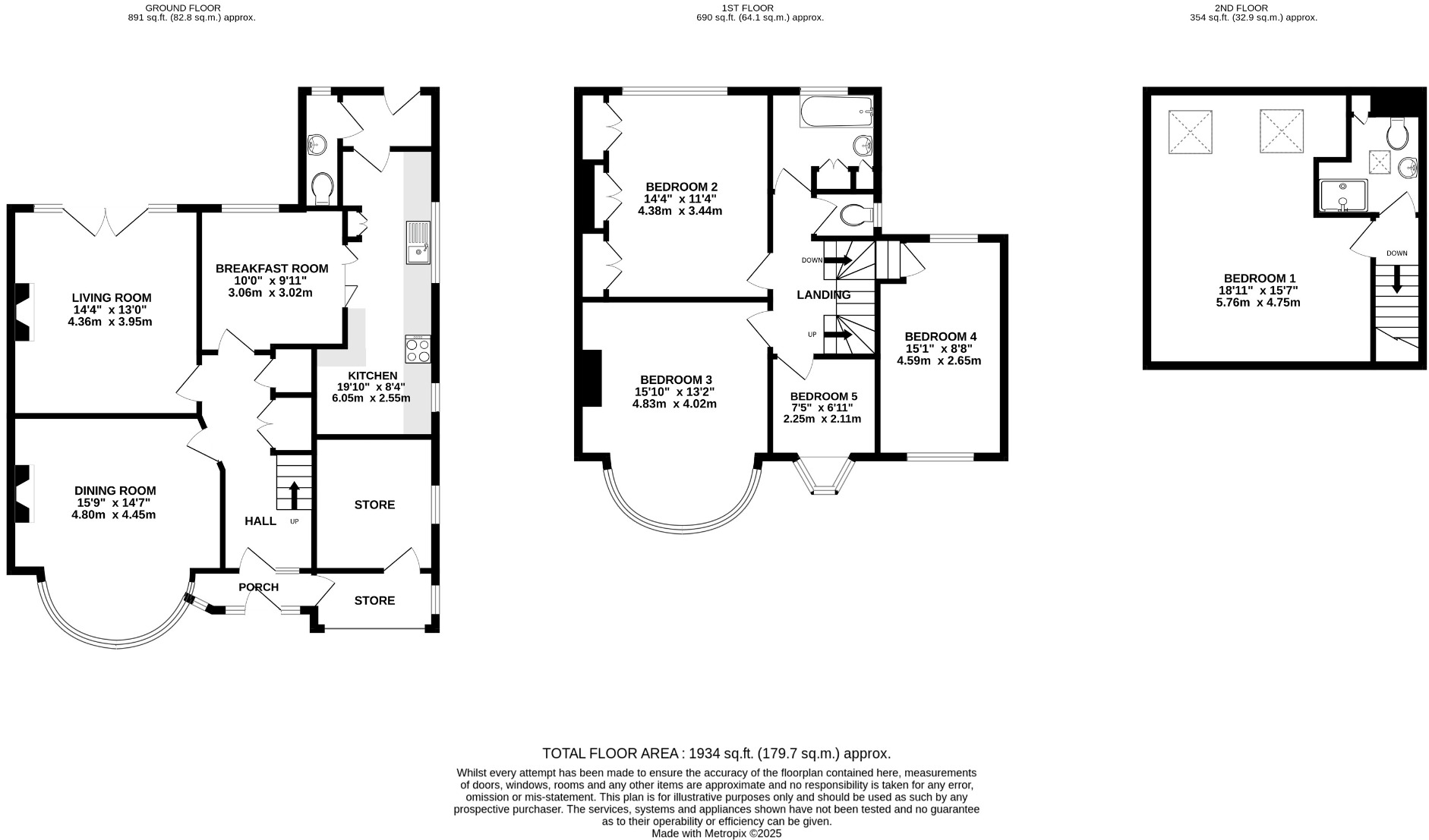
This property is a 5 bedroom semi-detached house located on Lowlands Road in Pinner, Hillingdon. The property benefits from being close to excellent schools such as Pinner High School (Outstanding Ofsted rating) and Cannon Lane Primary School (Good Ofsted rating), both within a short distance. Transport links are also convenient, with South Ruislip underground station approximately 2.75km away. The house itself is in need of modernisation and updating. While it has potential, the current condition requires significant work. The garden is overgrown but shows potential. The asking price of £950,000 is higher than the average price for the area (£771,371), and given the required renovations, may not represent the best value for money. However, comparable properties in the area are similarly priced, suggesting the asking price might be reasonable within the local market context.
Therefore, we give this property 5 / 10. *Disclaimer: This is our option and does constitute a recommendation or financial advice. Do your own research. *
- Price
- 6
- Condition
- 4
- Location
- 8
- Land
- 5
- Bedrooms
- 5
- Bathrooms
- 2
- Sqft (est)
- 1,934.00
The heatmap indicates the level of crime in the area. The color of the heatmap indicates the crime severity and recency.
Metrics Year-on-Year
- Average area value
- 940,833.00 £Increased by 19.00 %
- Est sale value
- 1,048,228.00 £Increased by 11.29 %
- Average area rental value
- 2,875.00 £/moIncreased by 9.19 %
- Est letting value
- 1,934.00 £/moUnchanged by 0.00 %
- Est rental Yield
- 3.67 %Decreased by 8.25 %
- Crime Rate
- 2.00 %Unchanged by 0.00 %
Agent Activity
Andrew Pearce created the listing.
Nearby Schools
| Name | Type | Ofsted | Distance |
|---|---|---|---|
| Cannon Lane Primary School | Community School | Good | 0.45 KM |
| Pinner High School | Free Schools | Outstanding | 0.53 KM |
| Newnham Junior School | Community School | Outstanding | 0.66 KM |
| Newnham Infant And Nursery School | Community School | Good | 0.66 KM |
| Gesher School | Other Independent School | Outstanding | 1.21 KM |
Images
Nearby Streets
| Name | Average Price | Average Sqft | Distance |
|---|---|---|---|
| Boundary Road | £ 0 | 0 | 0.00 KM |
| Rochester Drive | £ 1,500,000 | 0 | 0.00 KM |
| Essex Close | £ 0 | 0 | 0.00 KM |
| Garth Close | £ 0 | 0 | 0.00 KM |
| Rodney Close | £ 895,000 | 0 | 0.00 KM |
Nearby Transport
| Name | NLC | TLC | Distance |
|---|---|---|---|
| South Ruislip | 3057 | SRU | 2.75 KM |
| Hatch End | 1398 | HTE | 4.14 KM |
| Northolt Park | 1478 | NLT | 4.45 KM |
| Headstone Lane | 1434 | HDL | 4.59 KM |
| West Ruislip | 3059 | WRU | 5.17 KM |
Nearby Listings
| Address | Price | Type | Score | Distance |
|---|---|---|---|---|
| Lowlands Road, Pinner | £ 950,000 | BUY | 5 / 10 | 0.00 KM |
| Lowlands Road, Pinner | £ 950,000 | BUY | 5 / 10 | 0.01 KM |
| Lowlands Road, Pinner, Middlesex, HA5 | £ 875,000 | BUY | 7 / 10 | 0.06 KM |
| Lowlands Road, Pinner | £ 895,000 | BUY | Unknown | 0.07 KM |
| Abbotsbury Gardens, Pinner | £ 900,000 | BUY | 7 / 10 | 0.15 KM |
Nearby Properties
| Address | Price | Distance |
|---|---|---|
| 70 Lowlands Road | £ 465,000 | 0.06 KM |
| 68 Lowlands Road | £ 650,000 | 0.06 KM |
| 44 Lowlands Road | £ 400,000 | 0.06 KM |
| 52 Lowlands Road | £ 425,500 | 0.06 KM |
| 74 Lowlands Road | £ 745,000 | 0.06 KM |