Queen Street, Paddock Wood
By Lambert & Foster Ltd
£ 1,100,000
Reviews
3 out of 5 stars
Lambert & Foster Ltd says ..
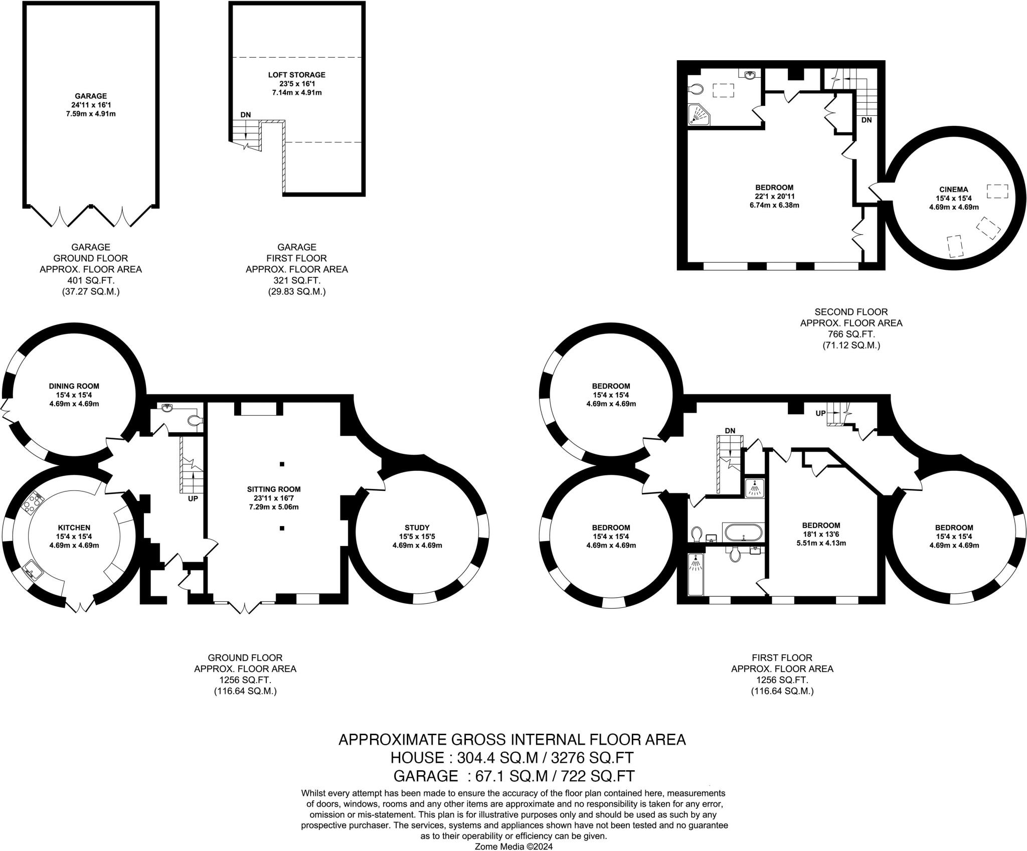
GUIDE £1,100,000-£1,200,000... An opportunity to purchase this immaculately presented and substantial attached oast house providing 5/6 bedrooms and 4 separate reception rooms on the semi-rural outskirts of Paddock Wood situated down a private lane in an idyllic Kentish farm hamlet. O...
Property Oracle says ..
This property is a charming 5-bedroom, 3-bathroom oast house located in the desirable Paddock Wood area of Kent. The house has been beautifully renovated and maintained. The property offers a blend of modern comforts and traditional architectural features, such as exposed beams and brickwork. The interior is spacious and well-lit, boasting several living areas, a modern kitchen, and a cinema room, among other amenities. Exterior features include a sizable garden providing outdoor space suitable for recreation and relaxation. The pictures of the garden and outdoor space show that it is well-maintained and aesthetically pleasing. The location provides convenient access to the train station, and multiple schools nearby make this property attractive to families. While the lack of precise plot size details and a more complete picture of local comparable sales prices prevents an entirely definitive valuation, the asking price appears to reflect the property’s features and location in the current market.
Therefore, we give this property 7 / 10. *Disclaimer: This is our option and does constitute a recommendation or financial advice. Do your own research. *
- Price
- 7
- Condition
- 8
- Location
- 7
- Land
- 6
- Bedrooms
- 5
- Bathrooms
- 3
- Sqft (est)
- 3,276.00
The heatmap indicates the level of crime in the area. The color of the heatmap indicates the crime severity and recency.
Metrics Year-on-Year
- Average area value
- 256,333.00 £Decreased by 42.33 %
- Est sale value
- 1,978,704.00 £Increased by 33.33 %
- Average area rental value
- 1,250.00 £/moDecreased by 3.47 %
- Est letting value
- 6,552.00 £/moIncreased by 100.00 %
- Est rental Yield
- 5.85 %Increased by 67.14 %
- Crime Rate
- 0.00 %
Agent Activity
Lambert & Foster Ltd created the listing.
Nearby Schools
| Name | Type | Ofsted | Distance |
|---|---|---|---|
| Laddingford St Mary'S Church Of England Voluntary Controlled Primary School | Voluntary Controlled School | Good | 2.92 KM |
| Mascalls Academy | Academy Converter | Good | 3.11 KM |
| Paddock Wood Children'S Centre | Children's Centre | 3.16 KM | |
| Paddock Wood Primary Academy | Academy Converter | 3.19 KM | |
| The Quest School | Other Independent Special School | Outstanding | 3.32 KM |
Images
Nearby Streets
| Name | Average Price | Average Sqft | Distance |
|---|---|---|---|
| Queen Street | £ 905,000 | 0 | 0.00 KM |
| Railway Cottages | £ 0 | 0 | 0.00 KM |
| The Orchards | £ 0 | 0 | 0.00 KM |
| Knowle Lane | £ 0 | 0 | 0.00 KM |
| Hawthorn Way | £ 157,500 | 0 | 0.00 KM |
Nearby Transport
| Name | NLC | TLC | Distance |
|---|---|---|---|
| Paddock Wood | 5224 | PDW | 2.96 KM |
| Beltring | 5227 | BEG | 3.23 KM |
| Yalding | 5232 | YAL | 5.38 KM |
| Wateringbury | 5241 | WTR | 7.99 KM |
| Marden (Kent) | 5223 | MRN | 8.59 KM |
Nearby Listings
| Address | Price | Type | Score | Distance |
|---|---|---|---|---|
| Queen Street, Paddock Wood | £ 1,100,000 | BUY | 7 / 10 | 0.00 KM |
| Willow Lane, Paddock Wood, Tonbridge, Kent, TN12 | £ 875,000 | BUY | 7 / 10 | 0.55 KM |
| Willow Lane, Paddock Wood, Tonbridge, Kent, TN12 | £ 800,000 | BUY | 8 / 10 | 0.55 KM |
| Five Furlongs Country Park, Tonbridge, TN12 | £ 245,000 | BUY | 6 / 10 | 0.69 KM |
| Queen Street, Paddock Wood, Tonbridge | £ 230,000 | BUY | 6 / 10 | 0.70 KM |
Nearby Properties
| Address | Price | Distance |
|---|---|---|
| Black Lion Cottage | £ 845,000 | 0.50 KM |
| Rhoden Oast | £ 1,050,000 | 1.10 KM |
| Rhoden Lodge | £ 120,000 | 1.10 KM |
| The Old Barn | £ 675,000 | 1.41 KM |
| Witches Haunt | £ 420,000 | 1.43 KM |