CA
Maes Ffynnon, Ruthin
By Cavendish Residential
£ 115,000
Reviews
3 out of 5 stars
Cavendish Residential says ..
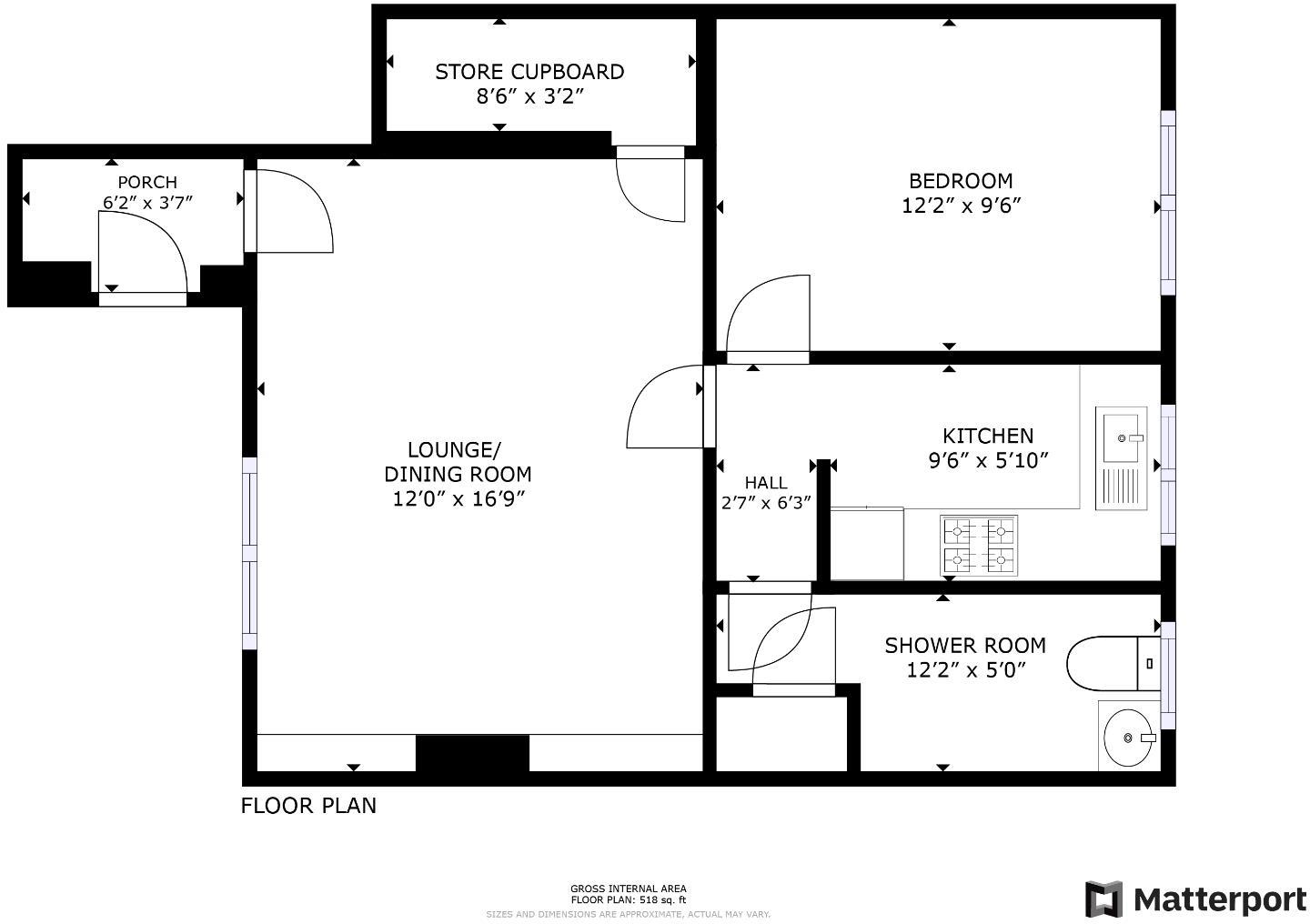
A well presented one-bedroomed self-contained ground-floor apartment together with patio area to rear and a nearby parking space, located in this popular residential cul-de-sac so convenient for access to the town centre. The accommodation which benefits from modern mahogany-effect wood grai...
Property Oracle says ..
Therefore, we give this property 6 / 10. *Disclaimer: This is our option and does constitute a recommendation or financial advice. Do your own research. *
- Price
- 8
- Condition
- 6
- Location
- 7
- Land
- 5
- Bedrooms
- 1
- Bathrooms
- 1
- Sqft (est)
- 499.40
The heatmap indicates the level of crime in the area. The color of the heatmap indicates the crime severity and recency.
Metrics Year-on-Year
- Average area value
- 326,418.00 £Decreased by 0.78 %
- Est sale value
- 166,799.60 £Increased by 1.52 %
- Average area rental value
- 1,459.00 £/moIncreased by 29.46 %
- Est letting value
- 499.40 £/moUnchanged by 0.00 %
- Est rental Yield
- 5.36 %Increased by 30.41 %
- Crime Rate
- 54.00 %Unchanged by 0.00 %
from 328,985.00 £
from 164,302.60 £
from 1,127.00 £/mo
from 499.40 £/mo
from 4.11 %
from 54.00 %
Agent Activity
Cavendish Residential created the listing.
Nearby Schools
| Name | Type | Ofsted | Distance |
|---|---|---|---|
| Borthyn V.C. Primary School | Welsh Establishment | 0.26 KM | |
| Ysgol Pen Barras | Welsh Establishment | 1.41 KM | |
| Rhos Street C.P. School | Welsh Establishment | 1.52 KM | |
| Ruthin School | Welsh Establishment | 1.93 KM | |
| Ysgol Brynhyfryd | Welsh Establishment | 2.12 KM |
Images
Nearby Streets
| Name | Average Price | Average Sqft | Distance |
|---|---|---|---|
| Stryd Y Wylan | £ 255,000 | 0 | 0.00 KM |
| Castle Street | £ 425,000 | 0 | 0.00 KM |
| Hen Lôn Parcwr | £ 0 | 0 | 0.00 KM |
| Tan-y-Castell | £ 0 | 0 | 0.00 KM |
| Ffordd yr Ysgol | £ 0 | 0 | 0.00 KM |
Nearby Listings
| Address | Price | Type | Score | Distance |
|---|---|---|---|---|
| Maes Ffynnon, Ruthin | £ 115,000 | BUY | 6 / 10 | 0.00 KM |
| Maes Ffynnon, Ruthin | £ 310,000 | BUY | 7 / 10 | 0.00 KM |
| Maes Ffynnon, Ruthin | £ 275,000 | BUY | 6 / 10 | 0.00 KM |
| Maes Ffynnon, Ruthin | £ 125,000 | BUY | Unknown | 0.03 KM |
| Mwrog Street, Ruthin | £ 190,000 | BUY | 5 / 10 | 0.06 KM |
Nearby Properties
| Address | Price | Distance |
|---|---|---|
| 8 Maes Ffynnon | £ 79,950 | 0.01 KM |
| 9 Maes Ffynnon | £ 77,000 | 0.01 KM |
| 12 Maes Ffynnon | £ 51,000 | 0.01 KM |
| 17 Maes Ffynnon | £ 170,000 | 0.01 KM |
| 10 Maes Ffynnon | £ 29,500 | 0.01 KM |